|
|
|
| Larry Stein Oklahoma County Assessor (405) 713-1200 - Public Access System |
|
|
|
|
|
|
| Real Property Display - Screen Produced 3/12/2026 11:11:39 PM | ||||
|---|---|---|---|---|
| Account: R074151575 | Type: Residential | Location: |
1524 SW 37TH ST |
|
| Building Name/Occupant: |
|
OKLAHOMA CITY |
||
| Owner Name 1: | CARRIZALES ARMANDO |
Parcel PIN#: |
1667-07-415-1575 |
|
| Owner Name 2: | 1/4 section #: |
1667 |
||
| Owner Name 3: | Parent Acct: |
|
||
| Billing Address: | 1524 SW 37TH ST | Tax District: |
|
|
| City, State, Zip | OKLAHOMA CITY, OK 73119-3819 | School System: |
Oklahoma City #89 |
|
|
Country: (If noted) |
Land Size: |
0.1653 Acres |
||
|
Land Value: 14,040 |
|
|||
|
Sect 17-T11N-R3W Qtr SW |
REDINGS RANCHO VILLAGE
Block
004
Lot
018
|
|||
| Full Legal Description: REDINGS RANCHO VILLAGE 004 018 |
| Photo & Sketch (if available) | Comp Sales (ordered by relevancy) |
|
||||||||||||||||||
|
||||||||||||||||||||
| Value History (*The County Treasurer 405-713-1300 posts & collects actual tax amounts. Contact information HERE) | |||||||||||||
|---|---|---|---|---|---|---|---|---|---|---|---|---|---|
| Year | Market Value | Taxable Mkt Value | Gross Assessed | Exemption | Net Assessed | Millage | Est. Tax | Tax Savings | |||||
|
2025 |
106,000 |
70,134 |
7,714 |
1,000 |
6,714 |
119.02 |
$799 |
$589 |
|||||
|
2024 |
97,000 |
68,092 |
7,489 |
1,000 |
6,489 |
119.70 |
$777 |
$500 |
|||||
|
2023 |
88,000 |
66,109 |
7,271 |
1,000 |
6,271 |
118.33 |
$742 |
$403 |
|||||
|
2022 |
78,500 |
64,184 |
7,059 |
1,000 |
6,059 |
112.69 |
$683 |
$290 |
|||||
|
2021 |
66,500 |
62,315 |
6,854 |
1,000 |
5,854 |
112.29 |
$657 |
$164 |
|||||
| Property Account Status/Adjustments/Exemptions | ||
|---|---|---|
| Account # | Exemption Description | Amount |
|
R074151575 |
Homestead |
1,000 |
|
R074151575 |
3% Cap Homestead |
0 |
| Property Deed Transaction History (Recorded in the County Clerk's Office) | |||||||
|---|---|---|---|---|---|---|---|
| Date | Type | Book | Page | Price | Grantor | Grantee | |
|
4/3/1998 |
|
Historical |
$32,000 |
BROTHERTON MAURICE & IMOGENE |
CARRIZALES ARMANDO |
||
|
8/14/1997 |
|
Historical |
$27,000 |
WOOD DAVID W & PEGGY R |
BROTHERTON MAURICE & IMOGENE |
||
|
12/1/1977 |
|
Historical |
$0 |
|
WOOD DAVID W & PEGGY R |
||
| Last Mailed Notice of Value (N.O.V.) Information/History | ||||||||
|---|---|---|---|---|---|---|---|---|
| Year | Date | Market Value | Taxable Market Value | Gross Assessed | Exemption | Net Assessed | ||
|
2026 |
02/06/2026 |
106,500 |
72,238 |
7,945 |
1,000 |
6,945 |
||
|
2025 |
01/31/2025 |
106,000 |
70,134 |
7,714 |
1,000 |
6,714 |
||
|
2024 |
01/22/2024 |
97,000 |
68,092 |
7,489 |
1,000 |
6,489 |
||
|
2023 |
01/23/2023 |
88,000 |
66,109 |
7,271 |
1,000 |
6,271 |
||
|
2022 |
02/22/2022 |
78,500 |
64,184 |
7,059 |
1,000 |
6,059 |
||
| Property Building Permit History | |||||||||||
|---|---|---|---|---|---|---|---|---|---|---|---|
| Issued | Permit # | Provided by | Bldg # | Description | Est Construction Cost | Status | |||||
| No Building Permit records returned. | |||||||||||
| Click button on building number to access detailed information: | ||||||
|---|---|---|---|---|---|---|
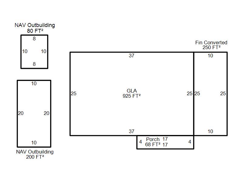
| Bldg # | Vacant/Improved Land | Bldg Description | Year Built | SqFt | # Stories | |
|
1 |
Improved |
Ranch 1 Story |
1948 |
925 |
1 Stories |
|