|
|
|
| Larry Stein Oklahoma County Assessor (405) 713-1200 - Public Access System |
|
|
|
|
|
|
| Real Property Display - Screen Produced 3/17/2026 3:53:54 AM | ||||
|---|---|---|---|---|
| Account: R074157900 | Type: Residential | Location: |
1576 SW 43RD ST |
|
| Building Name/Occupant: |
|
OKLAHOMA CITY |
||
| Owner Name 1: | PEREZ HECTOR & MARIA DEL REFUGIO |
Parcel PIN#: |
1667-07-415-7900 |
|
| Owner Name 2: | 1/4 section #: |
1667 |
||
| Owner Name 3: | Parent Acct: |
|
||
| Billing Address: | 1576 SW 43RD ST | Tax District: |
|
|
| City, State, Zip | OKLAHOMA CITY, OK 73119 | School System: |
Oklahoma City #89 |
|
|
Country: (If noted) |
Land Size: |
0.1598 Acres |
||
|
Land Value: 16,356 |
|
|||
|
Sect 17-T11N-R3W Qtr SW |
REDINGS RANCHO VILLAGE
Block
018
Lot
020
|
|||
| Full Legal Description: REDINGS RANCHO VILLAGE 018 020 |
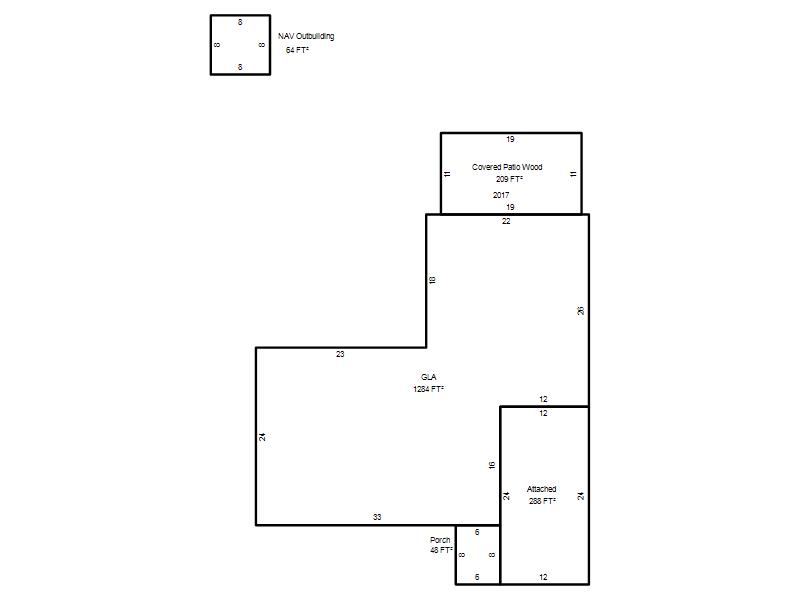
| Photo & Sketch (if available) | Comp Sales (ordered by relevancy) |
|
||||||||||||||||||
|
||||||||||||||||||||
| Value History (*The County Treasurer 405-713-1300 posts & collects actual tax amounts. Contact information HERE) | |||||||||||||
|---|---|---|---|---|---|---|---|---|---|---|---|---|---|
| Year | Market Value | Taxable Mkt Value | Gross Assessed | Exemption | Net Assessed | Millage | Est. Tax | Tax Savings | |||||
| No PropertyValuation records returned. | |||||||||||||
| Property Account Status/Adjustments/Exemptions | ||
|---|---|---|
| Account # | Exemption Description | Amount |
|
R074157900 |
5% Capped Account |
0 |
| Property Deed Transaction History (Recorded in the County Clerk's Office) | |||||||
|---|---|---|---|---|---|---|---|
| Date | Type | Book | Page | Price | Grantor | Grantee | |
|
4/1/2015 |
|
Deeds |
$85,000 |
OUTWEST INVESTMENTS LLC |
PEREZ HECTOR & MARIA DEL REFUGIO |
||
|
6/11/2013 |
|
Other |
$0 |
CABALLERO ISABEL |
OUTWEST INVESTMENTS LLC |
||
|
8/10/2007 |
|
Deeds |
$72,000 |
GAYTAN FRANCISCO |
CABALLERO ISABEL |
||
|
1/22/2001 |
|
Deeds |
$49,000 |
RAMSEY CLARA L |
GAYTAN FRANCISCO |
||
|
8/1/1978 |
|
Historical |
$0 |
|
RAMSEY CLARA L |
||
| Last Mailed Notice of Value (N.O.V.) Information/History | ||||||||
|---|---|---|---|---|---|---|---|---|
| Year | Date | Market Value | Taxable Market Value | Gross Assessed | Exemption | Net Assessed | ||
| No Notice of Value N.O.V. records returned. | ||||||||
| Property Building Permit History | |||||||||||
|---|---|---|---|---|---|---|---|---|---|---|---|
| Issued | Permit # | Provided by | Bldg # | Description | Est Construction Cost | Status | |||||
| No Building Permit records returned. | |||||||||||
| Click button on building number to access detailed information: | ||||||
|---|---|---|---|---|---|---|
| Bldg # | Vacant/Improved Land | Bldg Description | Year Built | SqFt | # Stories | |
|
1 |
Improved |
Ranch 1 Story |
1951 |
1,284 |
1 Stories |
|