|
|
|
| Larry Stein Oklahoma County Assessor (405) 713-1200 - Public Access System |
|
|
|
|
|
|
| Real Property Display - Screen Produced 3/13/2026 2:38:33 AM | ||||
|---|---|---|---|---|
| Account: R074158760 | Type: Residential | Location: |
1425 SW 43RD ST |
|
| Building Name/Occupant: |
|
OKLAHOMA CITY |
||
| Owner Name 1: | MARTINEZ SUSANA GUERRERO |
Parcel PIN#: |
1667-07-415-8760 |
|
| Owner Name 2: | GARCIA JOSE REFUGIO | 1/4 section #: |
1667 |
|
| Owner Name 3: | Parent Acct: |
|
||
| Billing Address: | 1425 SW 43RD ST | Tax District: |
|
|
| City, State, Zip | OKLAHOMA CITY, OK 73119 | School System: |
Oklahoma City #89 |
|
|
Country: (If noted) |
Land Size: |
0.1495 Acres |
||
|
Land Value: 15,299 |
|
|||
|
Sect 17-T11N-R3W Qtr SW |
REDINGS RANCHO VILLAGE
Block
021
Lot
009
|
|||
| Full Legal Description: REDINGS RANCHO VILLAGE 021 009 |
| Photo & Sketch (if available) | Comp Sales (ordered by relevancy) |
|
||||||||||||||||||
|
||||||||||||||||||||
| Value History (*The County Treasurer 405-713-1300 posts & collects actual tax amounts. Contact information HERE) | |||||||||||||
|---|---|---|---|---|---|---|---|---|---|---|---|---|---|
| Year | Market Value | Taxable Mkt Value | Gross Assessed | Exemption | Net Assessed | Millage | Est. Tax | Tax Savings | |||||
|
2025 |
133,000 |
126,236 |
13,885 |
0 |
13,885 |
119.02 |
$1,653 |
$89 |
|||||
|
2024 |
126,500 |
120,225 |
13,224 |
0 |
13,224 |
119.70 |
$1,583 |
$83 |
|||||
|
2023 |
114,500 |
114,500 |
12,595 |
0 |
12,595 |
118.33 |
$1,490 |
$0 |
|||||
|
2022 |
102,000 |
85,995 |
9,459 |
0 |
9,459 |
112.69 |
$1,066 |
$198 |
|||||
|
2021 |
86,000 |
81,900 |
9,009 |
0 |
9,009 |
112.29 |
$1,012 |
$51 |
|||||
| Property Account Status/Adjustments/Exemptions | ||
|---|---|---|
| Account # | Exemption Description | Amount |
|
R074158760 |
5% Capped Account |
0 |
| Property Deed Transaction History (Recorded in the County Clerk's Office) | ||||||||||
|---|---|---|---|---|---|---|---|---|---|---|
| Date | Type | Book | Page | Price | Grantor | Grantee | ||||
|
6/2/2022 |
|
Deeds |
$120,000 |
OMNI PROPERTY MANAGEMENT LLC |
MARTINEZ SUSANA GUERRERO |
|||||
|
8/13/2014 |
|
Hmstd Off & |
$0 |
PIERCE ROBERT R & MELISSA |
OMNI PROPERTY MANAGEMENT LLC |
|||||
|
2/20/2014 |
|
Hmstd Off & |
$0 |
PIERCE ROBERT R & MELISSA G |
OMNI PROPETY MANAGEMENT LLC |
|||||
|
2/10/2012 |
|
Deeds |
$36,500 |
DEUTSCHE BANK NATIONAL TRUST CO TRS |
PIERCE ROBERT R & MELISSA G |
|||||
|
1/23/2012 |
|
Hmstd Off & |
$0 |
MAGANA UBALDO |
DEUTSCHE BANK NATIONAL TRUST CO TRS |
|||||
| Last Mailed Notice of Value (N.O.V.) Information/History | ||||||||
|---|---|---|---|---|---|---|---|---|
| Year | Date | Market Value | Taxable Market Value | Gross Assessed | Exemption | Net Assessed | ||
|
2026 |
02/06/2026 |
133,500 |
132,547 |
14,579 |
0 |
14,579 |
||
|
2025 |
01/31/2025 |
133,000 |
126,236 |
13,885 |
0 |
13,885 |
||
|
2024 |
01/22/2024 |
126,500 |
120,225 |
13,224 |
0 |
13,224 |
||
|
2023 |
01/23/2023 |
114,500 |
114,500 |
12,595 |
0 |
12,595 |
||
|
2022 |
02/22/2022 |
102,000 |
85,995 |
9,459 |
0 |
9,459 |
||
| Property Building Permit History | |||||||||||
|---|---|---|---|---|---|---|---|---|---|---|---|
| Issued | Permit # | Provided by | Bldg # | Description | Est Construction Cost | Status | |||||
| No Building Permit records returned. | |||||||||||
| Click button on building number to access detailed information: | ||||||
|---|---|---|---|---|---|---|
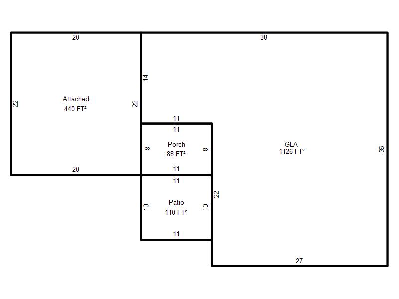
| Bldg # | Vacant/Improved Land | Bldg Description | Year Built | SqFt | # Stories | |
|
1 |
Improved |
Ranch 1 Story |
1951 |
1,126 |
1 Stories |
|