|
|
|
| Larry Stein Oklahoma County Assessor (405) 713-1200 - Public Access System |
|
|
|
|
|
|
| Real Property Display - Screen Produced 3/13/2026 2:38:34 AM | ||||
|---|---|---|---|---|
| Account: R074159380 | Type: Residential | Location: |
4205 S BLACKWELDER AVE |
|
| Building Name/Occupant: |
|
OKLAHOMA CITY |
||
| Owner Name 1: | PALACIO RUBEN |
Parcel PIN#: |
1667-07-415-9380 |
|
| Owner Name 2: | 1/4 section #: |
1667 |
||
| Owner Name 3: | Parent Acct: |
|
||
| Billing Address: | 4205 S BLACKWELDER AVE | Tax District: |
|
|
| City, State, Zip | OKLAHOMA CITY, OK 73119-4011 | School System: |
Oklahoma City #89 |
|
|
Country: (If noted) |
Land Size: |
0.2410 Acres |
||
|
Land Value: 24,675 |
|
|||
|
Sect 17-T11N-R3W Qtr SW |
REDINGS RANCHO VILLAGE
Block
025
Lot
001
|
|||
| Full Legal Description: REDINGS RANCHO VILLAGE 025 001 |
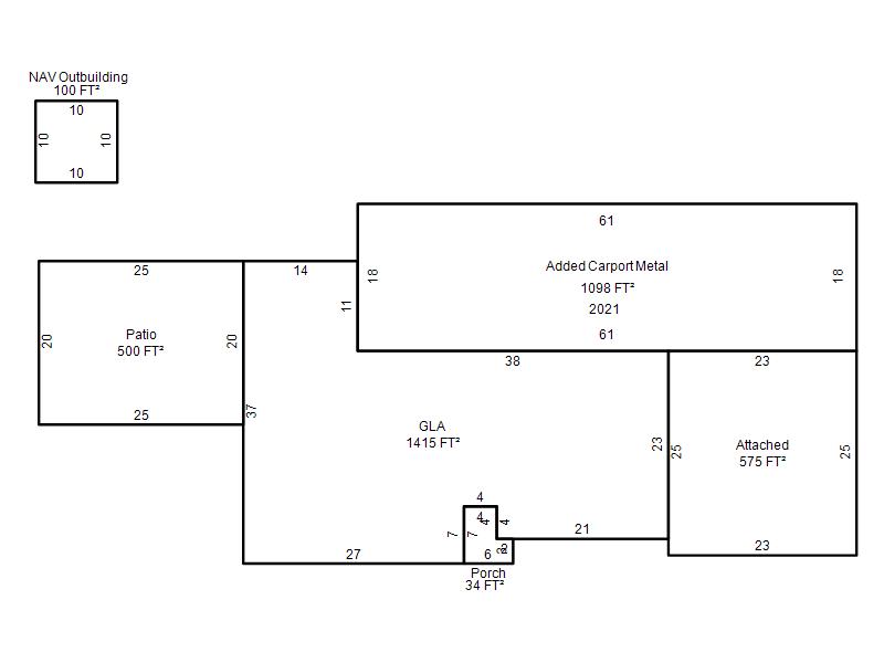
| Photo & Sketch (if available) | Comp Sales (ordered by relevancy) |
|
||||||||||||||||||
|
||||||||||||||||||||
| Value History (*The County Treasurer 405-713-1300 posts & collects actual tax amounts. Contact information HERE) | |||||||||||||
|---|---|---|---|---|---|---|---|---|---|---|---|---|---|
| Year | Market Value | Taxable Mkt Value | Gross Assessed | Exemption | Net Assessed | Millage | Est. Tax | Tax Savings | |||||
|
2025 |
143,500 |
111,143 |
12,225 |
0 |
12,225 |
119.02 |
$1,455 |
$424 |
|||||
|
2024 |
137,500 |
105,851 |
11,643 |
0 |
11,643 |
119.70 |
$1,394 |
$417 |
|||||
|
2023 |
127,500 |
100,811 |
11,089 |
0 |
11,089 |
118.33 |
$1,312 |
$347 |
|||||
|
2022 |
114,000 |
96,011 |
10,560 |
1,000 |
9,560 |
112.69 |
$1,077 |
$336 |
|||||
|
2021 |
98,000 |
93,215 |
10,253 |
1,000 |
9,253 |
112.29 |
$1,039 |
$171 |
|||||
| Property Account Status/Adjustments/Exemptions | ||
|---|---|---|
| Account # | Exemption Description | Amount |
|
R074159380 |
5% Capped Account |
0 |
| Property Deed Transaction History (Recorded in the County Clerk's Office) | |||||||
|---|---|---|---|---|---|---|---|
| Date | Type | Book | Page | Price | Grantor | Grantee | |
|
7/29/2004 |
|
Deeds |
$80,000 |
HOWELL JOHN J & HELEN F |
PALACIO RUBEN |
||
|
5/1/1981 |
|
Historical |
$0 |
|
HOWELL JOHN J & HELEN F |
||
| Last Mailed Notice of Value (N.O.V.) Information/History | ||||||||
|---|---|---|---|---|---|---|---|---|
| Year | Date | Market Value | Taxable Market Value | Gross Assessed | Exemption | Net Assessed | ||
|
2026 |
02/06/2026 |
149,000 |
116,700 |
12,836 |
0 |
12,836 |
||
|
2025 |
01/31/2025 |
143,500 |
111,143 |
12,225 |
0 |
12,225 |
||
|
2024 |
01/22/2024 |
137,500 |
105,851 |
11,643 |
0 |
11,643 |
||
|
2023 |
01/23/2023 |
127,500 |
98,891 |
10,877 |
1,000 |
9,877 |
||
|
2022 |
02/22/2022 |
114,000 |
96,011 |
10,560 |
1,000 |
9,560 |
||
| Property Building Permit History | |||||||||||
|---|---|---|---|---|---|---|---|---|---|---|---|
| Issued | Permit # | Provided by | Bldg # | Description | Est Construction Cost | Status | |||||
| No Building Permit records returned. | |||||||||||
| Click button on building number to access detailed information: | ||||||
|---|---|---|---|---|---|---|
| Bldg # | Vacant/Improved Land | Bldg Description | Year Built | SqFt | # Stories | |
|
1 |
Improved |
Ranch 1 Story |
1958 |
1,415 |
1 Stories |
|