|
|
|
| Larry Stein Oklahoma County Assessor (405) 713-1200 - Public Access System |
|
|
|
|
|
|
| Real Property Display - Screen Produced 4/3/2026 4:48:39 PM | ||||
|---|---|---|---|---|
| Account: R109525380 | Type: Residential | Location: |
1440 SW 34TH ST |
|
| Building Name/Occupant: |
|
OKLAHOMA CITY |
||
| Owner Name 1: | RILEY RANDAL & KATHY |
Parcel PIN#: |
1668-10-952-5380 |
|
| Owner Name 2: | 1/4 section #: |
1668 |
||
| Owner Name 3: | Parent Acct: |
|
||
| Billing Address: | 2913 SW 127TH ST | Tax District: |
|
|
| City, State, Zip | OKLAHOMA CITY, OK 73170 | School System: |
Oklahoma City #89 |
|
|
Country: (If noted) |
Land Size: |
0.1492 Acres |
||
|
Land Value: 11,375 |
|
|||
|
Sect 17-T11N-R3W Qtr NW |
SUNSET PARK ADDITION
Block
026
Lot
011
|
|||
| Full Legal Description: SUNSET PARK ADDITION 026 011 |
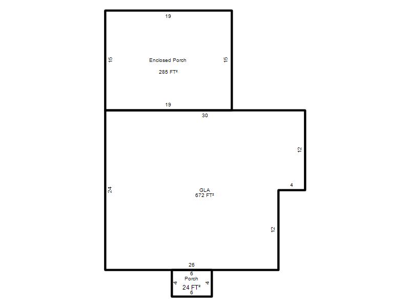
| Photo & Sketch (if available) | Comp Sales (ordered by relevancy) |
|
||||||||||||||||||
|
||||||||||||||||||||
| Value History (*The County Treasurer 405-713-1300 posts & collects actual tax amounts. Contact information HERE) | |||||||||||||
|---|---|---|---|---|---|---|---|---|---|---|---|---|---|
| Year | Market Value | Taxable Mkt Value | Gross Assessed | Exemption | Net Assessed | Millage | Est. Tax | Tax Savings | |||||
|
2026 |
73,500 |
48,912 |
5,380 |
0 |
5,380 |
119.02 |
$640 |
$322 |
|||||
|
2025 |
77,000 |
46,583 |
5,124 |
0 |
5,124 |
119.02 |
$610 |
$398 |
|||||
|
2024 |
65,000 |
44,365 |
4,879 |
0 |
4,879 |
119.70 |
$584 |
$272 |
|||||
|
2023 |
56,000 |
42,253 |
4,647 |
0 |
4,647 |
118.33 |
$550 |
$179 |
|||||
|
2022 |
51,500 |
40,241 |
4,425 |
0 |
4,425 |
112.69 |
$499 |
$140 |
|||||
| Property Account Status/Adjustments/Exemptions | ||
|---|---|---|
| Account # | Exemption Description | Amount |
|
R109525380 |
5% Capped Account |
0 |
| Property Deed Transaction History (Recorded in the County Clerk's Office) | ||||||||||
|---|---|---|---|---|---|---|---|---|---|---|
| Date | Type | Book | Page | Price | Grantor | Grantee | ||||
|
9/10/2008 |
|
Deeds |
$7,000 |
OKCSW LLC C/O BONNIE BAUM |
RILEY RANDAL & KATHY |
|||||
|
1/10/2003 |
|
|
$0 |
ROSL CLIENT TRUST ISBILL BONNIE P |
OKCSW LLC |
|||||
|
2/13/1989 |
|
Historical |
$0 |
ISBILL JAMES & BONNIE |
POWER LIMITED PARTNERSHIP |
|||||
|
3/30/1988 |
|
Historical |
$0 |
ISBILL JAMES B JR & BONNIE P |
LOVE REVOCABLE TRUST |
|||||
|
1/21/1988 |
|
Historical |
$0 |
SECRETARY OF HOUSING |
ISBILL JAMES B JR & BONNIE P |
|||||
| Last Mailed Notice of Value (N.O.V.) Information/History | ||||||||
|---|---|---|---|---|---|---|---|---|
| Year | Date | Market Value | Taxable Market Value | Gross Assessed | Exemption | Net Assessed | ||
|
2026 |
02/06/2026 |
73,500 |
48,912 |
5,380 |
0 |
5,380 |
||
|
2025 |
01/31/2025 |
77,000 |
46,583 |
5,124 |
0 |
5,124 |
||
|
2024 |
01/22/2024 |
65,000 |
44,365 |
4,879 |
0 |
4,879 |
||
|
2023 |
01/23/2023 |
56,000 |
42,253 |
4,647 |
0 |
4,647 |
||
|
2022 |
02/22/2022 |
51,500 |
40,241 |
4,425 |
0 |
4,425 |
||
| Property Building Permit History | |||||||||||
|---|---|---|---|---|---|---|---|---|---|---|---|
| Issued | Permit # | Provided by | Bldg # | Description | Est Construction Cost | Status | |||||
| No Building Permit records returned. | |||||||||||
| Click button on building number to access detailed information: | ||||||
|---|---|---|---|---|---|---|
| Bldg # | Vacant/Improved Land | Bldg Description | Year Built | SqFt | # Stories | |
|
1 |
Improved |
Ranch 1 Story |
1939 |
672 |
1 Stories |
|