|
|
|
| Larry Stein Oklahoma County Assessor (405) 713-1200 - Public Access System |
|
|
|
|
|
|
| Real Property Display - Screen Produced 4/1/2026 11:59:48 PM | ||||
|---|---|---|---|---|
| Account: R073882520 | Type: Residential | Location: |
2648 SW 38TH ST |
|
| Building Name/Occupant: |
|
OKLAHOMA CITY |
||
| Owner Name 1: | PANDO JESUS A & ROSA M |
Parcel PIN#: |
1671-07-388-2520 |
|
| Owner Name 2: | 1/4 section #: |
1671 |
||
| Owner Name 3: | Parent Acct: |
|
||
| Billing Address: | 305 SW 103RD ST | Tax District: |
|
|
| City, State, Zip | OKLAHOMA CITY, OK 73139-9016 | School System: |
Oklahoma City #89 |
|
|
Country: (If noted) |
Land Size: |
0.1607 Acres |
||
|
Land Value: 10,850 |
|
|||
|
Sect 18-T11N-R3W Qtr SW |
THOMAS BLVD AMD ADD
Block
010
Lot
000
|
|||
| Full Legal Description: THOMAS BLVD AMD ADD 010 000 LOTS 9 & 10 |
| Photo & Sketch (if available) | Comp Sales (ordered by relevancy) |
|
||||||||||||||||||
|
||||||||||||||||||||
| Value History (*The County Treasurer 405-713-1300 posts & collects actual tax amounts. Contact information HERE) | |||||||||||||
|---|---|---|---|---|---|---|---|---|---|---|---|---|---|
| Year | Market Value | Taxable Mkt Value | Gross Assessed | Exemption | Net Assessed | Millage | Est. Tax | Tax Savings | |||||
|
2026 |
91,000 |
52,931 |
5,822 |
0 |
5,822 |
119.02 |
$693 |
$498 |
|||||
|
2025 |
91,500 |
50,411 |
5,545 |
0 |
5,545 |
119.02 |
$660 |
$538 |
|||||
|
2024 |
79,500 |
48,011 |
5,280 |
0 |
5,280 |
119.70 |
$632 |
$415 |
|||||
|
2023 |
65,000 |
45,725 |
5,029 |
0 |
5,029 |
118.33 |
$595 |
$251 |
|||||
|
2022 |
53,500 |
43,548 |
4,790 |
0 |
4,790 |
112.69 |
$540 |
$123 |
|||||
| Property Account Status/Adjustments/Exemptions | ||
|---|---|---|
| Account # | Exemption Description | Amount |
|
R073882520 |
5% Capped Account |
0 |
| Property Deed Transaction History (Recorded in the County Clerk's Office) | ||||||||||
|---|---|---|---|---|---|---|---|---|---|---|
| Date | Type | Book | Page | Price | Grantor | Grantee | ||||
|
4/19/2012 |
|
Deeds |
$24,000 |
BANK OF AMERICA NA |
PANDO JESUS A & ROSA M |
|||||
|
1/30/2012 |
|
Hmstd Off & |
$0 |
TROYER WAYNE E |
BANK OF AMERICA NA |
|||||
|
1/30/1996 |
|
Historical |
$10,000 |
PENROD ROBERT & MARILYN |
TROYER WAYNE E |
|||||
|
9/4/1987 |
|
Historical |
$0 |
SECRETARY OF HOUSING |
PENROD ROBERT & MARILYN |
|||||
|
12/1/1986 |
|
Historical |
$0 |
CHOATE JIMMY D & KATHREN C |
SECRETARY OF HOUSING |
|||||
| Last Mailed Notice of Value (N.O.V.) Information/History | ||||||||
|---|---|---|---|---|---|---|---|---|
| Year | Date | Market Value | Taxable Market Value | Gross Assessed | Exemption | Net Assessed | ||
|
2026 |
02/06/2026 |
91,000 |
52,931 |
5,822 |
0 |
5,822 |
||
|
2025 |
01/31/2025 |
91,500 |
50,411 |
5,545 |
0 |
5,545 |
||
|
2024 |
01/22/2024 |
79,500 |
48,011 |
5,280 |
0 |
5,280 |
||
|
2023 |
01/23/2023 |
65,000 |
45,725 |
5,029 |
0 |
5,029 |
||
|
2022 |
02/22/2022 |
53,500 |
43,548 |
4,790 |
0 |
4,790 |
||
| Property Building Permit History | |||||||||||
|---|---|---|---|---|---|---|---|---|---|---|---|
| Issued | Permit # | Provided by | Bldg # | Description | Est Construction Cost | Status | |||||
| No Building Permit records returned. | |||||||||||
| Click button on building number to access detailed information: | ||||||
|---|---|---|---|---|---|---|
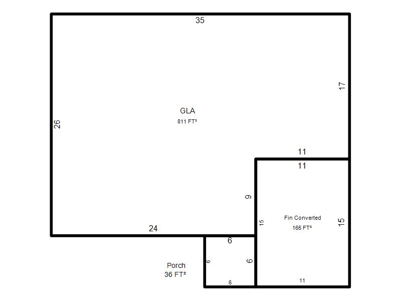
| Bldg # | Vacant/Improved Land | Bldg Description | Year Built | SqFt | # Stories | |
|
1 |
Improved |
Ranch 1 Story |
1940 |
811 |
1 Stories |
|