|
|
|
| Larry Stein Oklahoma County Assessor (405) 713-1200 - Public Access System |
|
|
|
|
|
|
| Real Property Display - Screen Produced 3/16/2026 4:10:40 AM | ||||
|---|---|---|---|---|
| Account: R155351225 | Type: Residential | Location: |
10620 E RENO AVE |
|
| Building Name/Occupant: |
|
MIDWEST CITY |
||
| Owner Name 1: | ANDERSON COREY |
Parcel PIN#: |
1221-15-535-1225 |
|
| Owner Name 2: | ANDERSON RHONDA | 1/4 section #: |
1221 |
|
| Owner Name 3: | Parent Acct: |
|
||
| Billing Address: | 10620 E RENO AVE | Tax District: |
|
|
| City, State, Zip | MIDWEST CITY, OK 73130 | School System: |
Choctaw #4 |
|
|
Country: (If noted) |
Land Size: |
0.4304 Acres |
||
|
Land Value: 32,208 |
|
|||
|
Sect 6-T11N-R1W Qtr NE |
POINTONS GLENDALE ADD
Block
001
Lot
013
|
|||
| Full Legal Description: POINTONS GLENDALE ADD 001 013 |
| Photo & Sketch (if available) | Comp Sales (ordered by relevancy) |
|
||||||||||||||||||
|
||||||||||||||||||||
| Value History (*The County Treasurer 405-713-1300 posts & collects actual tax amounts. Contact information HERE) | |||||||||||||
|---|---|---|---|---|---|---|---|---|---|---|---|---|---|
| Year | Market Value | Taxable Mkt Value | Gross Assessed | Exemption | Net Assessed | Millage | Est. Tax | Tax Savings | |||||
|
2025 |
387,500 |
264,313 |
29,073 |
1,000 |
28,073 |
127.03 |
$3,566 |
$1,848 |
|||||
|
2024 |
357,500 |
256,615 |
28,227 |
1,000 |
27,227 |
127.00 |
$3,458 |
$1,536 |
|||||
|
2023 |
324,500 |
249,141 |
27,405 |
1,000 |
26,405 |
128.50 |
$3,393 |
$1,194 |
|||||
|
2022 |
287,000 |
241,885 |
26,606 |
1,000 |
25,606 |
127.22 |
$3,258 |
$759 |
|||||
|
2021 |
248,500 |
234,840 |
25,832 |
1,000 |
24,832 |
126.69 |
$3,146 |
$317 |
|||||
| Property Account Status/Adjustments/Exemptions | ||
|---|---|---|
| Account # | Exemption Description | Amount |
|
R155351225 |
3% Cap Homestead |
0 |
|
R155351225 |
Homestead |
1,000 |
| Property Deed Transaction History (Recorded in the County Clerk's Office) | |||||||
|---|---|---|---|---|---|---|---|
| Date | Type | Book | Page | Price | Grantor | Grantee | |
|
9/12/2017 |
|
Deeds |
$18,500 |
CARRASQUILLO CANDACE & RUBEN |
ANDERSON COREY |
||
|
10/26/2011 |
|
Deeds |
$17,000 |
IVIE NANCY FLOYD TRS IVIE NANCY FLOYD REV TRUST |
CARRASQUILLO CANDACE & RUBEN |
||
|
4/5/2011 |
|
Deeds |
$0 |
IVIE GEORGE N & NANCY |
IVIE NANCY FLOYD |
||
|
4/5/2011 |
|
Deeds |
$0 |
IVIE NANCY FLOYD |
IVIE NANCY FLOYD TRS IVIE NANCY FLOYD REV TRUST |
||
|
3/1/1979 |
|
Historical |
$0 |
|
IVIE GEORGE N & NANCY |
||
| Last Mailed Notice of Value (N.O.V.) Information/History | ||||||||
|---|---|---|---|---|---|---|---|---|
| Year | Date | Market Value | Taxable Market Value | Gross Assessed | Exemption | Net Assessed | ||
|
2026 |
02/06/2026 |
372,500 |
272,242 |
29,946 |
1,000 |
28,946 |
||
|
2025 |
01/31/2025 |
387,500 |
264,313 |
29,073 |
1,000 |
28,073 |
||
|
2024 |
01/22/2024 |
357,500 |
256,615 |
28,227 |
1,000 |
27,227 |
||
|
2023 |
01/23/2023 |
324,500 |
249,141 |
27,405 |
1,000 |
26,405 |
||
|
2022 |
02/22/2022 |
287,000 |
241,885 |
26,606 |
1,000 |
25,606 |
||
| Property Building Permit History | |||||||||||
|---|---|---|---|---|---|---|---|---|---|---|---|
| Issued | Permit # | Provided by | Bldg # | Description | Est Construction Cost | Status | |||||
| No Building Permit records returned. | |||||||||||
| Click button on building number to access detailed information: | ||||||
|---|---|---|---|---|---|---|
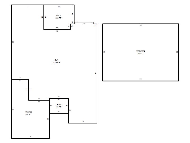
| Bldg # | Vacant/Improved Land | Bldg Description | Year Built | SqFt | # Stories | |
|
1 |
Improved |
Ranch 1 Story |
2018 |
2,009 |
1 Stories |
|