|
|
|
| Larry Stein Oklahoma County Assessor (405) 713-1200 - Public Access System |
|
|
|
|
|
|
| Real Property Display - Screen Produced 3/14/2026 7:22:36 AM | ||||
|---|---|---|---|---|
| Account: R155401235 | Type: Residential | Location: |
10808 LE JEAN DR |
|
| Building Name/Occupant: |
|
MIDWEST CITY |
||
| Owner Name 1: | SCARBOROUGH CAROL LYNN |
Parcel PIN#: |
1221-15-540-1235 |
|
| Owner Name 2: | SCARBOROUGH HAROLD LEE | 1/4 section #: |
1221 |
|
| Owner Name 3: | PERRY MELVIN TYRONE JR | Parent Acct: |
|
|
| Billing Address: | 10808 LE JEAN DR | Tax District: |
|
|
| City, State, Zip | MIDWEST CITY, OK 73130 | School System: |
Choctaw #4 |
|
|
Country: (If noted) |
Land Size: |
0.3099 Acres |
||
|
Land Value: 29,025 |
|
|||
|
Sect 6-T11N-R1W Qtr NE |
POINTON CITY 2ND ADD
Block
002
Lot
009
|
|||
| Full Legal Description: POINTON CITY 2ND ADD 002 009 |
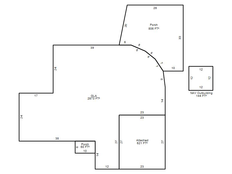
| Photo & Sketch (if available) | Comp Sales (ordered by relevancy) |
|
||||||||||||||||||
|
||||||||||||||||||||
| Value History (*The County Treasurer 405-713-1300 posts & collects actual tax amounts. Contact information HERE) | |||||||||||||
|---|---|---|---|---|---|---|---|---|---|---|---|---|---|
| Year | Market Value | Taxable Mkt Value | Gross Assessed | Exemption | Net Assessed | Millage | Est. Tax | Tax Savings | |||||
|
2025 |
366,000 |
136,633 |
15,028 |
0 |
15,028 |
127.03 |
$1,909 |
$3,205 |
|||||
|
2024 |
339,500 |
130,127 |
14,313 |
0 |
14,313 |
127.00 |
$1,818 |
$2,925 |
|||||
|
2023 |
323,500 |
123,931 |
13,632 |
0 |
13,632 |
128.50 |
$1,752 |
$2,821 |
|||||
|
2022 |
291,000 |
118,030 |
12,983 |
0 |
12,983 |
127.22 |
$1,652 |
$2,421 |
|||||
|
2021 |
250,500 |
112,410 |
12,364 |
0 |
12,364 |
126.69 |
$1,567 |
$1,924 |
|||||
| Property Account Status/Adjustments/Exemptions | ||||||
|---|---|---|---|---|---|---|
| Account # | Exemption Description | Amount | ||||
| No adjustment/exemption records returned. | ||||||
| Property Deed Transaction History (Recorded in the County Clerk's Office) | |||||||
|---|---|---|---|---|---|---|---|
| Date | Type | Book | Page | Price | Grantor | Grantee | |
|
12/2/2021 |
|
Hmstd Off & |
$0 |
SCARBOROUGH BEULAH MAE |
SCARBOROUGH CAROL LYNN |
||
|
12/2/2021 |
|
Hmstd Off & |
$0 |
SCARBOROUGH CAROL LYNN |
SCARBOROUGH CAROL LYNN |
||
|
2/6/1995 |
|
Historical |
$0 |
SCARBOROUGH BEULAH |
SCARBOROUGH BEULAH MAE |
||
|
10/4/1991 |
|
Historical |
$0 |
SCARBOROUGH LEON & BEULAH M |
SCARBOROUGH BEULAH |
||
|
1/1/1976 |
|
Historical |
$0 |
|
SCARBOROUGH LEON & BEULAH M |
||
| Last Mailed Notice of Value (N.O.V.) Information/History | ||||||||
|---|---|---|---|---|---|---|---|---|
| Year | Date | Market Value | Taxable Market Value | Gross Assessed | Exemption | Net Assessed | ||
|
2026 |
02/06/2026 |
366,000 |
143,464 |
15,780 |
0 |
15,780 |
||
|
2025 |
01/31/2025 |
366,000 |
136,633 |
15,028 |
0 |
15,028 |
||
|
2024 |
01/22/2024 |
339,500 |
130,127 |
14,313 |
0 |
14,313 |
||
|
2023 |
01/23/2023 |
323,500 |
123,931 |
13,632 |
0 |
13,632 |
||
|
2022 |
02/22/2022 |
291,000 |
118,030 |
12,982 |
0 |
12,982 |
||
| Property Building Permit History | ||||||
|---|---|---|---|---|---|---|
| Issued | Permit # | Provided by | Bldg # | Description | Est Construction Cost | Status |
|
7/10/2015 |
10474884 |
MIDWEST CITY |
1 |
Main Dwellin |
325,000 |
Inactive |
|
4/6/2015 |
10472866 |
MIDWEST CITY |
1 |
Demolish |
10,000 |
Inactive |
|
2/3/2015 |
10468676 |
COUNTY |
1 |
Fire Remodel |
0 |
Inactive |
| Click button on building number to access detailed information: | ||||||
|---|---|---|---|---|---|---|
| Bldg # | Vacant/Improved Land | Bldg Description | Year Built | SqFt | # Stories | |
|
1 |
Improved |
Ranch 1 Story |
1959 |
2,873 |
1 Stories |
|