|
|
|
| Larry Stein Oklahoma County Assessor (405) 713-1200 - Public Access System |
|
|
|
|
|
|
| Real Property Display - Screen Produced 4/5/2026 3:49:09 AM | ||||
|---|---|---|---|---|
| Account: R107987720 | Type: Residential | Location: |
3217 S VILLA AVE |
|
| Building Name/Occupant: |
|
OKLAHOMA CITY |
||
| Owner Name 1: | PELFREY ROSEMARIE TRS |
Parcel PIN#: |
1672-10-798-7720 |
|
| Owner Name 2: | PELFREY ROSEMARIE REV TRUST | 1/4 section #: |
1672 |
|
| Owner Name 3: | Parent Acct: |
|
||
| Billing Address: | 9000 S CHOCTAW RD | Tax District: |
|
|
| City, State, Zip | CHOCTAW, OK 73020-4043 | School System: |
Oklahoma City #89 |
|
|
Country: (If noted) |
Land Size: |
0.1607 Acres |
||
|
Land Value: 10,850 |
|
|||
|
Sect 18-T11N-R3W Qtr NW |
INDUSTRIAL ADDITION
Block
082
Lot
000
|
|||
| Full Legal Description: INDUSTRIAL ADDITION 082 000 LOTS 47 & 48 |
| Photo & Sketch (if available) | Comp Sales (ordered by relevancy) |
|
||||||||||||||||||
|
||||||||||||||||||||
| Value History (*The County Treasurer 405-713-1300 posts & collects actual tax amounts. Contact information HERE) | |||||||||||||
|---|---|---|---|---|---|---|---|---|---|---|---|---|---|
| Year | Market Value | Taxable Mkt Value | Gross Assessed | Exemption | Net Assessed | Millage | Est. Tax | Tax Savings | |||||
|
2026 |
78,000 |
42,211 |
4,643 |
0 |
4,643 |
119.02 |
$553 |
$469 |
|||||
|
2025 |
80,500 |
40,201 |
4,421 |
0 |
4,421 |
119.02 |
$526 |
$528 |
|||||
|
2024 |
69,000 |
38,287 |
4,211 |
0 |
4,211 |
119.70 |
$504 |
$404 |
|||||
|
2023 |
63,000 |
36,464 |
4,011 |
0 |
4,011 |
118.33 |
$475 |
$345 |
|||||
|
2022 |
52,500 |
34,728 |
3,819 |
0 |
3,819 |
112.69 |
$430 |
$220 |
|||||
| Property Account Status/Adjustments/Exemptions | ||
|---|---|---|
| Account # | Exemption Description | Amount |
|
R107987720 |
5% Capped Account |
0 |
| Property Deed Transaction History (Recorded in the County Clerk's Office) | |||||||
|---|---|---|---|---|---|---|---|
| Date | Type | Book | Page | Price | Grantor | Grantee | |
|
7/31/2015 |
|
Mult Parcel |
$1,200,000 |
OMEGA ENTERPRISES LLC |
PELFREY ROSEMARIE TRS |
||
|
9/23/2008 |
|
Other |
$0 |
COBERLY DARREL |
OMEGA ENTERPRISES LLC |
||
|
2/28/2000 |
|
Other |
$0 |
HACKER GLEN E & ELIZABETH A |
COBERLY DARREL |
||
|
8/7/1996 |
|
Historical |
$8,000 |
WALDEN MARIAN JUNE |
HACKER GLEN E & ELIZABETH A |
||
|
9/1/1984 |
|
Historical |
$0 |
|
WALDEN MARIAN JUNE |
||
| Last Mailed Notice of Value (N.O.V.) Information/History | ||||||||
|---|---|---|---|---|---|---|---|---|
| Year | Date | Market Value | Taxable Market Value | Gross Assessed | Exemption | Net Assessed | ||
|
2026 |
02/06/2026 |
78,000 |
42,211 |
4,643 |
0 |
4,643 |
||
|
2025 |
01/31/2025 |
80,500 |
40,201 |
4,421 |
0 |
4,421 |
||
|
2024 |
01/22/2024 |
69,000 |
38,287 |
4,211 |
0 |
4,211 |
||
|
2023 |
01/23/2023 |
63,000 |
36,464 |
4,011 |
0 |
4,011 |
||
|
2022 |
02/22/2022 |
52,500 |
34,728 |
3,819 |
0 |
3,819 |
||
| Property Building Permit History | |||||||||||
|---|---|---|---|---|---|---|---|---|---|---|---|
| Issued | Permit # | Provided by | Bldg # | Description | Est Construction Cost | Status | |||||
| No Building Permit records returned. | |||||||||||
| Click button on building number to access detailed information: | ||||||
|---|---|---|---|---|---|---|
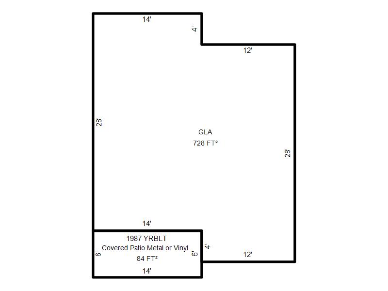
| Bldg # | Vacant/Improved Land | Bldg Description | Year Built | SqFt | # Stories | |
|
1 |
Improved |
Ranch 1 Story |
1926 |
728 |
1 Stories |
|