|
|
|
| Larry Stein Oklahoma County Assessor (405) 713-1200 - Public Access System |
|
|
|
|
|
|
| Real Property Display - Screen Produced 4/1/2026 2:17:26 AM | ||||
|---|---|---|---|---|
| Account: R107988200 | Type: Residential | Location: |
2608 SW 33RD ST |
|
| Building Name/Occupant: |
|
OKLAHOMA CITY |
||
| Owner Name 1: | ESCOBEDO JESUS |
Parcel PIN#: |
1672-10-798-8200 |
|
| Owner Name 2: | ESCOBEDO ALONZO | 1/4 section #: |
1672 |
|
| Owner Name 3: | Parent Acct: |
|
||
| Billing Address: | 2608 SW 33RD ST | Tax District: |
|
|
| City, State, Zip | OKLAHOMA CITY, OK 73119-1834 | School System: |
Oklahoma City #89 |
|
|
Country: (If noted) |
Land Size: |
0.1607 Acres |
||
|
Land Value: 10,850 |
|
|||
|
Sect 18-T11N-R3W Qtr NW |
INDUSTRIAL ADDITION
Block
089
Lot
000
|
|||
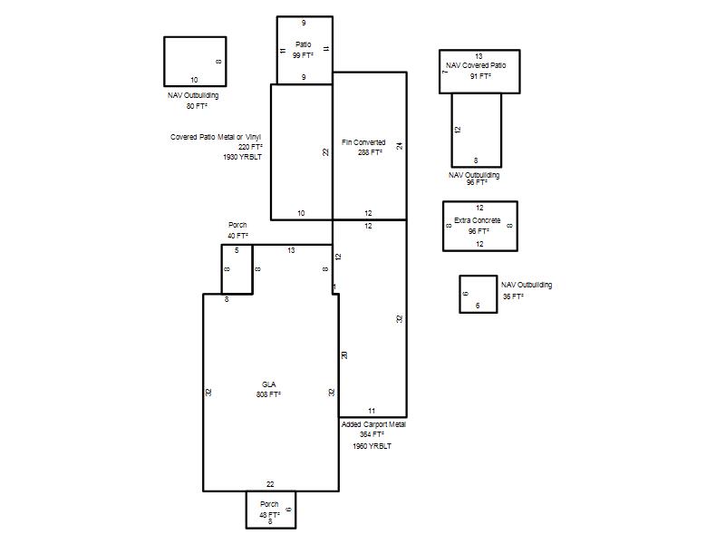
| Full Legal Description: INDUSTRIAL ADDITION 089 000 LOTS 5 & 6 |
| Photo & Sketch (if available) | Comp Sales (ordered by relevancy) |
|
||||||||||||||||||
|
||||||||||||||||||||
| Value History (*The County Treasurer 405-713-1300 posts & collects actual tax amounts. Contact information HERE) | |||||||||||||
|---|---|---|---|---|---|---|---|---|---|---|---|---|---|
| Year | Market Value | Taxable Mkt Value | Gross Assessed | Exemption | Net Assessed | Millage | Est. Tax | Tax Savings | |||||
|
2026 |
106,500 |
52,931 |
5,822 |
0 |
5,822 |
119.02 |
$693 |
$701 |
|||||
|
2025 |
105,000 |
50,411 |
5,545 |
0 |
5,545 |
119.02 |
$660 |
$715 |
|||||
|
2024 |
89,500 |
48,011 |
5,280 |
0 |
5,280 |
119.70 |
$632 |
$546 |
|||||
|
2023 |
83,000 |
45,725 |
5,029 |
0 |
5,029 |
118.33 |
$595 |
$485 |
|||||
|
2022 |
69,500 |
43,548 |
4,790 |
0 |
4,790 |
112.69 |
$540 |
$322 |
|||||
| Property Account Status/Adjustments/Exemptions | ||
|---|---|---|
| Account # | Exemption Description | Amount |
|
R107988200 |
5% Capped Account |
0 |
| Property Deed Transaction History (Recorded in the County Clerk's Office) | |||||||
|---|---|---|---|---|---|---|---|
| Date | Type | Book | Page | Price | Grantor | Grantee | |
|
8/23/2024 |
|
Hmstd Off & |
$0 |
ESCOBEDO JOSE REFUGIO & MARIA S |
ESCOBEDO JESUS |
||
|
8/25/2003 |
|
Deeds |
$0 |
RYERSON M G & D |
RYERSON DOROTHY L |
||
|
8/25/2003 |
|
Deeds |
$31,000 |
RYERSON DOROTHY L |
ESCOBEDO JOSE REFUGIO & MARIA S |
||
|
11/11/1911 |
|
Historical |
$0 |
|
RYERSON M G & D |
||
| Last Mailed Notice of Value (N.O.V.) Information/History | ||||||||
|---|---|---|---|---|---|---|---|---|
| Year | Date | Market Value | Taxable Market Value | Gross Assessed | Exemption | Net Assessed | ||
|
2026 |
02/06/2026 |
106,500 |
52,931 |
5,822 |
0 |
5,822 |
||
|
2025 |
01/31/2025 |
105,000 |
50,411 |
5,545 |
0 |
5,545 |
||
|
2024 |
01/22/2024 |
89,500 |
48,011 |
5,280 |
0 |
5,280 |
||
|
2023 |
01/23/2023 |
83,000 |
45,725 |
5,029 |
0 |
5,029 |
||
|
2022 |
02/22/2022 |
69,500 |
43,548 |
4,790 |
0 |
4,790 |
||
| Property Building Permit History | |||||||||||
|---|---|---|---|---|---|---|---|---|---|---|---|
| Issued | Permit # | Provided by | Bldg # | Description | Est Construction Cost | Status | |||||
| No Building Permit records returned. | |||||||||||
| Click button on building number to access detailed information: | ||||||
|---|---|---|---|---|---|---|
| Bldg # | Vacant/Improved Land | Bldg Description | Year Built | SqFt | # Stories | |
|
1 |
Improved |
Ranch 1 Story |
1930 |
808 |
1 Stories |
|