|
|
|
| Larry Stein Oklahoma County Assessor (405) 713-1200 - Public Access System |
|
|
|
|
|
|
| Real Property Display - Screen Produced 3/14/2026 7:27:55 AM | ||||
|---|---|---|---|---|
| Account: R155401875 | Type: Residential | Location: |
727 S TIMBER LN |
|
| Building Name/Occupant: |
|
MIDWEST CITY |
||
| Owner Name 1: | PRUEGERT MAX SR & GLENDA TRS |
Parcel PIN#: |
1221-15-540-1875 |
|
| Owner Name 2: | PRUEGERT MAX & GLENDA LIV TRUST | 1/4 section #: |
1221 |
|
| Owner Name 3: | Parent Acct: |
|
||
| Billing Address: | 727 S TIMBER LN | Tax District: |
|
|
| City, State, Zip | MIDWEST CITY, OK 73130-5023 | School System: |
Choctaw #4 |
|
|
Country: (If noted) |
Land Size: |
0.5069 Acres |
||
|
Land Value: 47,472 |
|
|||
|
Sect 6-T11N-R1W Qtr NE |
POINTON CITY 2ND ADD
Block
005
Lot
010
|
|||
| Full Legal Description: POINTON CITY 2ND ADD 005 010 |
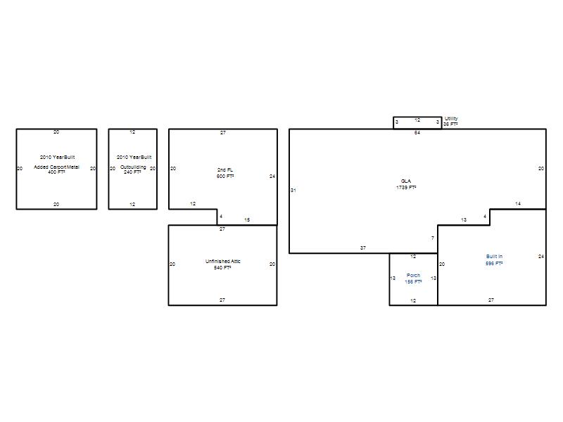
| Photo & Sketch (if available) | Comp Sales (ordered by relevancy) |
|
||||||||||||||||||
|
||||||||||||||||||||
| Value History (*The County Treasurer 405-713-1300 posts & collects actual tax amounts. Contact information HERE) | |||||||||||||
|---|---|---|---|---|---|---|---|---|---|---|---|---|---|
| Year | Market Value | Taxable Mkt Value | Gross Assessed | Exemption | Net Assessed | Millage | Est. Tax | Tax Savings | |||||
|
2025 |
270,000 |
81,144 |
8,925 |
1,000 |
7,925 |
127.03 |
$1,007 |
$2,766 |
|||||
|
2024 |
244,000 |
81,144 |
8,925 |
1,000 |
7,925 |
127.00 |
$1,007 |
$2,402 |
|||||
|
2023 |
236,000 |
81,144 |
8,925 |
1,000 |
7,925 |
128.50 |
$1,018 |
$2,317 |
|||||
|
2022 |
217,500 |
81,144 |
8,925 |
1,000 |
7,925 |
127.22 |
$1,008 |
$2,035 |
|||||
|
2021 |
183,500 |
81,144 |
8,925 |
1,000 |
7,925 |
126.69 |
$1,004 |
$1,553 |
|||||
| Property Account Status/Adjustments/Exemptions | ||
|---|---|---|
| Account # | Exemption Description | Amount |
|
R155401875 |
Freeze Senior Valuation |
0 |
|
R155401875 |
3% Cap Homestead |
0 |
|
R155401875 |
Homestead |
1,000 |
| Property Deed Transaction History (Recorded in the County Clerk's Office) | |||||||
|---|---|---|---|---|---|---|---|
| Date | Type | Book | Page | Price | Grantor | Grantee | |
|
5/4/1998 |
|
Historical |
$0 |
PRUEGERT MAX SR & GLENDA TRS |
PRUEGERT MAX SR & GLENDA TRS |
||
|
9/19/1995 |
|
Historical |
$0 |
PRUEGERT MAX S & GLENDA D |
PRUEGERT MAX SR & GLENDA TRS |
||
|
3/28/1995 |
|
Historical |
$0 |
PRUEGERT MAX SHERMAN |
PRUEGERT MAX S & GLENDA D |
||
|
11/11/1911 |
|
Historical |
$0 |
|
PRUEGERT MAX SHERMAN |
||
| Last Mailed Notice of Value (N.O.V.) Information/History | ||||||||
|---|---|---|---|---|---|---|---|---|
| Year | Date | Market Value | Taxable Market Value | Gross Assessed | Exemption | Net Assessed | ||
|
2025 |
01/31/2025 |
270,000 |
81,144 |
8,925 |
1,000 |
7,925 |
||
|
2024 |
01/22/2024 |
244,000 |
81,144 |
8,925 |
1,000 |
7,925 |
||
|
2023 |
01/23/2023 |
236,000 |
81,144 |
8,925 |
1,000 |
7,925 |
||
|
2022 |
02/22/2022 |
217,500 |
81,144 |
8,925 |
1,000 |
7,925 |
||
|
2021 |
02/24/2021 |
183,500 |
81,144 |
8,925 |
1,000 |
7,925 |
||
| Property Building Permit History | ||||||
|---|---|---|---|---|---|---|
| Issued | Permit # | Provided by | Bldg # | Description | Est Construction Cost | Status |
|
8/25/2011 |
10433490 |
MIDWEST CITY |
1 |
Storage Buil |
3,000 |
Inactive |
| Click button on building number to access detailed information: | ||||||
|---|---|---|---|---|---|---|
| Bldg # | Vacant/Improved Land | Bldg Description | Year Built | SqFt | # Stories | |
|
1 |
Improved |
1½ Story Fin |
1960 |
2,339 |
1.5 Stories |
|