|
|
|
| Larry Stein Oklahoma County Assessor (405) 713-1200 - Public Access System |
|
|
|
|
|
|
| Real Property Display - Screen Produced 3/16/2026 8:34:27 PM | ||||
|---|---|---|---|---|
| Account: R074420300 | Type: Residential | Location: |
2141 SW 45TH ST |
|
| Building Name/Occupant: |
|
OKLAHOMA CITY |
||
| Owner Name 1: | PRAIRIE PROPERTY SOLUTIONS LLC |
Parcel PIN#: |
1673-07-442-0300 |
|
| Owner Name 2: | 1/4 section #: |
1673 |
||
| Owner Name 3: | Parent Acct: |
|
||
| Billing Address: | PO BOX 515 | Tax District: |
|
|
| City, State, Zip | OKLAHOMA CITY, OK 73101 | School System: |
Oklahoma City #89 |
|
|
Country: (If noted) |
Land Size: |
0.1607 Acres |
||
|
Land Value: 15,750 |
|
|||
|
Sect 19-T11N-R3W Qtr NE |
MOORE HEIGHTS ADD
Block
001
Lot
000
|
|||
| Full Legal Description: MOORE HEIGHTS ADD 001 000 LOTS 27 & 28 |
| Photo & Sketch (if available) | Comp Sales (ordered by relevancy) |
|
||||||||||||||||||
|
||||||||||||||||||||
| Value History (*The County Treasurer 405-713-1300 posts & collects actual tax amounts. Contact information HERE) | |||||||||||||
|---|---|---|---|---|---|---|---|---|---|---|---|---|---|
| Year | Market Value | Taxable Mkt Value | Gross Assessed | Exemption | Net Assessed | Millage | Est. Tax | Tax Savings | |||||
|
2025 |
113,000 |
106,575 |
11,723 |
0 |
11,723 |
119.02 |
$1,395 |
$84 |
|||||
|
2024 |
101,500 |
101,500 |
11,165 |
0 |
11,165 |
119.70 |
$1,336 |
$0 |
|||||
|
2023 |
101,000 |
101,000 |
11,110 |
0 |
11,110 |
118.33 |
$1,315 |
$0 |
|||||
|
2022 |
101,000 |
101,000 |
11,110 |
0 |
11,110 |
112.69 |
$1,252 |
$0 |
|||||
|
2021 |
64,500 |
19,784 |
2,175 |
0 |
2,175 |
112.29 |
$244 |
$552 |
|||||
| Property Account Status/Adjustments/Exemptions | ||
|---|---|---|
| Account # | Exemption Description | Amount |
|
R074420300 |
5% Capped Account |
0 |
| Property Deed Transaction History (Recorded in the County Clerk's Office) | ||||||||||
|---|---|---|---|---|---|---|---|---|---|---|
| Date | Type | Book | Page | Price | Grantor | Grantee | ||||
|
9/9/2021 |
|
Deeds |
$105,000 |
MUZNY PROPERTIES LLC |
PRAIRIE PROPERTY SOLUTIONS LLC |
|||||
|
11/28/2017 |
|
Hmstd Off & |
$0 |
V & S RENTALS LLC |
MUZNY PROPERTIES LLC |
|||||
|
8/14/2007 |
|
Hmstd Off & |
$0 |
MUZNY VERNON J & SANDRA KAY |
V & S RENTALS LLC |
|||||
|
3/26/1998 |
|
Historical |
$0 |
MUZNY VERNON J & SANDRA KAY |
MUZNY VERNON J & SANDRA KAY |
|||||
|
10/28/1993 |
|
Historical |
$0 |
|
MUZNY VERNON J & SANDRA KAY |
|||||
| Last Mailed Notice of Value (N.O.V.) Information/History | ||||||||
|---|---|---|---|---|---|---|---|---|
| Year | Date | Market Value | Taxable Market Value | Gross Assessed | Exemption | Net Assessed | ||
|
2026 |
02/06/2026 |
111,500 |
111,500 |
12,265 |
0 |
12,265 |
||
|
2025 |
01/31/2025 |
113,000 |
106,575 |
11,723 |
0 |
11,723 |
||
|
2024 |
01/22/2024 |
101,500 |
101,500 |
11,165 |
0 |
11,165 |
||
|
2022 |
02/22/2022 |
101,000 |
101,000 |
11,110 |
0 |
11,110 |
||
|
2021 |
02/24/2021 |
64,500 |
19,784 |
2,176 |
0 |
2,176 |
||
| Property Building Permit History | ||||||
|---|---|---|---|---|---|---|
| Issued | Permit # | Provided by | Bldg # | Description | Est Construction Cost | Status |
|
5/6/1997 |
10196287 |
OKLAHOMA CITY |
1 |
Add On |
2,000 |
Inactive |
|
1/8/1997 |
10196286 |
OKLAHOMA CITY |
1 |
Add On |
4,000 |
Inactive |
|
1/3/1994 |
10196285 |
OKLAHOMA CITY |
1 |
Remodeled |
6,000 |
Inactive |
| Click button on building number to access detailed information: | ||||||
|---|---|---|---|---|---|---|
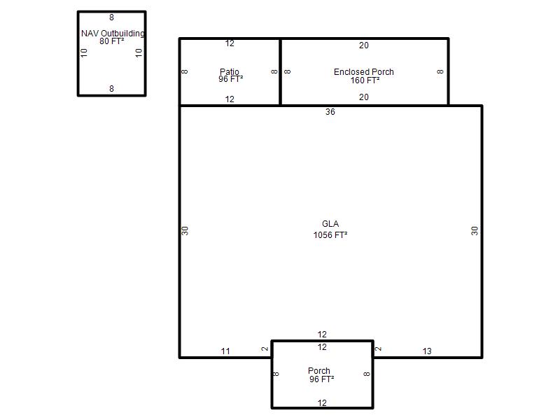
| Bldg # | Vacant/Improved Land | Bldg Description | Year Built | SqFt | # Stories | |
|
1 |
Improved |
Ranch 1 Story |
1948 |
1,056 |
1 Stories |
|