|
|
|
| Larry Stein Oklahoma County Assessor (405) 713-1200 - Public Access System |
|
|
|
|
|
|
| Real Property Display - Screen Produced 3/16/2026 8:36:04 PM | ||||
|---|---|---|---|---|
| Account: R074420560 | Type: Residential | Location: |
2308 SW 44TH ST |
|
| Building Name/Occupant: |
|
OKLAHOMA CITY |
||
| Owner Name 1: | SHAFER PROPERTIES LLC |
Parcel PIN#: |
1673-07-442-0560 |
|
| Owner Name 2: | 1/4 section #: |
1673 |
||
| Owner Name 3: | Parent Acct: |
|
||
| Billing Address: | 1300 SW 155TH ST | Tax District: |
|
|
| City, State, Zip | OKLAHOMA CITY, OK 73170-9309 | School System: |
Oklahoma City #89 |
|
|
Country: (If noted) |
Land Size: |
0.1527 Acres |
||
|
Land Value: 14,963 |
|
|||
|
Sect 19-T11N-R3W Qtr NE |
MOORE HEIGHTS ADD
Block
003
Lot
000
|
|||
| Full Legal Description: MOORE HEIGHTS ADD 003 000 LOTS 5 & 6 EX N7FT |
| Photo & Sketch (if available) | Comp Sales (ordered by relevancy) |
|
||||||||||||||||||
|
||||||||||||||||||||
| Value History (*The County Treasurer 405-713-1300 posts & collects actual tax amounts. Contact information HERE) | |||||||||||||
|---|---|---|---|---|---|---|---|---|---|---|---|---|---|
| Year | Market Value | Taxable Mkt Value | Gross Assessed | Exemption | Net Assessed | Millage | Est. Tax | Tax Savings | |||||
|
2025 |
78,500 |
54,878 |
6,036 |
0 |
6,036 |
119.02 |
$718 |
$309 |
|||||
|
2024 |
71,500 |
52,265 |
5,748 |
0 |
5,748 |
119.70 |
$688 |
$253 |
|||||
|
2023 |
65,000 |
49,777 |
5,474 |
0 |
5,474 |
118.33 |
$648 |
$198 |
|||||
|
2022 |
57,500 |
47,407 |
5,214 |
0 |
5,214 |
112.69 |
$588 |
$125 |
|||||
|
2021 |
47,000 |
45,150 |
4,966 |
0 |
4,966 |
112.29 |
$558 |
$23 |
|||||
| Property Account Status/Adjustments/Exemptions | ||
|---|---|---|
| Account # | Exemption Description | Amount |
|
R074420560 |
5% Capped Account |
0 |
| Property Deed Transaction History (Recorded in the County Clerk's Office) | |||||||
|---|---|---|---|---|---|---|---|
| Date | Type | Book | Page | Price | Grantor | Grantee | |
|
5/20/2009 |
|
Deeds |
$90,000 |
MARTINEZ JOSE G & TERESA |
SHAFER PROPERTIES LLC |
||
|
2/7/2006 |
|
Deeds |
$158,000 |
ACCESS FUNDING GROUP LLC |
MARTINEZ JOSE G & TERESA |
||
|
6/24/2004 |
|
Mult Parcel |
$93,000 |
KNOWLES MILLARD L & BONNIE L |
ACCESS FUNDING GROUP LLC |
||
|
6/1/1983 |
|
Historical |
$0 |
|
KNOWLES M L & BONNIE L |
||
| Last Mailed Notice of Value (N.O.V.) Information/History | ||||||||
|---|---|---|---|---|---|---|---|---|
| Year | Date | Market Value | Taxable Market Value | Gross Assessed | Exemption | Net Assessed | ||
|
2026 |
02/06/2026 |
79,000 |
57,621 |
6,337 |
0 |
6,337 |
||
|
2025 |
01/31/2025 |
78,500 |
54,878 |
6,036 |
0 |
6,036 |
||
|
2024 |
01/22/2024 |
71,500 |
52,265 |
5,748 |
0 |
5,748 |
||
|
2023 |
01/23/2023 |
65,000 |
49,777 |
5,474 |
0 |
5,474 |
||
|
2022 |
02/22/2022 |
57,500 |
47,407 |
5,214 |
0 |
5,214 |
||
| Property Building Permit History | |||||||||||
|---|---|---|---|---|---|---|---|---|---|---|---|
| Issued | Permit # | Provided by | Bldg # | Description | Est Construction Cost | Status | |||||
| No Building Permit records returned. | |||||||||||
| Click button on building number to access detailed information: | ||||||
|---|---|---|---|---|---|---|
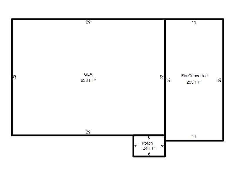
| Bldg # | Vacant/Improved Land | Bldg Description | Year Built | SqFt | # Stories | |
|
1 |
Improved |
Ranch 1 Story |
1954 |
638 |
1 Stories |
|