|
|
|
| Larry Stein Oklahoma County Assessor (405) 713-1200 - Public Access System |
|
|
|
|
|
|
| Real Property Display - Screen Produced 3/16/2026 8:41:15 PM | ||||
|---|---|---|---|---|
| Account: R074420600 | Type: Residential | Location: |
2328 SW 44TH ST |
|
| Building Name/Occupant: |
|
OKLAHOMA CITY |
||
| Owner Name 1: | MOSS D MATTHEW |
Parcel PIN#: |
1673-07-442-0600 |
|
| Owner Name 2: | 1/4 section #: |
1673 |
||
| Owner Name 3: | Parent Acct: |
|
||
| Billing Address: | 424 NW 6TH ST | Tax District: |
|
|
| City, State, Zip | OKLAHOMA CITY, OK 73102-2805 | School System: |
Oklahoma City #89 |
|
|
Country: (If noted) |
Land Size: |
0.1527 Acres |
||
|
Land Value: 14,963 |
|
|||
|
Sect 19-T11N-R3W Qtr NE |
MOORE HEIGHTS ADD
Block
003
Lot
000
|
|||
| Full Legal Description: MOORE HEIGHTS ADD 003 000 LOTS 15 & 16 EX N7FT |
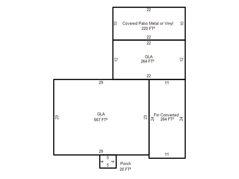
| Photo & Sketch (if available) | Comp Sales (ordered by relevancy) |
|
||||||||||||||||||
|
||||||||||||||||||||
| Value History (*The County Treasurer 405-713-1300 posts & collects actual tax amounts. Contact information HERE) | |||||||||||||
|---|---|---|---|---|---|---|---|---|---|---|---|---|---|
| Year | Market Value | Taxable Mkt Value | Gross Assessed | Exemption | Net Assessed | Millage | Est. Tax | Tax Savings | |||||
|
2025 |
110,500 |
72,747 |
8,002 |
0 |
8,002 |
119.02 |
$952 |
$494 |
|||||
|
2024 |
99,500 |
69,283 |
7,620 |
0 |
7,620 |
119.70 |
$912 |
$398 |
|||||
|
2023 |
90,000 |
65,984 |
7,257 |
0 |
7,257 |
118.33 |
$859 |
$313 |
|||||
|
2022 |
78,000 |
62,842 |
6,912 |
0 |
6,912 |
112.69 |
$779 |
$188 |
|||||
|
2021 |
64,000 |
59,850 |
6,583 |
0 |
6,583 |
112.29 |
$739 |
$51 |
|||||
| Property Account Status/Adjustments/Exemptions | ||
|---|---|---|
| Account # | Exemption Description | Amount |
|
R074420600 |
5% Capped Account |
0 |
| Property Deed Transaction History (Recorded in the County Clerk's Office) | |||||||
|---|---|---|---|---|---|---|---|
| Date | Type | Book | Page | Price | Grantor | Grantee | |
|
12/9/2005 |
|
Deeds |
$0 |
MOSS JENNIFFERR |
MOSS D MATTHEW |
||
|
5/31/2001 |
|
Deeds |
$21,500 |
GROSSNICKLAUS A F L & MARY |
MOSS D MATTHEW |
||
|
11/11/1911 |
|
Historical |
$0 |
|
GROSSNICKLAUS A F L & MARY |
||
| Last Mailed Notice of Value (N.O.V.) Information/History | ||||||||
|---|---|---|---|---|---|---|---|---|
| Year | Date | Market Value | Taxable Market Value | Gross Assessed | Exemption | Net Assessed | ||
|
2026 |
02/06/2026 |
110,500 |
76,384 |
8,402 |
0 |
8,402 |
||
|
2025 |
01/31/2025 |
110,500 |
72,747 |
8,002 |
0 |
8,002 |
||
|
2024 |
01/22/2024 |
99,500 |
69,283 |
7,620 |
0 |
7,620 |
||
|
2023 |
01/23/2023 |
90,000 |
65,984 |
7,257 |
0 |
7,257 |
||
|
2022 |
02/22/2022 |
78,000 |
62,842 |
6,912 |
0 |
6,912 |
||
| Property Building Permit History | |||||||||||
|---|---|---|---|---|---|---|---|---|---|---|---|
| Issued | Permit # | Provided by | Bldg # | Description | Est Construction Cost | Status | |||||
| No Building Permit records returned. | |||||||||||
| Click button on building number to access detailed information: | ||||||
|---|---|---|---|---|---|---|
| Bldg # | Vacant/Improved Land | Bldg Description | Year Built | SqFt | # Stories | |
|
1 |
Improved |
Ranch 1 Story |
1954 |
931 |
1 Stories |
|