|
|
|
| Larry Stein Oklahoma County Assessor (405) 713-1200 - Public Access System |
|
|
|
|
|
|
| Real Property Display - Screen Produced 3/16/2026 8:34:04 PM | ||||
|---|---|---|---|---|
| Account: R074421129 | Type: Residential | Location: |
2425 SW 46TH ST |
|
| Building Name/Occupant: |
|
OKLAHOMA CITY |
||
| Owner Name 1: | BENJOCK RONALD |
Parcel PIN#: |
1673-07-442-1129 |
|
| Owner Name 2: | 1/4 section #: |
1673 |
||
| Owner Name 3: | Parent Acct: |
|
||
| Billing Address: | 2425 SW 46TH ST | Tax District: |
|
|
| City, State, Zip | OKLAHOMA CITY, OK 73119-4810 | School System: |
Oklahoma City #89 |
|
|
Country: (If noted) |
Land Size: |
0.1607 Acres |
||
|
Land Value: 15,750 |
|
|||
|
Sect 19-T11N-R3W Qtr NE |
MOORE HEIGHTS ADD
Block
005
Lot
000
|
|||
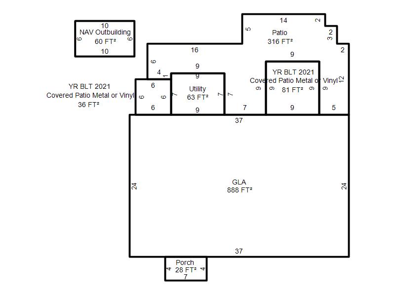
| Full Legal Description: MOORE HEIGHTS ADD 005 000 LOTS 35 & 36 |
| Photo & Sketch (if available) | Comp Sales (ordered by relevancy) |
|
||||||||||||||||||
|
||||||||||||||||||||
| Value History (*The County Treasurer 405-713-1300 posts & collects actual tax amounts. Contact information HERE) | |||||||||||||
|---|---|---|---|---|---|---|---|---|---|---|---|---|---|
| Year | Market Value | Taxable Mkt Value | Gross Assessed | Exemption | Net Assessed | Millage | Est. Tax | Tax Savings | |||||
|
2025 |
101,000 |
57,963 |
6,375 |
1,000 |
5,375 |
119.02 |
$640 |
$682 |
|||||
|
2024 |
92,000 |
56,275 |
6,189 |
1,000 |
5,189 |
119.70 |
$621 |
$590 |
|||||
|
2023 |
80,000 |
54,636 |
6,009 |
1,000 |
5,009 |
118.33 |
$593 |
$448 |
|||||
|
2022 |
69,000 |
53,045 |
5,834 |
1,000 |
4,834 |
112.69 |
$545 |
$310 |
|||||
|
2021 |
56,000 |
51,500 |
5,665 |
1,000 |
4,665 |
112.29 |
$524 |
$168 |
|||||
| Property Account Status/Adjustments/Exemptions | ||
|---|---|---|
| Account # | Exemption Description | Amount |
|
R074421129 |
3% Cap Homestead |
0 |
|
R074421129 |
Homestead |
1,000 |
| Property Deed Transaction History (Recorded in the County Clerk's Office) | |||||||
|---|---|---|---|---|---|---|---|
| Date | Type | Book | Page | Price | Grantor | Grantee | |
|
5/4/1998 |
|
Historical |
$34,000 |
MASSEY DONALD K |
BENJOCK RONALD |
||
|
5/9/1995 |
|
Historical |
$0 |
MASSEY AUDIE M & B B |
MASSEY DONALD K |
||
|
11/11/1911 |
|
Historical |
$0 |
|
MASSEY AUDIE M & B B |
||
| Last Mailed Notice of Value (N.O.V.) Information/History | ||||||||
|---|---|---|---|---|---|---|---|---|
| Year | Date | Market Value | Taxable Market Value | Gross Assessed | Exemption | Net Assessed | ||
|
2026 |
02/06/2026 |
100,500 |
59,701 |
6,566 |
1,000 |
5,566 |
||
|
2025 |
01/31/2025 |
101,000 |
57,963 |
6,375 |
1,000 |
5,375 |
||
|
2024 |
01/22/2024 |
92,000 |
56,275 |
6,189 |
1,000 |
5,189 |
||
|
2023 |
01/23/2023 |
80,000 |
54,636 |
6,009 |
1,000 |
5,009 |
||
|
2022 |
02/22/2022 |
69,000 |
53,045 |
5,834 |
1,000 |
4,834 |
||
| Property Building Permit History | |||||||||||
|---|---|---|---|---|---|---|---|---|---|---|---|
| Issued | Permit # | Provided by | Bldg # | Description | Est Construction Cost | Status | |||||
| No Building Permit records returned. | |||||||||||
| Click button on building number to access detailed information: | ||||||
|---|---|---|---|---|---|---|
| Bldg # | Vacant/Improved Land | Bldg Description | Year Built | SqFt | # Stories | |
|
1 |
Improved |
Ranch 1 Story |
1953 |
888 |
1 Stories |
|