|
|
|
| Larry Stein Oklahoma County Assessor (405) 713-1200 - Public Access System |
|
|
|
|
|
|
| Real Property Display - Screen Produced 3/14/2026 7:22:17 AM | ||||
|---|---|---|---|---|
| Account: R155402175 | Type: Residential | Location: |
10801 BELLEVIEW DR |
|
| Building Name/Occupant: |
|
MIDWEST CITY |
||
| Owner Name 1: | JOHNSON DON B & JOANN CO TRS |
Parcel PIN#: |
1221-15-540-2175 |
|
| Owner Name 2: | JOHNSON DON B & JOANN TRUST | 1/4 section #: |
1221 |
|
| Owner Name 3: | Parent Acct: |
|
||
| Billing Address: | 14050 HUMMINGBIRD DR | Tax District: |
|
|
| City, State, Zip | CHOCTAW, OK 73020-7018 | School System: |
Choctaw #4 |
|
|
Country: (If noted) |
Land Size: |
0.3099 Acres |
||
|
Land Value: 29,025 |
|
|||
|
Sect 6-T11N-R1W Qtr NE |
POINTON CITY 2ND ADD
Block
009
Lot
010
|
|||
| Full Legal Description: POINTON CITY 2ND ADD 009 010 |
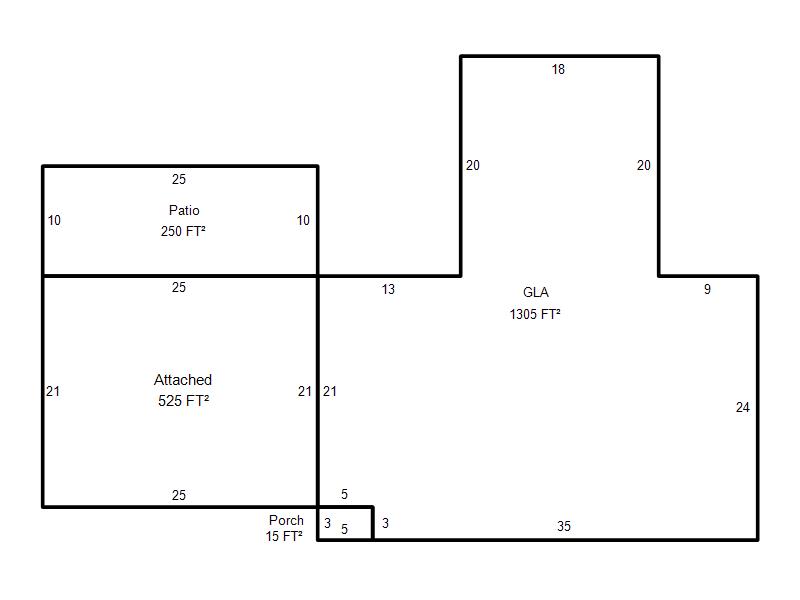
| Photo & Sketch (if available) | Comp Sales (ordered by relevancy) |
|
||||||||||||||||||
|
||||||||||||||||||||
| Value History (*The County Treasurer 405-713-1300 posts & collects actual tax amounts. Contact information HERE) | |||||||||||||
|---|---|---|---|---|---|---|---|---|---|---|---|---|---|
| Year | Market Value | Taxable Mkt Value | Gross Assessed | Exemption | Net Assessed | Millage | Est. Tax | Tax Savings | |||||
|
2025 |
149,500 |
119,330 |
13,126 |
0 |
13,126 |
127.03 |
$1,667 |
$422 |
|||||
|
2024 |
134,000 |
113,648 |
12,501 |
0 |
12,501 |
127.00 |
$1,588 |
$284 |
|||||
|
2023 |
128,000 |
108,237 |
11,905 |
0 |
11,905 |
128.50 |
$1,530 |
$279 |
|||||
|
2022 |
118,500 |
103,083 |
11,338 |
0 |
11,338 |
127.22 |
$1,443 |
$216 |
|||||
|
2021 |
101,000 |
98,175 |
10,799 |
0 |
10,799 |
126.69 |
$1,368 |
$39 |
|||||
| Property Account Status/Adjustments/Exemptions | ||
|---|---|---|
| Account # | Exemption Description | Amount |
|
R155402175 |
5% Capped Account |
0 |
| Property Deed Transaction History (Recorded in the County Clerk's Office) | |||||||
|---|---|---|---|---|---|---|---|
| Date | Type | Book | Page | Price | Grantor | Grantee | |
|
10/14/2015 |
|
Hmstd Off & |
$0 |
JOHNSON DON B & JOANN |
JOHNSON DON B & JOANN CO TRS |
||
|
11/11/1911 |
|
Historical |
$0 |
|
JOHNSON DON B & JOANN |
||
| Last Mailed Notice of Value (N.O.V.) Information/History | ||||||||
|---|---|---|---|---|---|---|---|---|
| Year | Date | Market Value | Taxable Market Value | Gross Assessed | Exemption | Net Assessed | ||
|
2026 |
02/06/2026 |
145,000 |
125,296 |
13,782 |
0 |
13,782 |
||
|
2025 |
01/31/2025 |
149,500 |
119,330 |
13,126 |
0 |
13,126 |
||
|
2024 |
01/22/2024 |
134,000 |
113,648 |
12,501 |
0 |
12,501 |
||
|
2023 |
01/23/2023 |
128,000 |
108,237 |
11,905 |
0 |
11,905 |
||
|
2022 |
02/22/2022 |
118,500 |
103,083 |
11,338 |
0 |
11,338 |
||
| Property Building Permit History | |||||||||||
|---|---|---|---|---|---|---|---|---|---|---|---|
| Issued | Permit # | Provided by | Bldg # | Description | Est Construction Cost | Status | |||||
| No Building Permit records returned. | |||||||||||
| Click button on building number to access detailed information: | ||||||
|---|---|---|---|---|---|---|
| Bldg # | Vacant/Improved Land | Bldg Description | Year Built | SqFt | # Stories | |
|
1 |
Improved |
Ranch 1 Story |
1959 |
1,305 |
1 Stories |
|