|
|
|
| Larry Stein Oklahoma County Assessor (405) 713-1200 - Public Access System |
|
|
|
|
|
|
| Real Property Display - Screen Produced 3/16/2026 8:34:03 PM | ||||
|---|---|---|---|---|
| Account: R074421250 | Type: Residential | Location: |
2320 SW 45TH ST |
|
| Building Name/Occupant: |
|
OKLAHOMA CITY |
||
| Owner Name 1: | COVARRUBIAS FEDERICO & HILDA |
Parcel PIN#: |
1673-07-442-1250 |
|
| Owner Name 2: | 1/4 section #: |
1673 |
||
| Owner Name 3: | Parent Acct: |
|
||
| Billing Address: | 6809 S KLEIN AVE | Tax District: |
|
|
| City, State, Zip | OKLAHOMA CITY, OK 73139-1538 | School System: |
Oklahoma City #89 |
|
|
Country: (If noted) |
Land Size: |
0.1607 Acres |
||
|
Land Value: 15,750 |
|
|||
|
Sect 19-T11N-R3W Qtr NE |
MOORE HEIGHTS ADD
Block
006
Lot
000
|
|||
| Full Legal Description: MOORE HEIGHTS ADD 006 000 LOTS 11 & 12 |
| Photo & Sketch (if available) | Comp Sales (ordered by relevancy) |
|
||||||||||||||||||
|
||||||||||||||||||||
| Value History (*The County Treasurer 405-713-1300 posts & collects actual tax amounts. Contact information HERE) | |||||||||||||
|---|---|---|---|---|---|---|---|---|---|---|---|---|---|
| Year | Market Value | Taxable Mkt Value | Gross Assessed | Exemption | Net Assessed | Millage | Est. Tax | Tax Savings | |||||
|
2025 |
89,500 |
58,707 |
6,457 |
0 |
6,457 |
119.02 |
$769 |
$403 |
|||||
|
2024 |
81,500 |
55,912 |
6,149 |
0 |
6,149 |
119.70 |
$736 |
$337 |
|||||
|
2023 |
73,000 |
53,250 |
5,856 |
0 |
5,856 |
118.33 |
$693 |
$257 |
|||||
|
2022 |
61,500 |
50,715 |
5,578 |
0 |
5,578 |
112.69 |
$629 |
$134 |
|||||
|
2021 |
51,000 |
48,300 |
5,313 |
0 |
5,313 |
112.29 |
$597 |
$33 |
|||||
| Property Account Status/Adjustments/Exemptions | ||
|---|---|---|
| Account # | Exemption Description | Amount |
|
R074421250 |
5% Capped Account |
0 |
| Property Deed Transaction History (Recorded in the County Clerk's Office) | |||||||
|---|---|---|---|---|---|---|---|
| Date | Type | Book | Page | Price | Grantor | Grantee | |
|
3/23/2001 |
|
Deeds |
$16,000 |
MCAFEE BILL V |
COVARRUBIAS FEDERICO & HILDA |
||
|
2/27/1990 |
|
Historical |
$16,333 |
TRANSAMERICA FINANCIAL |
MCAFEE BILL V |
||
|
11/22/1989 |
|
Historical |
$0 |
MORRISON L K & B L |
TRANSAMERICA FINANCIAL |
||
|
11/11/1911 |
|
Historical |
$0 |
|
MORRISON L K & B L |
||
| Last Mailed Notice of Value (N.O.V.) Information/History | ||||||||
|---|---|---|---|---|---|---|---|---|
| Year | Date | Market Value | Taxable Market Value | Gross Assessed | Exemption | Net Assessed | ||
|
2026 |
02/06/2026 |
90,000 |
61,642 |
6,779 |
0 |
6,779 |
||
|
2025 |
01/31/2025 |
89,500 |
58,707 |
6,457 |
0 |
6,457 |
||
|
2024 |
01/22/2024 |
81,500 |
55,912 |
6,149 |
0 |
6,149 |
||
|
2023 |
01/23/2023 |
73,000 |
53,250 |
5,856 |
0 |
5,856 |
||
|
2022 |
02/22/2022 |
61,500 |
50,715 |
5,578 |
0 |
5,578 |
||
| Property Building Permit History | |||||||||||
|---|---|---|---|---|---|---|---|---|---|---|---|
| Issued | Permit # | Provided by | Bldg # | Description | Est Construction Cost | Status | |||||
| No Building Permit records returned. | |||||||||||
| Click button on building number to access detailed information: | ||||||
|---|---|---|---|---|---|---|
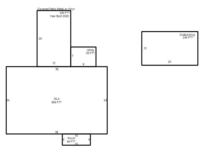
| Bldg # | Vacant/Improved Land | Bldg Description | Year Built | SqFt | # Stories | |
|
1 |
Improved |
Ranch 1 Story |
1953 |
864 |
1 Stories |
|