|
|
|
| Larry Stein Oklahoma County Assessor (405) 713-1200 - Public Access System |
|
|
|
|
|
|
| Real Property Display - Screen Produced 3/16/2026 8:40:55 PM | ||||
|---|---|---|---|---|
| Account: R074421580 | Type: Residential | Location: |
2313 SW 46TH ST |
|
| Building Name/Occupant: |
|
OKLAHOMA CITY |
||
| Owner Name 1: | WESTLAKE RENTAL PROPERTIES LLC |
Parcel PIN#: |
1673-07-442-1580 |
|
| Owner Name 2: | 1/4 section #: |
1673 |
||
| Owner Name 3: | Parent Acct: |
|
||
| Billing Address: | 1806 SUMMERHAVEN WAY | Tax District: |
|
|
| City, State, Zip | EDMOND, OK 73013 | School System: |
Oklahoma City #89 |
|
|
Country: (If noted) |
Land Size: |
0.1607 Acres |
||
|
Land Value: 15,750 |
|
|||
|
Sect 19-T11N-R3W Qtr NE |
MOORE HEIGHTS ADD
Block
006
Lot
000
|
|||
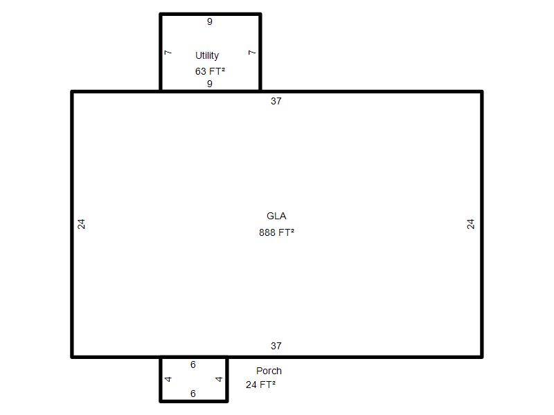
| Full Legal Description: MOORE HEIGHTS ADD 006 000 LOTS 41 & 42 |
| Photo & Sketch (if available) | Comp Sales (ordered by relevancy) |
|
||||||||||||||||||
|
||||||||||||||||||||
| Value History (*The County Treasurer 405-713-1300 posts & collects actual tax amounts. Contact information HERE) | |||||||||||||
|---|---|---|---|---|---|---|---|---|---|---|---|---|---|
| Year | Market Value | Taxable Mkt Value | Gross Assessed | Exemption | Net Assessed | Millage | Est. Tax | Tax Savings | |||||
|
2025 |
111,500 |
72,108 |
7,931 |
0 |
7,931 |
119.02 |
$944 |
$516 |
|||||
|
2024 |
103,000 |
68,675 |
7,553 |
0 |
7,553 |
119.70 |
$904 |
$452 |
|||||
|
2023 |
90,500 |
65,405 |
7,194 |
0 |
7,194 |
118.33 |
$851 |
$327 |
|||||
|
2022 |
79,000 |
62,291 |
6,851 |
0 |
6,851 |
112.69 |
$772 |
$207 |
|||||
|
2021 |
64,000 |
59,325 |
6,525 |
0 |
6,525 |
112.29 |
$733 |
$58 |
|||||
| Property Account Status/Adjustments/Exemptions | ||
|---|---|---|
| Account # | Exemption Description | Amount |
|
R074421580 |
5% Capped Account |
0 |
| Property Deed Transaction History (Recorded in the County Clerk's Office) | ||||||||||
|---|---|---|---|---|---|---|---|---|---|---|
| Date | Type | Book | Page | Price | Grantor | Grantee | ||||
|
4/23/2018 |
|
Deeds |
$42,000 |
AUSTIN BRET GENE |
WESTLAKE RENTAL PROPERTIES LLC |
|||||
|
3/31/2018 |
|
Hmstd Off & |
$0 |
T & B PROPERTY INVESTMENTS LLC |
AUSTIN BRET GENE |
|||||
|
11/17/2006 |
|
Deeds |
$48,500 |
BUI QUAN THI TRAN JOSHUE T |
T & B PROPERTY INVESTMENTS LLC |
|||||
|
2/7/2006 |
|
Deeds |
$0 |
BUI QUAN THI |
BUI QUAN THI TRAN JOSHUE T |
|||||
|
6/10/1997 |
|
Historical |
$25,000 |
KIM LIVINGSTONE T |
BUI QUAN THI |
|||||
| Last Mailed Notice of Value (N.O.V.) Information/History | ||||||||
|---|---|---|---|---|---|---|---|---|
| Year | Date | Market Value | Taxable Market Value | Gross Assessed | Exemption | Net Assessed | ||
|
2026 |
02/06/2026 |
109,000 |
75,713 |
8,327 |
0 |
8,327 |
||
|
2025 |
01/31/2025 |
111,500 |
72,108 |
7,931 |
0 |
7,931 |
||
|
2024 |
01/22/2024 |
103,000 |
68,675 |
7,553 |
0 |
7,553 |
||
|
2023 |
01/23/2023 |
90,500 |
65,405 |
7,194 |
0 |
7,194 |
||
|
2022 |
02/22/2022 |
79,000 |
62,291 |
6,851 |
0 |
6,851 |
||
| Property Building Permit History | |||||||||||
|---|---|---|---|---|---|---|---|---|---|---|---|
| Issued | Permit # | Provided by | Bldg # | Description | Est Construction Cost | Status | |||||
| No Building Permit records returned. | |||||||||||
| Click button on building number to access detailed information: | ||||||
|---|---|---|---|---|---|---|
| Bldg # | Vacant/Improved Land | Bldg Description | Year Built | SqFt | # Stories | |
|
1 |
Improved |
Ranch 1 Story |
1953 |
888 |
1 Stories |
|