|
|
|
| Larry Stein Oklahoma County Assessor (405) 713-1200 - Public Access System |
|
|
|
|
|
|
| Real Property Display - Screen Produced 3/16/2026 8:34:27 PM | ||||
|---|---|---|---|---|
| Account: R074421815 | Type: Residential | Location: |
2138 SW 45TH ST |
|
| Building Name/Occupant: |
|
OKLAHOMA CITY |
||
| Owner Name 1: | CLOUD CLEO |
Parcel PIN#: |
1673-07-442-1815 |
|
| Owner Name 2: | 1/4 section #: |
1673 |
||
| Owner Name 3: | Parent Acct: |
|
||
| Billing Address: | 2138 SW 45TH ST | Tax District: |
|
|
| City, State, Zip | OKLAHOMA CITY, OK 73119-4901 | School System: |
Oklahoma City #89 |
|
|
Country: (If noted) |
Land Size: |
0.1993 Acres |
||
|
Land Value: 19,530 |
|
|||
|
Sect 19-T11N-R3W Qtr NE |
MOORE HEIGHTS ADD
Block
008
Lot
000
|
|||
| Full Legal Description: MOORE HEIGHTS ADD 008 000 E 1/2 LOT 22 ALL LOTS 20 & 21 |
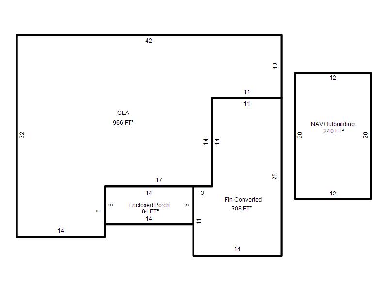
| Photo & Sketch (if available) | Comp Sales (ordered by relevancy) |
|
||||||||||||||||||
|
||||||||||||||||||||
| Value History (*The County Treasurer 405-713-1300 posts & collects actual tax amounts. Contact information HERE) | |||||||||||||
|---|---|---|---|---|---|---|---|---|---|---|---|---|---|
| Year | Market Value | Taxable Mkt Value | Gross Assessed | Exemption | Net Assessed | Millage | Est. Tax | Tax Savings | |||||
|
2025 |
124,000 |
82,001 |
9,019 |
0 |
9,019 |
119.02 |
$1,074 |
$550 |
|||||
|
2024 |
113,000 |
78,097 |
8,590 |
0 |
8,590 |
119.70 |
$1,028 |
$460 |
|||||
|
2023 |
102,000 |
74,379 |
8,181 |
0 |
8,181 |
118.33 |
$968 |
$360 |
|||||
|
2022 |
89,500 |
70,838 |
7,792 |
0 |
7,792 |
112.69 |
$878 |
$231 |
|||||
|
2021 |
73,000 |
67,465 |
7,421 |
1,000 |
6,421 |
112.29 |
$721 |
$181 |
|||||
| Property Account Status/Adjustments/Exemptions | ||
|---|---|---|
| Account # | Exemption Description | Amount |
|
R074421815 |
5% Capped Account |
0 |
| Property Deed Transaction History (Recorded in the County Clerk's Office) | ||||||||||
|---|---|---|---|---|---|---|---|---|---|---|
| Date | Type | Book | Page | Price | Grantor | Grantee | ||||
|
3/31/2017 |
|
Deeds |
$0 |
REYES VIRGINIA LYNN |
CLOUD CLEO |
|||||
|
11/15/2016 |
|
Hmstd Off & |
$0 |
CLOUD AMBER N |
CLOUD CLEO |
|||||
|
2/26/2002 |
|
Hmstd Off & |
$0 |
CLOUD CLEO |
CLOUD AMBER N |
|||||
|
7/23/1996 |
|
Historical |
$39,500 |
WORKMAN TWYLA S |
CLOUD CLEO |
|||||
|
6/23/1994 |
|
Historical |
$0 |
WORKMAN TWYLA S |
WORKMAN TWYLA S |
|||||
| Last Mailed Notice of Value (N.O.V.) Information/History | ||||||||
|---|---|---|---|---|---|---|---|---|
| Year | Date | Market Value | Taxable Market Value | Gross Assessed | Exemption | Net Assessed | ||
|
2026 |
02/06/2026 |
121,000 |
86,101 |
9,471 |
0 |
9,471 |
||
|
2025 |
01/31/2025 |
124,000 |
82,001 |
9,019 |
0 |
9,019 |
||
|
2024 |
01/22/2024 |
113,000 |
78,097 |
8,590 |
0 |
8,590 |
||
|
2023 |
01/23/2023 |
102,000 |
74,379 |
8,181 |
0 |
8,181 |
||
|
2022 |
02/22/2022 |
89,500 |
69,488 |
7,643 |
1,000 |
6,643 |
||
| Property Building Permit History | |||||||||||
|---|---|---|---|---|---|---|---|---|---|---|---|
| Issued | Permit # | Provided by | Bldg # | Description | Est Construction Cost | Status | |||||
| No Building Permit records returned. | |||||||||||
| Click button on building number to access detailed information: | ||||||
|---|---|---|---|---|---|---|
| Bldg # | Vacant/Improved Land | Bldg Description | Year Built | SqFt | # Stories | |
|
1 |
Improved |
Ranch 1 Story |
1959 |
966 |
1 Stories |
|