|
|
|
| Larry Stein Oklahoma County Assessor (405) 713-1200 - Public Access System |
|
|
|
|
|
|
| Real Property Display - Screen Produced 3/16/2026 8:39:37 PM | ||||
|---|---|---|---|---|
| Account: R074421845 | Type: Residential | Location: |
2131 SW 46TH ST |
|
| Building Name/Occupant: |
|
OKLAHOMA CITY |
||
| Owner Name 1: | OUTLAW INVESTMENTS 204Q LLC |
Parcel PIN#: |
1673-07-442-1845 |
|
| Owner Name 2: | 1/4 section #: |
1673 |
||
| Owner Name 3: | Parent Acct: |
|
||
| Billing Address: | PO BOX 163 | Tax District: |
|
|
| City, State, Zip | GOODWELL , OK 73939 | School System: |
Oklahoma City #89 |
|
|
Country: (If noted) |
Land Size: |
0.1607 Acres |
||
|
Land Value: 15,750 |
|
|||
|
Sect 19-T11N-R3W Qtr NE |
MOORE HEIGHTS ADD
Block
008
Lot
000
|
|||
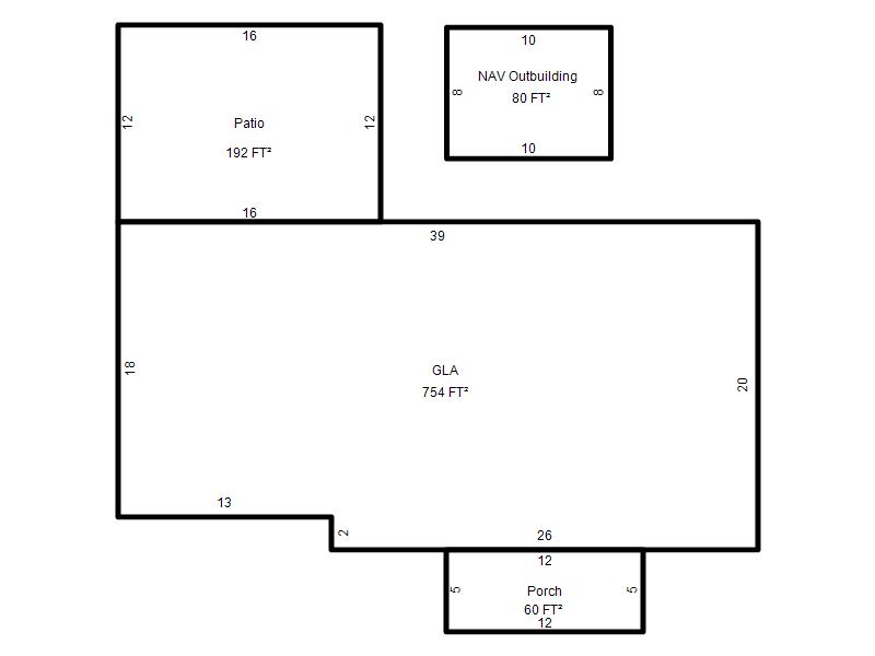
| Full Legal Description: MOORE HEIGHTS ADD 008 000 LOTS 33 & 34 |
| Photo & Sketch (if available) | Comp Sales (ordered by relevancy) |
|
||||||||||||||||||
|
||||||||||||||||||||
| Value History (*The County Treasurer 405-713-1300 posts & collects actual tax amounts. Contact information HERE) | |||||||||||||
|---|---|---|---|---|---|---|---|---|---|---|---|---|---|
| Year | Market Value | Taxable Mkt Value | Gross Assessed | Exemption | Net Assessed | Millage | Est. Tax | Tax Savings | |||||
|
2025 |
81,500 |
61,932 |
6,812 |
0 |
6,812 |
119.02 |
$811 |
$256 |
|||||
|
2024 |
74,500 |
58,983 |
6,487 |
0 |
6,487 |
119.70 |
$777 |
$204 |
|||||
|
2023 |
64,000 |
56,175 |
6,179 |
0 |
6,179 |
118.33 |
$731 |
$102 |
|||||
|
2022 |
53,500 |
53,500 |
5,885 |
0 |
5,885 |
112.69 |
$663 |
$0 |
|||||
|
2021 |
53,500 |
53,500 |
5,885 |
0 |
5,885 |
112.29 |
$661 |
$0 |
|||||
| Property Account Status/Adjustments/Exemptions | ||
|---|---|---|
| Account # | Exemption Description | Amount |
|
R074421845 |
5% Capped Account |
0 |
| Property Deed Transaction History (Recorded in the County Clerk's Office) | |||||||
|---|---|---|---|---|---|---|---|
| Date | Type | Book | Page | Price | Grantor | Grantee | |
|
12/14/2020 |
|
Deeds |
$54,500 |
V & S RENTALS LLC |
OUTLAW INVESTMENTS 204Q LLC |
||
|
8/14/2007 |
|
Hmstd Off & |
$0 |
MUZNY VERNON & SANDRA |
V & S RENTALS LLC |
||
|
6/15/2001 |
|
Deeds |
$9,000 |
ROLLAND JACK & MARGIE D |
MUZNY VERNON |
||
|
3/1/1979 |
|
Historical |
$0 |
|
ROLLAND JACK & MARGIE D |
||
| Last Mailed Notice of Value (N.O.V.) Information/History | ||||||||
|---|---|---|---|---|---|---|---|---|
| Year | Date | Market Value | Taxable Market Value | Gross Assessed | Exemption | Net Assessed | ||
|
2026 |
02/06/2026 |
81,500 |
65,028 |
7,152 |
0 |
7,152 |
||
|
2025 |
01/31/2025 |
81,500 |
61,932 |
6,812 |
0 |
6,812 |
||
|
2024 |
01/22/2024 |
74,500 |
58,983 |
6,487 |
0 |
6,487 |
||
|
2023 |
01/23/2023 |
64,000 |
56,175 |
6,179 |
0 |
6,179 |
||
|
2021 |
04/09/2021 |
53,500 |
53,500 |
5,885 |
0 |
5,885 |
||
| Property Building Permit History | |||||||||||
|---|---|---|---|---|---|---|---|---|---|---|---|
| Issued | Permit # | Provided by | Bldg # | Description | Est Construction Cost | Status | |||||
| No Building Permit records returned. | |||||||||||
| Click button on building number to access detailed information: | ||||||
|---|---|---|---|---|---|---|
| Bldg # | Vacant/Improved Land | Bldg Description | Year Built | SqFt | # Stories | |
|
1 |
Improved |
Ranch 1 Story |
1952 |
754 |
1 Stories |
|