|
|
|
| Larry Stein Oklahoma County Assessor (405) 713-1200 - Public Access System |
|
|
|
|
|
|
| Real Property Display - Screen Produced 3/16/2026 8:41:15 PM | ||||
|---|---|---|---|---|
| Account: R074422150 | Type: Residential | Location: |
2128 SW 46TH ST |
|
| Building Name/Occupant: |
|
OKLAHOMA CITY |
||
| Owner Name 1: | MUZNY DAVID V & PAULA J |
Parcel PIN#: |
1673-07-442-2150 |
|
| Owner Name 2: | 1/4 section #: |
1673 |
||
| Owner Name 3: | Parent Acct: |
|
||
| Billing Address: | 5701 STEEPLE RUN DR | Tax District: |
|
|
| City, State, Zip | MUSTANG, OK 73064-7905 | School System: |
Oklahoma City #89 |
|
|
Country: (If noted) |
Land Size: |
0.1607 Acres |
||
|
Land Value: 15,750 |
|
|||
|
Sect 19-T11N-R3W Qtr NE |
MOORE HEIGHTS ADD
Block
009
Lot
000
|
|||
| Full Legal Description: MOORE HEIGHTS ADD 009 000 LOTS 15 & 16 |
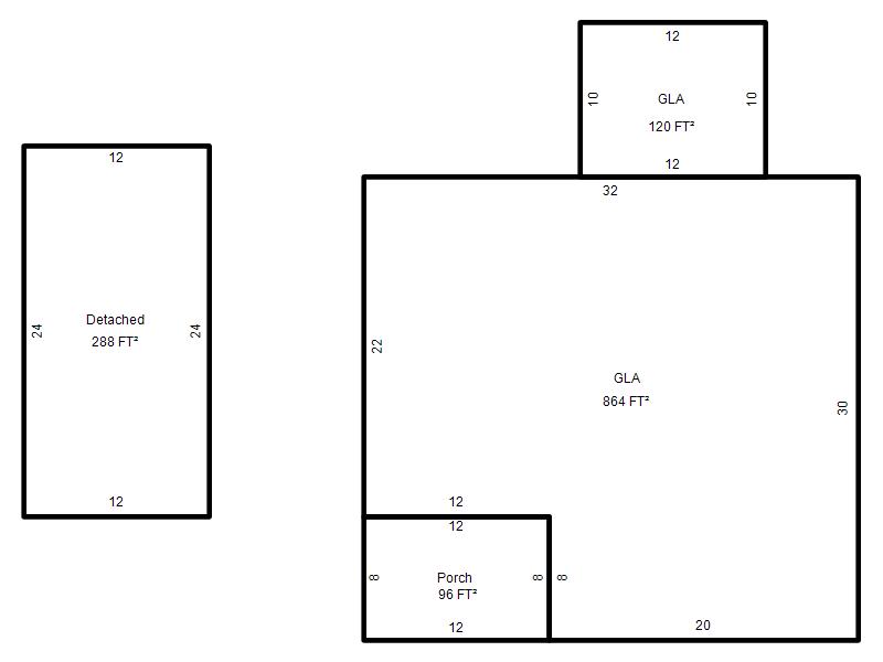
| Photo & Sketch (if available) | Comp Sales (ordered by relevancy) |
|
||||||||||||||||||
|
||||||||||||||||||||
| Value History (*The County Treasurer 405-713-1300 posts & collects actual tax amounts. Contact information HERE) | |||||||||||||
|---|---|---|---|---|---|---|---|---|---|---|---|---|---|
| Year | Market Value | Taxable Mkt Value | Gross Assessed | Exemption | Net Assessed | Millage | Est. Tax | Tax Savings | |||||
|
2025 |
101,000 |
71,471 |
7,861 |
0 |
7,861 |
119.02 |
$936 |
$387 |
|||||
|
2024 |
94,500 |
68,068 |
7,486 |
0 |
7,486 |
119.70 |
$896 |
$348 |
|||||
|
2023 |
85,000 |
64,827 |
7,130 |
0 |
7,130 |
118.33 |
$844 |
$263 |
|||||
|
2022 |
75,000 |
61,740 |
6,791 |
0 |
6,791 |
112.69 |
$765 |
$164 |
|||||
|
2021 |
62,000 |
58,800 |
6,468 |
0 |
6,468 |
112.29 |
$726 |
$40 |
|||||
| Property Account Status/Adjustments/Exemptions | ||
|---|---|---|
| Account # | Exemption Description | Amount |
|
R074422150 |
5% Capped Account |
0 |
| Property Deed Transaction History (Recorded in the County Clerk's Office) | |||||||
|---|---|---|---|---|---|---|---|
| Date | Type | Book | Page | Price | Grantor | Grantee | |
|
3/26/1998 |
|
Historical |
$0 |
MUZNY VERNON & SANDY |
MUZNY DAVID V & PAULA J |
||
|
1/9/1989 |
|
Historical |
$13,500 |
CAPITOL BANK & TRUST |
MUZNY VERNON & SANDY |
||
|
7/22/1988 |
|
Historical |
$0 |
JOHNSON CECIL R JR |
CAPITOL BANK & TRUST |
||
|
4/1/1986 |
|
Historical |
$0 |
|
JOHNSON CECIL R JR |
||
| Last Mailed Notice of Value (N.O.V.) Information/History | ||||||||
|---|---|---|---|---|---|---|---|---|
| Year | Date | Market Value | Taxable Market Value | Gross Assessed | Exemption | Net Assessed | ||
|
2026 |
02/06/2026 |
100,500 |
75,044 |
8,254 |
0 |
8,254 |
||
|
2025 |
01/31/2025 |
101,000 |
71,471 |
7,861 |
0 |
7,861 |
||
|
2024 |
01/22/2024 |
94,500 |
68,068 |
7,486 |
0 |
7,486 |
||
|
2023 |
01/23/2023 |
85,000 |
64,827 |
7,130 |
0 |
7,130 |
||
|
2022 |
02/22/2022 |
75,000 |
61,740 |
6,791 |
0 |
6,791 |
||
| Property Building Permit History | |||||||||||
|---|---|---|---|---|---|---|---|---|---|---|---|
| Issued | Permit # | Provided by | Bldg # | Description | Est Construction Cost | Status | |||||
| No Building Permit records returned. | |||||||||||
| Click button on building number to access detailed information: | ||||||
|---|---|---|---|---|---|---|
| Bldg # | Vacant/Improved Land | Bldg Description | Year Built | SqFt | # Stories | |
|
1 |
Improved |
Ranch 1 Story |
1959 |
984 |
1 Stories |
|