|
|
|
| Larry Stein Oklahoma County Assessor (405) 713-1200 - Public Access System |
|
|
|
|
|
|
| Real Property Display - Screen Produced 3/14/2026 7:26:45 AM | ||||
|---|---|---|---|---|
| Account: R155402315 | Type: Residential | Location: |
10808 BELLVIEW DR |
|
| Building Name/Occupant: |
|
MIDWEST CITY |
||
| Owner Name 1: | BROWN BRENDA |
Parcel PIN#: |
1221-15-540-2315 |
|
| Owner Name 2: | 1/4 section #: |
1221 |
||
| Owner Name 3: | Parent Acct: |
|
||
| Billing Address: | 10808 BELLVIEW DR | Tax District: |
|
|
| City, State, Zip | MIDWEST CITY, OK 73130-5108 | School System: |
Choctaw #4 |
|
|
Country: (If noted) |
Land Size: |
0.6198 Acres |
||
|
Land Value: 55,148 |
|
|||
|
Sect 6-T11N-R1W Qtr NE |
POINTON CITY 2ND ADD
Block
010
Lot
000
|
|||
| Full Legal Description: POINTON CITY 2ND ADD 010 000 LOTS 9 & 10 |
| Photo & Sketch (if available) | Comp Sales (ordered by relevancy) |
|
||||||||||||||||||
|
||||||||||||||||||||
| Value History (*The County Treasurer 405-713-1300 posts & collects actual tax amounts. Contact information HERE) | |||||||||||||
|---|---|---|---|---|---|---|---|---|---|---|---|---|---|
| Year | Market Value | Taxable Mkt Value | Gross Assessed | Exemption | Net Assessed | Millage | Est. Tax | Tax Savings | |||||
|
2025 |
155,000 |
112,448 |
12,369 |
1,000 |
11,369 |
127.03 |
$1,444 |
$722 |
|||||
|
2024 |
141,000 |
109,173 |
12,008 |
1,000 |
11,008 |
127.00 |
$1,398 |
$572 |
|||||
|
2023 |
134,000 |
105,994 |
11,658 |
1,000 |
10,658 |
128.50 |
$1,370 |
$524 |
|||||
|
2022 |
124,000 |
102,907 |
11,319 |
1,000 |
10,319 |
127.22 |
$1,313 |
$422 |
|||||
|
2021 |
107,000 |
99,910 |
10,990 |
1,000 |
9,990 |
126.69 |
$1,266 |
$225 |
|||||
| Property Account Status/Adjustments/Exemptions | ||
|---|---|---|
| Account # | Exemption Description | Amount |
|
R155402315 |
3% Cap Homestead |
0 |
|
R155402315 |
Homestead |
1,000 |
| Property Deed Transaction History (Recorded in the County Clerk's Office) | |||||||
|---|---|---|---|---|---|---|---|
| Date | Type | Book | Page | Price | Grantor | Grantee | |
|
10/26/2011 |
|
Deeds |
$85,000 |
REED ALFRED M |
BROWN BRENDA |
||
|
3/17/1994 |
|
Historical |
$0 |
REED ALFRED M & MARTHA M |
REED ALFRED M |
||
|
11/11/1911 |
|
Historical |
$0 |
|
REED ALFRED M & M M |
||
| Last Mailed Notice of Value (N.O.V.) Information/History | ||||||||
|---|---|---|---|---|---|---|---|---|
| Year | Date | Market Value | Taxable Market Value | Gross Assessed | Exemption | Net Assessed | ||
|
2026 |
02/06/2026 |
154,000 |
115,821 |
12,740 |
1,000 |
11,740 |
||
|
2025 |
01/31/2025 |
155,000 |
112,448 |
12,369 |
1,000 |
11,369 |
||
|
2024 |
01/22/2024 |
141,000 |
109,173 |
12,008 |
1,000 |
11,008 |
||
|
2023 |
01/23/2023 |
134,000 |
105,994 |
11,658 |
1,000 |
10,658 |
||
|
2022 |
02/22/2022 |
124,000 |
102,907 |
11,319 |
1,000 |
10,319 |
||
| Property Building Permit History | |||||||||||
|---|---|---|---|---|---|---|---|---|---|---|---|
| Issued | Permit # | Provided by | Bldg # | Description | Est Construction Cost | Status | |||||
| No Building Permit records returned. | |||||||||||
| Click button on building number to access detailed information: | ||||||
|---|---|---|---|---|---|---|
| Bldg # | Vacant/Improved Land | Bldg Description | Year Built | SqFt | # Stories | |
|
1 |
Improved |
Ranch 1 Story |
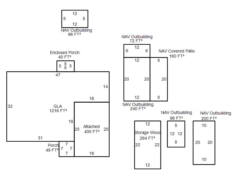
1960 |
1,216 |
1 Stories |
|