|
|
|
| Larry Stein Oklahoma County Assessor (405) 713-1200 - Public Access System |
|
|
|
|
|
|
| Real Property Display - Screen Produced 3/21/2026 5:35:49 AM | ||||
|---|---|---|---|---|
| Account: R074423900 | Type: Residential | Location: |
4803 S BARNES |
|
| Building Name/Occupant: |
|
OKLAHOMA CITY |
||
| Owner Name 1: | HOWARD GEORGE |
Parcel PIN#: |
1673-07-442-3900 |
|
| Owner Name 2: | 1/4 section #: |
1673 |
||
| Owner Name 3: | Parent Acct: |
|
||
| Billing Address: | 2020 NE 4TH ST | Tax District: |
|
|
| City, State, Zip | OKLAHOMA CITY, OK 73117 | School System: |
Oklahoma City #89 |
|
|
Country: (If noted) |
UNITED STATES |
Land Size: |
0.1607 Acres |
|
|
Land Value: 15,750 |
|
|||
|
Sect 19-T11N-R3W Qtr NE |
MOORE HEIGHTS ADD
Block
015
Lot
000
|
|||
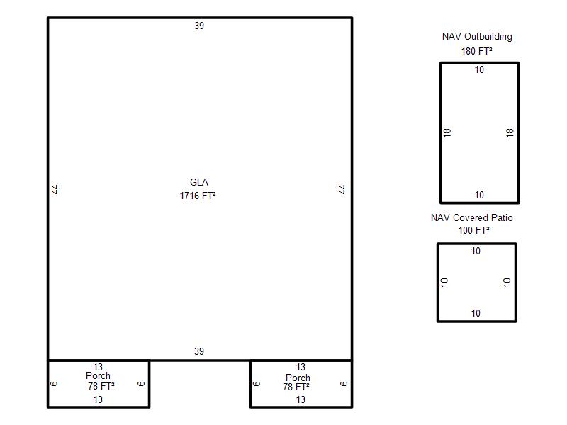
| Full Legal Description: MOORE HEIGHTS ADD 015 000 N70FT LOTS 1 THRU 4 |
| Photo & Sketch (if available) | Comp Sales (ordered by relevancy) |
|
||||||||||||||||||
|
||||||||||||||||||||
| Value History (*The County Treasurer 405-713-1300 posts & collects actual tax amounts. Contact information HERE) | |||||||||||||
|---|---|---|---|---|---|---|---|---|---|---|---|---|---|
| Year | Market Value | Taxable Mkt Value | Gross Assessed | Exemption | Net Assessed | Millage | Est. Tax | Tax Savings | |||||
|
2025 |
171,500 |
84,000 |
9,240 |
0 |
9,240 |
119.02 |
$1,100 |
$1,146 |
|||||
|
2024 |
80,000 |
80,000 |
8,800 |
0 |
8,800 |
119.70 |
$1,053 |
$0 |
|||||
|
2023 |
80,500 |
80,500 |
8,855 |
0 |
8,855 |
118.33 |
$1,048 |
$0 |
|||||
|
2022 |
80,500 |
80,500 |
8,855 |
0 |
8,855 |
112.69 |
$998 |
$0 |
|||||
|
2021 |
81,500 |
81,500 |
8,965 |
0 |
8,965 |
112.29 |
$1,007 |
$0 |
|||||
| Property Account Status/Adjustments/Exemptions | ||
|---|---|---|
| Account # | Exemption Description | Amount |
|
R074423900 |
5% Capped Account |
0 |
| Property Deed Transaction History (Recorded in the County Clerk's Office) | ||||||||||
|---|---|---|---|---|---|---|---|---|---|---|
| Date | Type | Book | Page | Price | Grantor | Grantee | ||||
|
7/21/2015 |
|
Hmstd Off & |
$0 |
HOWARD GEORGE & CRYSTAL |
HOWARD GEORGE |
|||||
|
5/19/2015 |
|
Deeds |
$0 |
HOWARD CRYSTAL |
HOWARD GEORGE |
|||||
|
11/22/2011 |
|
Deeds |
$42,500 |
MORRIS LEONARD A JR |
HOWARD GEORGE W |
|||||
|
7/5/1988 |
|
Historical |
$30,101 |
SECRETARY OF HOUSING |
MORRIS LEONARD A JR |
|||||
|
11/24/1987 |
|
Historical |
$0 |
KING GEORGE W JR & PATRICIA L |
SECRETARY OF HOUSING |
|||||
| Last Mailed Notice of Value (N.O.V.) Information/History | ||||||||
|---|---|---|---|---|---|---|---|---|
| Year | Date | Market Value | Taxable Market Value | Gross Assessed | Exemption | Net Assessed | ||
|
2026 |
02/06/2026 |
177,500 |
88,200 |
9,702 |
0 |
9,702 |
||
|
2025 |
01/31/2025 |
171,500 |
84,000 |
9,240 |
0 |
9,240 |
||
|
2020 |
02/21/2020 |
82,500 |
82,500 |
9,075 |
0 |
9,075 |
||
|
2019 |
02/26/2019 |
83,000 |
79,275 |
8,720 |
0 |
8,720 |
||
|
2018 |
04/09/2018 |
75,500 |
75,500 |
8,305 |
0 |
8,305 |
||
| Property Building Permit History | |||||||||||
|---|---|---|---|---|---|---|---|---|---|---|---|
| Issued | Permit # | Provided by | Bldg # | Description | Est Construction Cost | Status | |||||
| No Building Permit records returned. | |||||||||||
| Click button on building number to access detailed information: | ||||||
|---|---|---|---|---|---|---|
| Bldg # | Vacant/Improved Land | Bldg Description | Year Built | SqFt | # Stories | |
|
1 |
Improved |
Duplex One Story |
1985 |
1,716 |
1 Stories |
|