|
|
|
| Larry Stein Oklahoma County Assessor (405) 713-1200 - Public Access System |
|
|
|
|
|
|
| Real Property Display - Screen Produced 3/16/2026 8:39:37 PM | ||||
|---|---|---|---|---|
| Account: R074424045 | Type: Residential | Location: |
2237 SW 48TH ST |
|
| Building Name/Occupant: |
|
OKLAHOMA CITY |
||
| Owner Name 1: | VELASCO ROMO CESAR |
Parcel PIN#: |
1673-07-442-4045 |
|
| Owner Name 2: | MARIN MURILLO MARIA G | 1/4 section #: |
1673 |
|
| Owner Name 3: | Parent Acct: |
|
||
| Billing Address: | 2237 SW 48TH ST | Tax District: |
|
|
| City, State, Zip | OKLAHOMA CITY, OK 73119 | School System: |
Oklahoma City #89 |
|
|
Country: (If noted) |
Land Size: |
0.1928 Acres |
||
|
Land Value: 18,900 |
|
|||
|
Sect 19-T11N-R3W Qtr NE |
MOORE HEIGHTS ADD
Block
015
Lot
000
|
|||
| Full Legal Description: MOORE HEIGHTS ADD 015 000 E5FT LOT 29 & ALL LOTS 30 & 31 & W5FT LOT 32 |
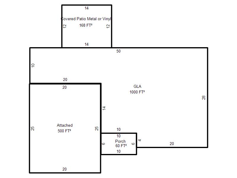
| Photo & Sketch (if available) | Comp Sales (ordered by relevancy) |
|
||||||||||||||||||
|
||||||||||||||||||||
| Value History (*The County Treasurer 405-713-1300 posts & collects actual tax amounts. Contact information HERE) | |||||||||||||
|---|---|---|---|---|---|---|---|---|---|---|---|---|---|
| Year | Market Value | Taxable Mkt Value | Gross Assessed | Exemption | Net Assessed | Millage | Est. Tax | Tax Savings | |||||
|
2025 |
129,000 |
84,931 |
9,342 |
1,000 |
8,342 |
119.02 |
$993 |
$696 |
|||||
|
2024 |
121,000 |
82,458 |
9,070 |
1,000 |
8,070 |
119.70 |
$966 |
$627 |
|||||
|
2023 |
110,000 |
80,057 |
8,805 |
1,000 |
7,805 |
118.33 |
$924 |
$508 |
|||||
|
2022 |
95,500 |
77,726 |
8,549 |
0 |
8,549 |
112.69 |
$963 |
$220 |
|||||
|
2021 |
79,500 |
74,025 |
8,142 |
0 |
8,142 |
112.29 |
$914 |
$68 |
|||||
| Property Account Status/Adjustments/Exemptions | ||
|---|---|---|
| Account # | Exemption Description | Amount |
|
R074424045 |
Homestead |
1,000 |
|
R074424045 |
3% Cap Homestead |
0 |
| Property Deed Transaction History (Recorded in the County Clerk's Office) | ||||||||||
|---|---|---|---|---|---|---|---|---|---|---|
| Date | Type | Book | Page | Price | Grantor | Grantee | ||||
|
4/15/2019 |
|
Hmstd Off & |
$0 |
VELAZCO LUZ A MANCERA & DANIEL |
VELASCO ROMO CESAR |
|||||
|
6/24/2003 |
|
Deeds |
$62,000 |
DOTSON STEVE L |
VELAZCO LUZ A MANCERA & DANIEL |
|||||
|
11/19/1999 |
|
Deeds |
$50,000 |
MARNELL GENEVA L MARNELL JOHN D |
DOTSON STEVE L |
|||||
|
5/27/1998 |
|
Historical |
$43,500 |
ELKINS STEVEN DALE |
MARNELL GENEVA L |
|||||
|
6/21/1994 |
|
Historical |
$33,333 |
SECRETARY OF HOUSING |
ELKINS STEVEN DALE |
|||||
| Last Mailed Notice of Value (N.O.V.) Information/History | ||||||||
|---|---|---|---|---|---|---|---|---|
| Year | Date | Market Value | Taxable Market Value | Gross Assessed | Exemption | Net Assessed | ||
|
2026 |
02/06/2026 |
131,000 |
87,478 |
9,622 |
1,000 |
8,622 |
||
|
2025 |
01/31/2025 |
129,000 |
84,931 |
9,342 |
1,000 |
8,342 |
||
|
2024 |
01/22/2024 |
121,000 |
82,458 |
9,070 |
1,000 |
8,070 |
||
|
2023 |
01/23/2023 |
110,000 |
80,057 |
8,805 |
1,000 |
7,805 |
||
|
2022 |
02/22/2022 |
95,500 |
77,726 |
8,549 |
0 |
8,549 |
||
| Property Building Permit History | ||||||
|---|---|---|---|---|---|---|
| Issued | Permit # | Provided by | Bldg # | Description | Est Construction Cost | Status |
|
12/9/1997 |
10196327 |
OKLAHOMA CITY |
1 |
Fire Remodel |
1,000 |
Inactive |
|
12/5/1997 |
10196328 |
OKLAHOMA CITY |
1 |
Burn - Trip |
1,500 |
Inactive |
| Click button on building number to access detailed information: | ||||||
|---|---|---|---|---|---|---|
| Bldg # | Vacant/Improved Land | Bldg Description | Year Built | SqFt | # Stories | |
|
1 |
Improved |
Ranch 1 Story |
1963 |
1,000 |
1 Stories |
|