|
|
|
| Larry Stein Oklahoma County Assessor (405) 713-1200 - Public Access System |
|
|
|
|
|
|
| Real Property Display - Screen Produced 3/16/2026 8:36:03 PM | ||||
|---|---|---|---|---|
| Account: R074424100 | Type: Residential | Location: |
2205 SW 48TH ST |
|
| Building Name/Occupant: |
|
OKLAHOMA CITY |
||
| Owner Name 1: | PRESTIGE DEVELOPMENT LLC |
Parcel PIN#: |
1673-07-442-4100 |
|
| Owner Name 2: | 1/4 section #: |
1673 |
||
| Owner Name 3: | Parent Acct: |
|
||
| Billing Address: | 633 SW 159TH TER | Tax District: |
|
|
| City, State, Zip | OKLAHOMA CITY, OK 73170 | School System: |
Oklahoma City #89 |
|
|
Country: (If noted) |
Land Size: |
0.2410 Acres |
||
|
Land Value: 23,625 |
|
|||
|
Sect 19-T11N-R3W Qtr NE |
MOORE HEIGHTS ADD
Block
015
Lot
000
|
|||
| Full Legal Description: MOORE HEIGHTS ADD 015 000 LOTS 46 THRU 48 |
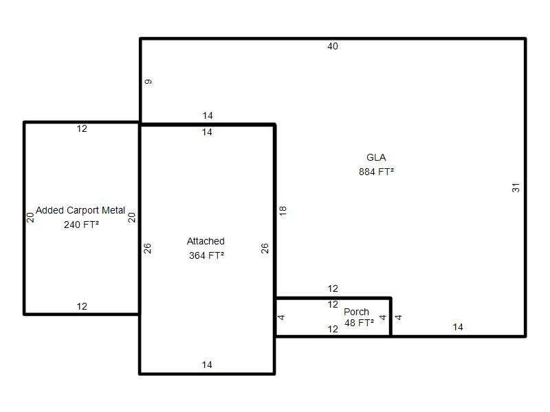
| Photo & Sketch (if available) | Comp Sales (ordered by relevancy) |
|
||||||||||||||||||
|
||||||||||||||||||||
| Value History (*The County Treasurer 405-713-1300 posts & collects actual tax amounts. Contact information HERE) | |||||||||||||
|---|---|---|---|---|---|---|---|---|---|---|---|---|---|
| Year | Market Value | Taxable Mkt Value | Gross Assessed | Exemption | Net Assessed | Millage | Est. Tax | Tax Savings | |||||
|
2025 |
121,000 |
121,000 |
13,310 |
0 |
13,310 |
119.02 |
$1,584 |
$0 |
|||||
|
2024 |
113,000 |
72,835 |
8,011 |
1,000 |
7,011 |
119.70 |
$839 |
$649 |
|||||
|
2023 |
101,500 |
70,714 |
7,778 |
1,000 |
6,778 |
118.33 |
$802 |
$519 |
|||||
|
2022 |
89,000 |
68,655 |
7,551 |
1,000 |
6,551 |
112.69 |
$738 |
$365 |
|||||
|
2021 |
74,000 |
66,656 |
7,331 |
1,000 |
6,331 |
112.29 |
$711 |
$203 |
|||||
| Property Account Status/Adjustments/Exemptions | ||
|---|---|---|
| Account # | Exemption Description | Amount |
|
R074424100 |
5% Capped Account |
0 |
| Property Deed Transaction History (Recorded in the County Clerk's Office) | ||||||||||
|---|---|---|---|---|---|---|---|---|---|---|
| Date | Type | Book | Page | Price | Grantor | Grantee | ||||
|
10/2/2024 |
|
Deeds |
$110,000 |
HAWKS JOSEPHINE |
TOP INVESTMENTS LLC |
|||||
|
10/2/2024 |
|
Deeds |
$115,000 |
TOP INVESTMENTS LLC |
PRESTIGE DEVELOPMENT LLC |
|||||
|
9/30/2009 |
|
Deeds |
$65,000 |
GABEL TIMOTHY GLENN |
HAWKS JOSEPHINE |
|||||
|
12/4/1999 |
|
Deeds |
$38,000 |
GABEL JOHN MICHAEL |
GABEL TIMOTHY GLENN |
|||||
|
6/18/1992 |
|
Historical |
$23,000 |
LOMAS MORTGAGE USA INC |
GABEL JOHN MICHAEL |
|||||
| Last Mailed Notice of Value (N.O.V.) Information/History | ||||||||
|---|---|---|---|---|---|---|---|---|
| Year | Date | Market Value | Taxable Market Value | Gross Assessed | Exemption | Net Assessed | ||
|
2026 |
02/06/2026 |
122,000 |
122,000 |
13,420 |
0 |
13,420 |
||
|
2025 |
01/31/2025 |
121,000 |
121,000 |
13,310 |
0 |
13,310 |
||
|
2024 |
01/22/2024 |
113,000 |
72,835 |
8,011 |
1,000 |
7,011 |
||
|
2023 |
01/23/2023 |
101,500 |
70,714 |
7,778 |
1,000 |
6,778 |
||
|
2022 |
02/22/2022 |
89,000 |
68,655 |
7,550 |
1,000 |
6,550 |
||
| Property Building Permit History | |||||||||||
|---|---|---|---|---|---|---|---|---|---|---|---|
| Issued | Permit # | Provided by | Bldg # | Description | Est Construction Cost | Status | |||||
| No Building Permit records returned. | |||||||||||
| Click button on building number to access detailed information: | ||||||
|---|---|---|---|---|---|---|
| Bldg # | Vacant/Improved Land | Bldg Description | Year Built | SqFt | # Stories | |
|
1 |
Improved |
Ranch 1 Story |
1962 |
884 |
1 Stories |
|