|
|
|
| Larry Stein Oklahoma County Assessor (405) 713-1200 - Public Access System |
|
|
|
|
|
|
| Real Property Display - Screen Produced 3/14/2026 7:22:39 AM | ||||
|---|---|---|---|---|
| Account: R155402356 | Type: Residential | Location: |
10720 BELLVIEW DR |
|
| Building Name/Occupant: |
|
MIDWEST CITY |
||
| Owner Name 1: | BIGGERSTAFF JOHN A |
Parcel PIN#: |
1221-15-540-2356 |
|
| Owner Name 2: | 1/4 section #: |
1221 |
||
| Owner Name 3: | Parent Acct: |
|
||
| Billing Address: | 10720 BELLVIEW DR | Tax District: |
|
|
| City, State, Zip | MIDWEST CITY, OK 73130-5106 | School System: |
Choctaw #4 |
|
|
Country: (If noted) |
Land Size: |
0.4339 Acres |
||
|
Land Value: 40,635 |
|
|||
|
Sect 6-T11N-R1W Qtr NE |
POINTON CITY 2ND ADD
Block
010
Lot
000
|
|||
| Full Legal Description: POINTON CITY 2ND ADD 010 000 LOT 12 & E40FT LOT 13 |
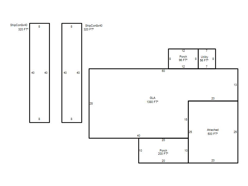
| Photo & Sketch (if available) | Comp Sales (ordered by relevancy) |
|
||||||||||||||||||
|
||||||||||||||||||||
| Value History (*The County Treasurer 405-713-1300 posts & collects actual tax amounts. Contact information HERE) | |||||||||||||
|---|---|---|---|---|---|---|---|---|---|---|---|---|---|
| Year | Market Value | Taxable Mkt Value | Gross Assessed | Exemption | Net Assessed | Millage | Est. Tax | Tax Savings | |||||
|
2025 |
194,000 |
153,153 |
16,846 |
0 |
16,846 |
127.03 |
$2,140 |
$571 |
|||||
|
2024 |
176,500 |
145,860 |
16,044 |
0 |
16,044 |
127.00 |
$2,038 |
$428 |
|||||
|
2023 |
168,500 |
138,915 |
15,280 |
0 |
15,280 |
128.50 |
$1,964 |
$418 |
|||||
|
2022 |
154,000 |
132,300 |
14,553 |
0 |
14,553 |
127.22 |
$1,851 |
$304 |
|||||
|
2021 |
132,500 |
126,000 |
13,860 |
0 |
13,860 |
126.69 |
$1,756 |
$91 |
|||||
| Property Account Status/Adjustments/Exemptions | ||
|---|---|---|
| Account # | Exemption Description | Amount |
|
R155402356 |
5% Capped Account |
0 |
| Property Deed Transaction History (Recorded in the County Clerk's Office) | ||||||||||
|---|---|---|---|---|---|---|---|---|---|---|
| Date | Type | Book | Page | Price | Grantor | Grantee | ||||
|
5/29/2014 |
|
Deeds |
$118,000 |
MARTIN MARY E |
BIGGERSTAFF JOHN A |
|||||
|
6/22/2010 |
|
Deeds |
$103,000 |
DEQUASIE GREG |
MARTIN MARY E |
|||||
|
2/16/2010 |
|
Hmstd Off & |
$0 |
LAD DEQUASIE PROPERTIES LLC |
DEQUASIE GREG |
|||||
|
11/4/2009 |
|
Deeds |
$34,500 |
WELCH MARY J TRS WELCH MARY J REV TRUST |
LAD DEQUASIE PROPERTIES LLC |
|||||
|
11/13/2001 |
|
Deeds |
$0 |
WELCH MARY J |
WELCH MARY J TRS WELCH MARY J REV TRUST |
|||||
| Last Mailed Notice of Value (N.O.V.) Information/History | ||||||||
|---|---|---|---|---|---|---|---|---|
| Year | Date | Market Value | Taxable Market Value | Gross Assessed | Exemption | Net Assessed | ||
|
2026 |
02/06/2026 |
194,000 |
160,810 |
17,688 |
0 |
17,688 |
||
|
2025 |
01/31/2025 |
194,000 |
153,153 |
16,846 |
0 |
16,846 |
||
|
2024 |
01/22/2024 |
176,500 |
145,860 |
16,044 |
0 |
16,044 |
||
|
2023 |
01/23/2023 |
168,500 |
138,915 |
15,280 |
0 |
15,280 |
||
|
2022 |
02/22/2022 |
154,000 |
132,300 |
14,553 |
0 |
14,553 |
||
| Property Building Permit History | ||||||
|---|---|---|---|---|---|---|
| Issued | Permit # | Provided by | Bldg # | Description | Est Construction Cost | Status |
|
7/2/2004 |
10294514 |
MIDWEST CITY |
1 |
Remodeled |
1,000 |
Inactive |
| Click button on building number to access detailed information: | ||||||
|---|---|---|---|---|---|---|
| Bldg # | Vacant/Improved Land | Bldg Description | Year Built | SqFt | # Stories | |
|
1 |
Improved |
Ranch 1 Story |
1962 |
1,380 |
1 Stories |
|