|
|
|
| Larry Stein Oklahoma County Assessor (405) 713-1200 - Public Access System |
|
|
|
|
|
|
| Real Property Display - Screen Produced 3/16/2026 8:42:31 PM | ||||
|---|---|---|---|---|
| Account: R074425650 | Type: Residential | Location: |
2337 SW 49TH ST |
|
| Building Name/Occupant: |
|
OKLAHOMA CITY |
||
| Owner Name 1: | CLAM LAKE LLC |
Parcel PIN#: |
1673-07-442-5650 |
|
| Owner Name 2: | 1/4 section #: |
1673 |
||
| Owner Name 3: | Parent Acct: |
|
||
| Billing Address: | PO BOX 1451 | Tax District: |
|
|
| City, State, Zip | BETHANY, OK 73008 | School System: |
Oklahoma City #89 |
|
|
Country: (If noted) |
Land Size: |
0.1607 Acres |
||
|
Land Value: 15,750 |
|
|||
|
Sect 19-T11N-R3W Qtr NE |
MOORE HEIGHTS ADD
Block
019
Lot
000
|
|||
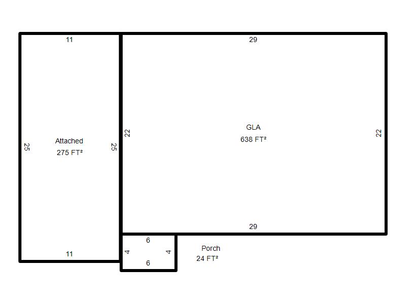
| Full Legal Description: MOORE HEIGHTS ADD 019 000 LOTS 29 & 30 |
| Photo & Sketch (if available) | Comp Sales (ordered by relevancy) |
|
||||||||||||||||||
|
||||||||||||||||||||
| Value History (*The County Treasurer 405-713-1300 posts & collects actual tax amounts. Contact information HERE) | |||||||||||||
|---|---|---|---|---|---|---|---|---|---|---|---|---|---|
| Year | Market Value | Taxable Mkt Value | Gross Assessed | Exemption | Net Assessed | Millage | Est. Tax | Tax Savings | |||||
|
2025 |
75,000 |
75,000 |
8,250 |
0 |
8,250 |
119.02 |
$982 |
$0 |
|||||
|
2024 |
70,000 |
51,051 |
5,615 |
0 |
5,615 |
119.70 |
$672 |
$250 |
|||||
|
2023 |
63,000 |
48,620 |
5,347 |
0 |
5,347 |
118.33 |
$633 |
$187 |
|||||
|
2022 |
56,500 |
46,305 |
5,093 |
0 |
5,093 |
112.69 |
$574 |
$126 |
|||||
|
2021 |
46,000 |
44,100 |
4,851 |
0 |
4,851 |
112.29 |
$545 |
$23 |
|||||
| Property Account Status/Adjustments/Exemptions | ||
|---|---|---|
| Account # | Exemption Description | Amount |
|
R074425650 |
5% Capped Account |
0 |
| Property Deed Transaction History (Recorded in the County Clerk's Office) | |||||||
|---|---|---|---|---|---|---|---|
| Date | Type | Book | Page | Price | Grantor | Grantee | |
|
2/2/2024 |
|
Hmstd Off & |
$0 |
HARRINGTON L O TRS |
KRAFT DEBRA ANN SUCC TRS |
||
|
2/2/2024 |
|
Mult Parcel |
$115,000 |
HARRINGTON L O TRUST |
CLAM LAKE LLC |
||
|
3/27/2021 |
|
Hmstd Off & |
$ |
D S & M INC |
L O HARRINGTON TRUST |
||
|
7/1/1975 |
|
Historical |
$0 |
|
D S & M INC |
||
| Last Mailed Notice of Value (N.O.V.) Information/History | ||||||||
|---|---|---|---|---|---|---|---|---|
| Year | Date | Market Value | Taxable Market Value | Gross Assessed | Exemption | Net Assessed | ||
|
2026 |
02/06/2026 |
77,000 |
77,000 |
8,470 |
0 |
8,470 |
||
|
2025 |
01/31/2025 |
75,000 |
75,000 |
8,250 |
0 |
8,250 |
||
|
2024 |
01/22/2024 |
70,000 |
51,051 |
5,615 |
0 |
5,615 |
||
|
2024 |
03/01/2024 |
70,000 |
51,051 |
5,615 |
0 |
5,615 |
||
|
2023 |
01/23/2023 |
63,000 |
48,620 |
5,347 |
0 |
5,347 |
||
| Property Building Permit History | |||||||||||
|---|---|---|---|---|---|---|---|---|---|---|---|
| Issued | Permit # | Provided by | Bldg # | Description | Est Construction Cost | Status | |||||
| No Building Permit records returned. | |||||||||||
| Click button on building number to access detailed information: | ||||||
|---|---|---|---|---|---|---|
| Bldg # | Vacant/Improved Land | Bldg Description | Year Built | SqFt | # Stories | |
|
1 |
Improved |
Ranch 1 Story |
1955 |
638 |
1 Stories |
|