|
|
|
| Larry Stein Oklahoma County Assessor (405) 713-1200 - Public Access System |
|
|
|
|
|
|
| Real Property Display - Screen Produced 3/16/2026 8:41:15 PM | ||||
|---|---|---|---|---|
| Account: R074426193 | Type: Residential | Location: |
2415 SW 49TH ST |
|
| Building Name/Occupant: |
|
OKLAHOMA CITY |
||
| Owner Name 1: | CERVANTES EZEQUIEL & SOLEDAD |
Parcel PIN#: |
1673-07-442-6193 |
|
| Owner Name 2: | 1/4 section #: |
1673 |
||
| Owner Name 3: | Parent Acct: |
|
||
| Billing Address: | 1109 SW 52ND ST | Tax District: |
|
|
| City, State, Zip | OKLAHOMA CITY, OK 73109 | School System: |
Oklahoma City #89 |
|
|
Country: (If noted) |
Land Size: |
0.1607 Acres |
||
|
Land Value: 15,750 |
|
|||
|
Sect 19-T11N-R3W Qtr NE |
MOORE HEIGHTS ADD
Block
020
Lot
000
|
|||
| Full Legal Description: MOORE HEIGHTS ADD 020 000 LOTS 41 & 42 |
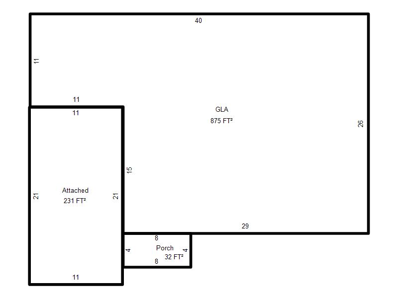
| Photo & Sketch (if available) | Comp Sales (ordered by relevancy) |
|
||||||||||||||||||
|
||||||||||||||||||||
| Value History (*The County Treasurer 405-713-1300 posts & collects actual tax amounts. Contact information HERE) | |||||||||||||
|---|---|---|---|---|---|---|---|---|---|---|---|---|---|
| Year | Market Value | Taxable Mkt Value | Gross Assessed | Exemption | Net Assessed | Millage | Est. Tax | Tax Savings | |||||
|
2025 |
90,000 |
78,718 |
8,658 |
0 |
8,658 |
119.02 |
$1,031 |
$148 |
|||||
|
2024 |
84,000 |
74,970 |
8,246 |
0 |
8,246 |
119.70 |
$987 |
$119 |
|||||
|
2023 |
77,000 |
71,400 |
7,854 |
0 |
7,854 |
118.33 |
$929 |
$73 |
|||||
|
2022 |
68,000 |
68,000 |
7,480 |
0 |
7,480 |
112.69 |
$843 |
$0 |
|||||
|
2021 |
56,000 |
54,075 |
5,948 |
0 |
5,948 |
112.29 |
$668 |
$24 |
|||||
| Property Account Status/Adjustments/Exemptions | ||
|---|---|---|
| Account # | Exemption Description | Amount |
|
R074426193 |
5% Capped Account |
0 |
| Property Deed Transaction History (Recorded in the County Clerk's Office) | ||||||||||
|---|---|---|---|---|---|---|---|---|---|---|
| Date | Type | Book | Page | Price | Grantor | Grantee | ||||
|
10/27/2021 |
|
Deeds |
$30,000 |
CONNER CHARLES & LINDA D |
CERVANTES EZEQUIEL & SOLEDAD |
|||||
|
1/10/1995 |
|
Historical |
$0 |
CONNER C B |
CONNER CHARLES & LINDA D |
|||||
|
7/22/1994 |
|
Historical |
$20,000 |
FARRIS MIKE |
CONNER C B |
|||||
|
10/22/1991 |
|
Historical |
$0 |
HENSLEY JIMMIE LEE GDN |
FARRIS MIKE |
|||||
|
4/10/1991 |
|
Historical |
$0 |
HENSLEY BRAD & PEARL |
HENSLEY JIMMIE LEE GDN |
|||||
| Last Mailed Notice of Value (N.O.V.) Information/History | ||||||||
|---|---|---|---|---|---|---|---|---|
| Year | Date | Market Value | Taxable Market Value | Gross Assessed | Exemption | Net Assessed | ||
|
2026 |
02/06/2026 |
91,000 |
82,653 |
9,090 |
0 |
9,090 |
||
|
2025 |
01/31/2025 |
90,000 |
78,718 |
8,658 |
0 |
8,658 |
||
|
2024 |
01/22/2024 |
84,000 |
74,970 |
8,246 |
0 |
8,246 |
||
|
2023 |
01/23/2023 |
77,000 |
71,400 |
7,854 |
0 |
7,854 |
||
|
2022 |
02/22/2022 |
68,000 |
68,000 |
7,480 |
0 |
7,480 |
||
| Property Building Permit History | |||||||||||
|---|---|---|---|---|---|---|---|---|---|---|---|
| Issued | Permit # | Provided by | Bldg # | Description | Est Construction Cost | Status | |||||
| No Building Permit records returned. | |||||||||||
| Click button on building number to access detailed information: | ||||||
|---|---|---|---|---|---|---|
| Bldg # | Vacant/Improved Land | Bldg Description | Year Built | SqFt | # Stories | |
|
1 |
Improved |
Ranch 1 Story |
1957 |
875 |
1 Stories |
|