|
|
|
| Larry Stein Oklahoma County Assessor (405) 713-1200 - Public Access System |
|
|
|
|
|
|
| Real Property Display - Screen Produced 3/16/2026 8:42:31 PM | ||||
|---|---|---|---|---|
| Account: R074426750 | Type: Residential | Location: |
2341 SW 50TH ST |
|
| Building Name/Occupant: |
|
OKLAHOMA CITY |
||
| Owner Name 1: | RUIZ RODOLFO LOPEZ |
Parcel PIN#: |
1673-07-442-6750 |
|
| Owner Name 2: | MARTINEZ JUANA MARCELA VELASCO | 1/4 section #: |
1673 |
|
| Owner Name 3: | Parent Acct: |
|
||
| Billing Address: | 2341 SW 50TH ST | Tax District: |
|
|
| City, State, Zip | OKLAHOMA CITY, OK 73119-4824 | School System: |
Oklahoma City #89 |
|
|
Country: (If noted) |
Land Size: |
0.2009 Acres |
||
|
Land Value: 19,688 |
|
|||
|
Sect 19-T11N-R3W Qtr NE |
MOORE HEIGHTS ADD
Block
022
Lot
000
|
|||
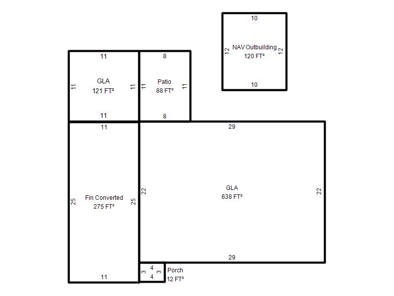
| Full Legal Description: MOORE HEIGHTS ADD 022 000 LOTS 27 & 28 & W 1/2 OF LT 29 |
| Photo & Sketch (if available) | Comp Sales (ordered by relevancy) |
|
||||||||||||||||||
|
||||||||||||||||||||
| Value History (*The County Treasurer 405-713-1300 posts & collects actual tax amounts. Contact information HERE) | |||||||||||||
|---|---|---|---|---|---|---|---|---|---|---|---|---|---|
| Year | Market Value | Taxable Mkt Value | Gross Assessed | Exemption | Net Assessed | Millage | Est. Tax | Tax Savings | |||||
|
2025 |
142,500 |
91,727 |
10,089 |
1,000 |
9,089 |
119.02 |
$1,082 |
$784 |
|||||
|
2024 |
132,500 |
89,056 |
9,795 |
1,000 |
8,795 |
119.70 |
$1,053 |
$692 |
|||||
|
2023 |
116,000 |
86,463 |
9,509 |
1,000 |
8,509 |
118.33 |
$1,007 |
$503 |
|||||
|
2022 |
102,500 |
83,945 |
9,233 |
1,000 |
8,233 |
112.69 |
$928 |
$343 |
|||||
|
2021 |
81,500 |
81,500 |
8,965 |
1,000 |
7,965 |
112.29 |
$894 |
$112 |
|||||
| Property Account Status/Adjustments/Exemptions | ||
|---|---|---|
| Account # | Exemption Description | Amount |
|
R074426750 |
3% Cap Homestead |
0 |
|
R074426750 |
Homestead |
1,000 |
| Property Deed Transaction History (Recorded in the County Clerk's Office) | ||||||||||
|---|---|---|---|---|---|---|---|---|---|---|
| Date | Type | Book | Page | Price | Grantor | Grantee | ||||
|
2/19/2026 |
|
Deeds |
$124,000 |
HOLLIE APRIL |
RUIZ RODOLFO LOPEZ |
|||||
|
1/2/2020 |
|
Deeds |
$85,000 |
OWENS JUSTIN K & BRENDA K |
HOLLIE APRIL |
|||||
|
8/26/2008 |
|
Hmstd Off & |
$0 |
OWENS INVESTMENTS LLC |
OWENS JUSTIN K & BRENDA K |
|||||
|
6/9/2008 |
|
Other |
$0 |
FEDERAL NATIONAL MTG ASSOCIATION |
OWENS INVESTMENTS LLC |
|||||
|
2/19/2008 |
|
Hmstd Off & |
$0 |
MUNOZ FLAVIO |
FEDERAL NATIONAL MTG ASSOCIATION |
|||||
| Last Mailed Notice of Value (N.O.V.) Information/History | ||||||||
|---|---|---|---|---|---|---|---|---|
| Year | Date | Market Value | Taxable Market Value | Gross Assessed | Exemption | Net Assessed | ||
|
2026 |
02/06/2026 |
142,500 |
94,478 |
10,391 |
1,000 |
9,391 |
||
|
2025 |
01/31/2025 |
142,500 |
91,727 |
10,089 |
1,000 |
9,089 |
||
|
2024 |
01/22/2024 |
132,500 |
89,056 |
9,795 |
1,000 |
8,795 |
||
|
2023 |
01/23/2023 |
116,000 |
86,463 |
9,509 |
1,000 |
8,509 |
||
|
2022 |
02/22/2022 |
102,500 |
83,945 |
9,233 |
1,000 |
8,233 |
||
| Property Building Permit History | |||||||||||
|---|---|---|---|---|---|---|---|---|---|---|---|
| Issued | Permit # | Provided by | Bldg # | Description | Est Construction Cost | Status | |||||
| No Building Permit records returned. | |||||||||||
| Click button on building number to access detailed information: | ||||||
|---|---|---|---|---|---|---|
| Bldg # | Vacant/Improved Land | Bldg Description | Year Built | SqFt | # Stories | |
|
1 |
Improved |
Ranch 1 Story |
1955 |
759 |
1 Stories |
|