|
|
|
| Larry Stein Oklahoma County Assessor (405) 713-1200 - Public Access System |
|
|
|
|
|
|
| Real Property Display - Screen Produced 3/16/2026 8:37:36 PM | ||||
|---|---|---|---|---|
| Account: R074428193 | Type: Residential | Location: |
2140 SW 50TH ST |
|
| Building Name/Occupant: |
|
OKLAHOMA CITY |
||
| Owner Name 1: | QUIROZ JUAN & ALMA |
Parcel PIN#: |
1673-07-442-8193 |
|
| Owner Name 2: | 1/4 section #: |
1673 |
||
| Owner Name 3: | Parent Acct: |
|
||
| Billing Address: | 2610 SW 57TH PL | Tax District: |
|
|
| City, State, Zip | OKLAHOMA CITY, OK 73119-5827 | School System: |
Oklahoma City #89 |
|
|
Country: (If noted) |
Land Size: |
0.1607 Acres |
||
|
Land Value: 15,750 |
|
|||
|
Sect 19-T11N-R3W Qtr NE |
MOORE HEIGHTS ADD
Block
025
Lot
000
|
|||
| Full Legal Description: MOORE HEIGHTS ADD 025 000 LOTS 21 & 22 |
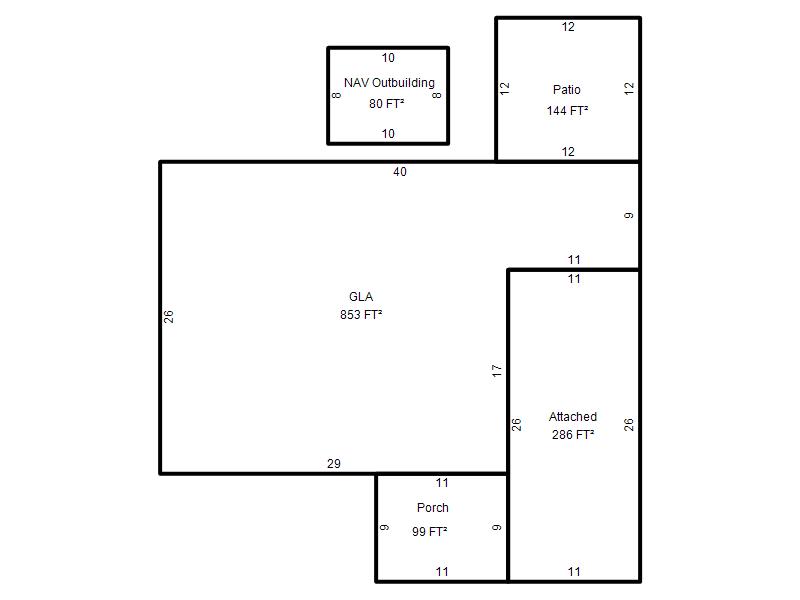
| Photo & Sketch (if available) | Comp Sales (ordered by relevancy) |
|
||||||||||||||||||
|
||||||||||||||||||||
| Value History (*The County Treasurer 405-713-1300 posts & collects actual tax amounts. Contact information HERE) | |||||||||||||
|---|---|---|---|---|---|---|---|---|---|---|---|---|---|
| Year | Market Value | Taxable Mkt Value | Gross Assessed | Exemption | Net Assessed | Millage | Est. Tax | Tax Savings | |||||
|
2025 |
91,500 |
65,725 |
7,229 |
0 |
7,229 |
119.02 |
$860 |
$337 |
|||||
|
2024 |
86,000 |
62,596 |
6,884 |
0 |
6,884 |
119.70 |
$824 |
$308 |
|||||
|
2023 |
78,000 |
59,616 |
6,557 |
0 |
6,557 |
118.33 |
$776 |
$239 |
|||||
|
2022 |
68,500 |
56,778 |
6,245 |
0 |
6,245 |
112.69 |
$704 |
$145 |
|||||
|
2021 |
56,000 |
54,075 |
5,948 |
0 |
5,948 |
112.29 |
$668 |
$24 |
|||||
| Property Account Status/Adjustments/Exemptions | ||
|---|---|---|
| Account # | Exemption Description | Amount |
|
R074428193 |
5% Capped Account |
0 |
| Property Deed Transaction History (Recorded in the County Clerk's Office) | |||||||
|---|---|---|---|---|---|---|---|
| Date | Type | Book | Page | Price | Grantor | Grantee | |
|
4/8/2005 |
|
Hmstd Off & |
$0 |
QUIROZ ENRIQUE |
QUIROZ JUAN & ALMA |
||
|
3/5/2001 |
|
Deeds |
$53,000 |
SOUTH CENTRAL PROPERTIES INC |
QUIROZ ENRIQUE |
||
|
9/13/2000 |
|
Deeds |
$25,000 |
SNOW BOBBY G & RHONDA S |
SOUTH CENTRAL PROPERTIES INC |
||
|
9/1/1975 |
|
Historical |
$0 |
|
SNOW BOBBY G & RHONDA S |
||
| Last Mailed Notice of Value (N.O.V.) Information/History | ||||||||
|---|---|---|---|---|---|---|---|---|
| Year | Date | Market Value | Taxable Market Value | Gross Assessed | Exemption | Net Assessed | ||
|
2026 |
02/06/2026 |
90,500 |
69,011 |
7,590 |
0 |
7,590 |
||
|
2025 |
01/31/2025 |
91,500 |
65,725 |
7,229 |
0 |
7,229 |
||
|
2024 |
01/22/2024 |
86,000 |
62,596 |
6,884 |
0 |
6,884 |
||
|
2023 |
01/23/2023 |
78,000 |
59,616 |
6,557 |
0 |
6,557 |
||
|
2022 |
02/22/2022 |
68,500 |
56,778 |
6,245 |
0 |
6,245 |
||
| Property Building Permit History | |||||||||||
|---|---|---|---|---|---|---|---|---|---|---|---|
| Issued | Permit # | Provided by | Bldg # | Description | Est Construction Cost | Status | |||||
| No Building Permit records returned. | |||||||||||
| Click button on building number to access detailed information: | ||||||
|---|---|---|---|---|---|---|
| Bldg # | Vacant/Improved Land | Bldg Description | Year Built | SqFt | # Stories | |
|
1 |
Improved |
Ranch 1 Story |
1956 |
853 |
1 Stories |
|