|
|
|
| Larry Stein Oklahoma County Assessor (405) 713-1200 - Public Access System |
|
|
|
|
|
|
| Real Property Display - Screen Produced 3/16/2026 8:42:32 PM | ||||
|---|---|---|---|---|
| Account: R074428475 | Type: Residential | Location: |
5120 S YOUNGS BLVD |
|
| Building Name/Occupant: |
|
OKLAHOMA CITY |
||
| Owner Name 1: | SCOTT RANDALL HAROLD |
Parcel PIN#: |
1673-07-442-8475 |
|
| Owner Name 2: | SCOTT CARLA GAY | 1/4 section #: |
1673 |
|
| Owner Name 3: | Parent Acct: |
|
||
| Billing Address: | 19617 FILLY DR | Tax District: |
|
|
| City, State, Zip | EDMOND, OK 73012-3471 | School System: |
Oklahoma City #89 |
|
|
Country: (If noted) |
Land Size: |
0.2009 Acres |
||
|
Land Value: 19,688 |
|
|||
|
Sect 19-T11N-R3W Qtr NE |
MOORE HEIGHTS ADD
Block
026
Lot
000
|
|||
| Full Legal Description: MOORE HEIGHTS ADD 026 000 S70FT LOTS 25 THRU 29 |
| Photo & Sketch (if available) | Comp Sales (ordered by relevancy) |
|
||||||||||||||||||
|
||||||||||||||||||||
| Value History (*The County Treasurer 405-713-1300 posts & collects actual tax amounts. Contact information HERE) | |||||||||||||
|---|---|---|---|---|---|---|---|---|---|---|---|---|---|
| Year | Market Value | Taxable Mkt Value | Gross Assessed | Exemption | Net Assessed | Millage | Est. Tax | Tax Savings | |||||
|
2025 |
151,000 |
151,000 |
16,610 |
0 |
16,610 |
119.02 |
$1,977 |
$0 |
|||||
|
2024 |
120,500 |
72,213 |
7,943 |
0 |
7,943 |
119.70 |
$951 |
$636 |
|||||
|
2023 |
109,000 |
68,775 |
7,565 |
0 |
7,565 |
118.33 |
$895 |
$524 |
|||||
|
2022 |
65,500 |
65,500 |
7,205 |
0 |
7,205 |
112.69 |
$812 |
$0 |
|||||
|
2021 |
65,500 |
65,500 |
7,205 |
0 |
7,205 |
112.29 |
$809 |
$0 |
|||||
| Property Account Status/Adjustments/Exemptions | ||
|---|---|---|
| Account # | Exemption Description | Amount |
|
R074428475 |
5% Capped Account |
0 |
| Property Deed Transaction History (Recorded in the County Clerk's Office) | |||||||
|---|---|---|---|---|---|---|---|
| Date | Type | Book | Page | Price | Grantor | Grantee | |
|
12/10/2024 |
|
Deeds |
$151,000 |
BLH INVESTMENT PROPERTIES LLC |
SCOTT RANDALL HAROLD |
||
|
7/24/2018 |
|
Deeds |
$65,000 |
EQUITY TRUST CO CUSTODIAN |
BLH INVESTMENT PROPERTIES LLC |
||
|
5/19/2016 |
|
Deeds |
$30,000 |
CHICK POWELL H & THELMA J |
EQUITY TRUST CO CUSTODIAN |
||
|
4/14/1992 |
|
Historical |
$0 |
MCMILLIN MARTHA A |
CHICK POWELL H & THELMA J |
||
|
11/11/1911 |
|
Historical |
$0 |
|
MCMILLIN MARTHA A |
||
| Last Mailed Notice of Value (N.O.V.) Information/History | ||||||||
|---|---|---|---|---|---|---|---|---|
| Year | Date | Market Value | Taxable Market Value | Gross Assessed | Exemption | Net Assessed | ||
|
2025 |
01/31/2025 |
151,000 |
151,000 |
16,610 |
0 |
16,610 |
||
|
2024 |
01/22/2024 |
120,500 |
72,213 |
7,943 |
0 |
7,943 |
||
|
2023 |
01/23/2023 |
109,000 |
68,775 |
7,565 |
0 |
7,565 |
||
|
2018 |
04/09/2018 |
70,500 |
70,500 |
7,755 |
0 |
7,755 |
||
|
2017 |
02/24/2017 |
70,000 |
70,000 |
|
|
|
||
| Property Building Permit History | |||||||||||
|---|---|---|---|---|---|---|---|---|---|---|---|
| Issued | Permit # | Provided by | Bldg # | Description | Est Construction Cost | Status | |||||
| No Building Permit records returned. | |||||||||||
| Click button on building number to access detailed information: | ||||||
|---|---|---|---|---|---|---|
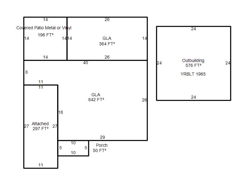
| Bldg # | Vacant/Improved Land | Bldg Description | Year Built | SqFt | # Stories | |
|
1 |
Improved |
Ranch 1 Story |
1956 |
1,206 |
1 Stories |
|