|
|
|
| Larry Stein Oklahoma County Assessor (405) 713-1200 - Public Access System |
|
|
|
|
|
|
| Real Property Display - Screen Produced 3/16/2026 8:41:15 PM | ||||
|---|---|---|---|---|
| Account: R074428485 | Type: Residential | Location: |
2235 SW 51ST ST |
|
| Building Name/Occupant: |
|
OKLAHOMA CITY |
||
| Owner Name 1: | ESTRELLA AMELIA MARTINEZ |
Parcel PIN#: |
1673-07-442-8485 |
|
| Owner Name 2: | MARTINEZ NEREIDA SERRATO | 1/4 section #: |
1673 |
|
| Owner Name 3: | Parent Acct: |
|
||
| Billing Address: | 2235 SW 51ST ST | Tax District: |
|
|
| City, State, Zip | OKLAHOMA CITY, OK 73119-4910 | School System: |
Oklahoma City #89 |
|
|
Country: (If noted) |
Land Size: |
0.1607 Acres |
||
|
Land Value: 15,750 |
|
|||
|
Sect 19-T11N-R3W Qtr NE |
MOORE HEIGHTS ADD
Block
026
Lot
000
|
|||
| Full Legal Description: MOORE HEIGHTS ADD 026 000 LOTS 30 & 31 |
| Photo & Sketch (if available) | Comp Sales (ordered by relevancy) |
|
||||||||||||||||||
|
||||||||||||||||||||
| Value History (*The County Treasurer 405-713-1300 posts & collects actual tax amounts. Contact information HERE) | |||||||||||||
|---|---|---|---|---|---|---|---|---|---|---|---|---|---|
| Year | Market Value | Taxable Mkt Value | Gross Assessed | Exemption | Net Assessed | Millage | Est. Tax | Tax Savings | |||||
|
2025 |
102,000 |
74,023 |
8,141 |
0 |
8,141 |
119.02 |
$969 |
$366 |
|||||
|
2024 |
95,000 |
70,499 |
7,754 |
0 |
7,754 |
119.70 |
$928 |
$323 |
|||||
|
2023 |
87,000 |
67,142 |
7,384 |
0 |
7,384 |
118.33 |
$874 |
$258 |
|||||
|
2022 |
76,500 |
63,945 |
7,033 |
0 |
7,033 |
112.69 |
$793 |
$156 |
|||||
|
2021 |
63,000 |
60,900 |
6,699 |
0 |
6,699 |
112.29 |
$752 |
$26 |
|||||
| Property Account Status/Adjustments/Exemptions | ||
|---|---|---|
| Account # | Exemption Description | Amount |
|
R074428485 |
5% Capped Account |
0 |
| Property Deed Transaction History (Recorded in the County Clerk's Office) | |||||||
|---|---|---|---|---|---|---|---|
| Date | Type | Book | Page | Price | Grantor | Grantee | |
|
1/18/2013 |
|
Deeds |
$0 |
HOMES OF OKC INC |
ESTRELLA AMELIA MARTINEZ |
||
|
9/21/2010 |
|
Deeds |
$33,500 |
THAGARD M A & S A |
HOMES OF OKC INC |
||
|
11/11/1911 |
|
Historical |
$0 |
|
THAGARD M A & S A |
||
| Last Mailed Notice of Value (N.O.V.) Information/History | ||||||||
|---|---|---|---|---|---|---|---|---|
| Year | Date | Market Value | Taxable Market Value | Gross Assessed | Exemption | Net Assessed | ||
|
2026 |
02/06/2026 |
100,500 |
77,724 |
8,549 |
0 |
8,549 |
||
|
2025 |
01/31/2025 |
102,000 |
74,023 |
8,141 |
0 |
8,141 |
||
|
2024 |
01/22/2024 |
95,000 |
70,499 |
7,754 |
0 |
7,754 |
||
|
2023 |
01/23/2023 |
87,000 |
67,142 |
7,384 |
0 |
7,384 |
||
|
2022 |
02/22/2022 |
76,500 |
63,945 |
7,033 |
0 |
7,033 |
||
| Property Building Permit History | |||||||||||
|---|---|---|---|---|---|---|---|---|---|---|---|
| Issued | Permit # | Provided by | Bldg # | Description | Est Construction Cost | Status | |||||
| No Building Permit records returned. | |||||||||||
| Click button on building number to access detailed information: | ||||||
|---|---|---|---|---|---|---|
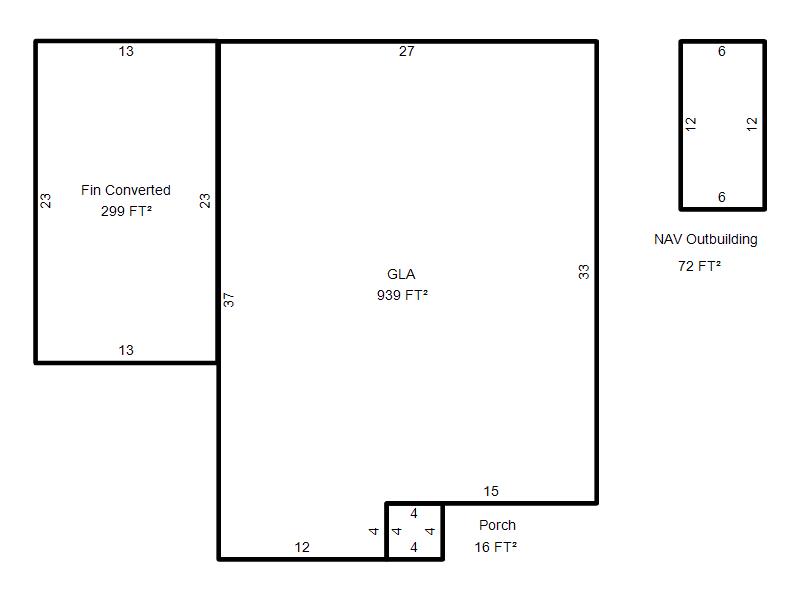
| Bldg # | Vacant/Improved Land | Bldg Description | Year Built | SqFt | # Stories | |
|
1 |
Improved |
Ranch 1 Story |
1958 |
939 |
1 Stories |
|