|
|
|
| Larry Stein Oklahoma County Assessor (405) 713-1200 - Public Access System |
|
|
|
|
|
|
| Real Property Display - Screen Produced 3/16/2026 8:42:31 PM | ||||
|---|---|---|---|---|
| Account: R074428970 | Type: Residential | Location: |
2440 SW 50TH ST |
|
| Building Name/Occupant: |
|
OKLAHOMA CITY |
||
| Owner Name 1: | CANO GONZALEZ FRANCISCO JAVIER |
Parcel PIN#: |
1673-07-442-8970 |
|
| Owner Name 2: | GUERRERO ALEJOS CAROLINA | 1/4 section #: |
1673 |
|
| Owner Name 3: | Parent Acct: |
|
||
| Billing Address: | 2440 SW 50TH ST | Tax District: |
|
|
| City, State, Zip | OKLAHOMA CITY, OK 73119-4827 | School System: |
Oklahoma City #89 |
|
|
Country: (If noted) |
Land Size: |
0.1607 Acres |
||
|
Land Value: 15,750 |
|
|||
|
Sect 19-T11N-R3W Qtr NE |
MOORE HEIGHTS ADD
Block
028
Lot
000
|
|||
| Full Legal Description: MOORE HEIGHTS ADD 028 000 LOTS 21 & 22 |
| Photo & Sketch (if available) | Comp Sales (ordered by relevancy) |
|
||||||||||||||||||
|
||||||||||||||||||||
| Value History (*The County Treasurer 405-713-1300 posts & collects actual tax amounts. Contact information HERE) | |||||||||||||
|---|---|---|---|---|---|---|---|---|---|---|---|---|---|
| Year | Market Value | Taxable Mkt Value | Gross Assessed | Exemption | Net Assessed | Millage | Est. Tax | Tax Savings | |||||
|
2025 |
76,000 |
76,000 |
8,360 |
0 |
8,360 |
119.02 |
$995 |
$0 |
|||||
|
2024 |
69,500 |
51,051 |
5,615 |
0 |
5,615 |
119.70 |
$672 |
$243 |
|||||
|
2023 |
63,000 |
48,620 |
5,347 |
0 |
5,347 |
118.33 |
$633 |
$187 |
|||||
|
2022 |
56,000 |
46,305 |
5,093 |
0 |
5,093 |
112.69 |
$574 |
$120 |
|||||
|
2021 |
46,000 |
44,100 |
4,851 |
0 |
4,851 |
112.29 |
$545 |
$23 |
|||||
| Property Account Status/Adjustments/Exemptions | ||
|---|---|---|
| Account # | Exemption Description | Amount |
|
R074428970 |
5% Capped Account |
0 |
| Property Deed Transaction History (Recorded in the County Clerk's Office) | |||||||
|---|---|---|---|---|---|---|---|
| Date | Type | Book | Page | Price | Grantor | Grantee | |
|
2/26/2024 |
|
Deeds |
$22,500 |
REAL IMPACT INVESTMENTS LLC |
CANO GONZALEZ FRANCISCO JAVIER |
||
|
3/21/2019 |
|
Mult Parcel |
$820,000 |
BRICK & MORTAR INVESTMENTS LLC |
REAL IMPACT INVESTMENTS LLC |
||
|
12/12/2014 |
|
Mult Parcel |
$105,000 |
HOMECO LLC |
BRICK AND MORTAR INVESTMENTS LLC |
||
|
10/29/2014 |
|
Mult Parcel |
$96,000 |
HOAGLIN JOHN & NELLIE B |
HOMECO LLC |
||
|
11/11/1911 |
|
Historical |
$0 |
|
HOAGLIN JOHN W & NELLLIE B |
||
| Last Mailed Notice of Value (N.O.V.) Information/History | ||||||||
|---|---|---|---|---|---|---|---|---|
| Year | Date | Market Value | Taxable Market Value | Gross Assessed | Exemption | Net Assessed | ||
|
2026 |
02/06/2026 |
77,000 |
77,000 |
8,470 |
0 |
8,470 |
||
|
2025 |
01/31/2025 |
76,000 |
76,000 |
8,360 |
0 |
8,360 |
||
|
2024 |
01/22/2024 |
69,500 |
51,051 |
5,615 |
0 |
5,615 |
||
|
2024 |
04/05/2024 |
69,500 |
51,051 |
5,615 |
0 |
5,615 |
||
|
2023 |
01/23/2023 |
63,000 |
48,620 |
5,347 |
0 |
5,347 |
||
| Property Building Permit History | |||||||||||
|---|---|---|---|---|---|---|---|---|---|---|---|
| Issued | Permit # | Provided by | Bldg # | Description | Est Construction Cost | Status | |||||
| No Building Permit records returned. | |||||||||||
| Click button on building number to access detailed information: | ||||||
|---|---|---|---|---|---|---|
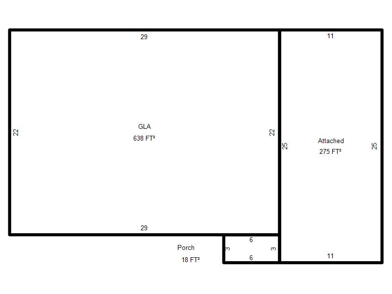
| Bldg # | Vacant/Improved Land | Bldg Description | Year Built | SqFt | # Stories | |
|
1 |
Improved |
Ranch 1 Story |
1954 |
638 |
1 Stories |
|