|
|
|
| Larry Stein Oklahoma County Assessor (405) 713-1200 - Public Access System |
|
|
|
|
|
|
| Real Property Display - Screen Produced 3/14/2026 8:01:41 AM | ||||
|---|---|---|---|---|
| Account: R121571050 | Type: Residential | Location: |
10521 WILLOW RIDGE DR |
|
| Building Name/Occupant: |
|
MIDWEST CITY |
||
| Owner Name 1: | MILLER TIMOTHY L & HILDA S |
Parcel PIN#: |
1222-12-157-1050 |
|
| Owner Name 2: | 1/4 section #: |
1222 |
||
| Owner Name 3: | Parent Acct: |
|
||
| Billing Address: | 10521 WILLOW RIDGE DR | Tax District: |
|
|
| City, State, Zip | MIDWEST CITY, OK 73130-6035 | School System: |
Choctaw #4 |
|
|
Country: (If noted) |
Land Size: |
0.1641 Acres |
||
|
Land Value: 39,325 |
|
|||
|
Sect 6-T11N-R1W Qtr SE |
WILLOW RIDGE ESTATES TO MWC
Block
001
Lot
006
|
|||
| Full Legal Description: WILLOW RIDGE ESTATES TO MWC 001 006 |
| Photo & Sketch (if available) | Comp Sales (ordered by relevancy) |
|
||||||||||||||||||
|
||||||||||||||||||||
| Value History (*The County Treasurer 405-713-1300 posts & collects actual tax amounts. Contact information HERE) | |||||||||||||
|---|---|---|---|---|---|---|---|---|---|---|---|---|---|
| Year | Market Value | Taxable Mkt Value | Gross Assessed | Exemption | Net Assessed | Millage | Est. Tax | Tax Savings | |||||
|
2025 |
193,500 |
133,314 |
14,664 |
1,000 |
13,664 |
127.03 |
$1,736 |
$968 |
|||||
|
2024 |
187,500 |
129,432 |
14,236 |
1,000 |
13,236 |
127.00 |
$1,681 |
$938 |
|||||
|
2023 |
171,000 |
125,663 |
13,822 |
1,000 |
12,822 |
128.50 |
$1,648 |
$769 |
|||||
|
2022 |
144,000 |
122,003 |
13,419 |
1,000 |
12,419 |
127.22 |
$1,580 |
$435 |
|||||
|
2021 |
126,500 |
118,450 |
13,029 |
1,000 |
12,029 |
126.69 |
$1,524 |
$239 |
|||||
| Property Account Status/Adjustments/Exemptions | ||
|---|---|---|
| Account # | Exemption Description | Amount |
|
R121571050 |
3% Cap Homestead |
0 |
|
R121571050 |
Homestead |
1,000 |
| Property Deed Transaction History (Recorded in the County Clerk's Office) | |||||||
|---|---|---|---|---|---|---|---|
| Date | Type | Book | Page | Price | Grantor | Grantee | |
|
9/3/1992 |
|
Historical |
$46,500 |
SECRETARY OF HOUSING |
MILLER TIMOTHY L & HILDA S |
||
|
9/20/1991 |
|
Historical |
$0 |
HUTTO PAUL H & LENORA K |
SECRETARY OF HOUSING |
||
|
11/1/1986 |
|
Historical |
$68,000 |
OHAGAN VICTOR N & PATRICIA P |
HUTTO PAUL H & LENORA K |
||
|
7/1/1986 |
|
Historical |
$0 |
|
OHAGAN VICTOR N & PATRICIA P |
||
| Last Mailed Notice of Value (N.O.V.) Information/History | ||||||||
|---|---|---|---|---|---|---|---|---|
| Year | Date | Market Value | Taxable Market Value | Gross Assessed | Exemption | Net Assessed | ||
|
2026 |
02/06/2026 |
196,500 |
137,313 |
15,103 |
1,000 |
14,103 |
||
|
2025 |
01/31/2025 |
193,500 |
133,314 |
14,664 |
1,000 |
13,664 |
||
|
2024 |
01/22/2024 |
187,500 |
129,432 |
14,236 |
1,000 |
13,236 |
||
|
2023 |
01/23/2023 |
171,000 |
125,663 |
13,822 |
1,000 |
12,822 |
||
|
2022 |
02/22/2022 |
144,000 |
122,003 |
13,419 |
1,000 |
12,419 |
||
| Property Building Permit History | |||||||||||
|---|---|---|---|---|---|---|---|---|---|---|---|
| Issued | Permit # | Provided by | Bldg # | Description | Est Construction Cost | Status | |||||
| No Building Permit records returned. | |||||||||||
| Click button on building number to access detailed information: | ||||||
|---|---|---|---|---|---|---|
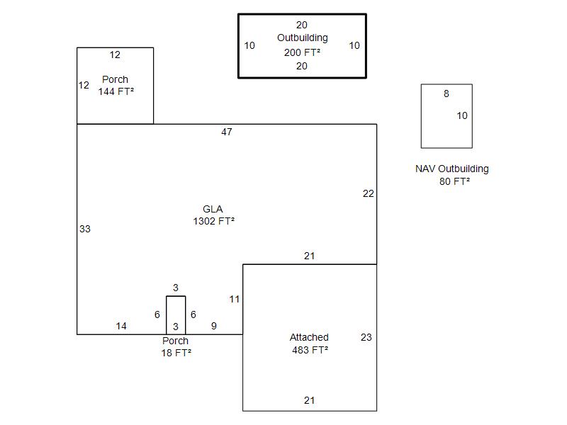
| Bldg # | Vacant/Improved Land | Bldg Description | Year Built | SqFt | # Stories | |
|
1 |
Improved |
Ranch 1 Story |
1985 |
1,302 |
1 Stories |
|