|
|
|
| Larry Stein Oklahoma County Assessor (405) 713-1200 - Public Access System |
|
|
|
|
|
|
| Real Property Display - Screen Produced 4/3/2026 4:03:54 AM | ||||
|---|---|---|---|---|
| Account: R113419064 | Type: Residential | Location: |
2516 SW 52ND ST |
|
| Building Name/Occupant: |
|
OKLAHOMA CITY |
||
| Owner Name 1: | ACEVEDO JOSE |
Parcel PIN#: |
1675-11-341-9064 |
|
| Owner Name 2: | 1/4 section #: |
1675 |
||
| Owner Name 3: | Parent Acct: |
|
||
| Billing Address: | 2516 SW 52ND ST | Tax District: |
|
|
| City, State, Zip | OKLAHOMA CITY, OK 73119-5844 | School System: |
Oklahoma City #89 |
|
|
Country: (If noted) |
Land Size: |
0.1433 Acres |
||
|
Land Value: 20,592 |
|
|||
|
Sect 19-T11N-R3W Qtr SW |
KNOB HILL ADDITION
Block
035
Lot
005
|
|||
| Full Legal Description: KNOB HILL ADDITION 035 005 |
| Photo & Sketch (if available) | Comp Sales (ordered by relevancy) |
|
||||||||||||||||||
|
||||||||||||||||||||
| Value History (*The County Treasurer 405-713-1300 posts & collects actual tax amounts. Contact information HERE) | |||||||||||||
|---|---|---|---|---|---|---|---|---|---|---|---|---|---|
| Year | Market Value | Taxable Mkt Value | Gross Assessed | Exemption | Net Assessed | Millage | Est. Tax | Tax Savings | |||||
| No PropertyValuation records returned. | |||||||||||||
| Property Account Status/Adjustments/Exemptions | ||
|---|---|---|
| Account # | Exemption Description | Amount |
|
R113419064 |
3% Cap Homestead |
0 |
|
R113419064 |
Homestead |
1,000 |
| Property Deed Transaction History (Recorded in the County Clerk's Office) | ||||||||||
|---|---|---|---|---|---|---|---|---|---|---|
| Date | Type | Book | Page | Price | Grantor | Grantee | ||||
|
9/16/2024 |
|
Deeds |
$178,000 |
ALCOCER ABIGAIL |
ACEVEDO JOSE |
|||||
|
9/27/2017 |
|
Deeds |
$104,000 |
THOMAS PATRICIA JOYCE |
ALCOCER ABIGAIL |
|||||
|
7/30/2014 |
|
Deeds |
$0 |
THOMAS PATRICIA JOYCE |
THOMAS PATRICIA JOYCE |
|||||
|
6/15/2006 |
|
Deeds |
$0 |
THOMAS RONALD RAY & PATRICIA J |
THOMAS PATRICIA JOYCE |
|||||
|
2/7/2001 |
|
Deeds |
$0 |
THOMAS RONALD RAY & PATRICIA J SULLIVAN ANGELA |
THOMAS RONALD RAY & PATRICIA J |
|||||
| Last Mailed Notice of Value (N.O.V.) Information/History | ||||||||
|---|---|---|---|---|---|---|---|---|
| Year | Date | Market Value | Taxable Market Value | Gross Assessed | Exemption | Net Assessed | ||
| No Notice of Value N.O.V. records returned. | ||||||||
| Property Building Permit History | |||||||||||
|---|---|---|---|---|---|---|---|---|---|---|---|
| Issued | Permit # | Provided by | Bldg # | Description | Est Construction Cost | Status | |||||
| No Building Permit records returned. | |||||||||||
| Click button on building number to access detailed information: | ||||||
|---|---|---|---|---|---|---|
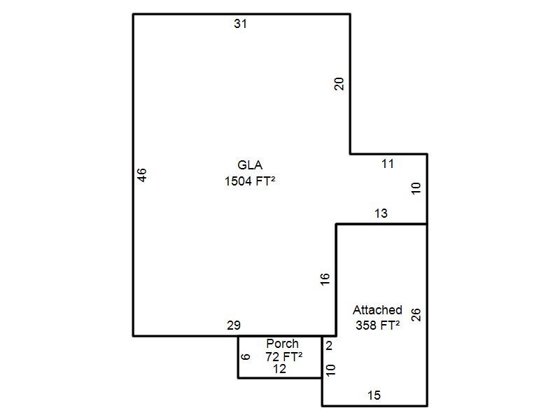
| Bldg # | Vacant/Improved Land | Bldg Description | Year Built | SqFt | # Stories | |
|
1 |
Improved |
Ranch 1 Story |
1956 |
1,504 |
1 Stories |
|