|
|
|
| Larry Stein Oklahoma County Assessor (405) 713-1200 - Public Access System |
|
|
|
|
|
|
| Real Property Display - Screen Produced 3/16/2026 4:03:05 AM | ||||
|---|---|---|---|---|
| Account: R121571200 | Type: Residential | Location: |
908 CHOCTAW RIDGE RD |
|
| Building Name/Occupant: |
|
MIDWEST CITY |
||
| Owner Name 1: | DEEN STACY |
Parcel PIN#: |
1222-12-157-1200 |
|
| Owner Name 2: | 1/4 section #: |
1222 |
||
| Owner Name 3: | Parent Acct: |
|
||
| Billing Address: | 329 KING AVE | Tax District: |
|
|
| City, State, Zip | MIDWEST CITY, OK 73130 | School System: |
Choctaw #4 |
|
|
Country: (If noted) |
Land Size: |
0.1612 Acres |
||
|
Land Value: 38,610 |
|
|||
|
Sect 6-T11N-R1W Qtr SE |
WILLOW RIDGE ESTATES TO MWC
Block
001
Lot
021
|
|||
| Full Legal Description: WILLOW RIDGE ESTATES TO MWC 001 021 |
| Photo & Sketch (if available) | Comp Sales (ordered by relevancy) |
|
||||||||||||||||||
|
||||||||||||||||||||
| Value History (*The County Treasurer 405-713-1300 posts & collects actual tax amounts. Contact information HERE) | |||||||||||||
|---|---|---|---|---|---|---|---|---|---|---|---|---|---|
| Year | Market Value | Taxable Mkt Value | Gross Assessed | Exemption | Net Assessed | Millage | Est. Tax | Tax Savings | |||||
|
2025 |
215,500 |
167,828 |
18,461 |
0 |
18,461 |
127.03 |
$2,345 |
$666 |
|||||
|
2024 |
210,500 |
159,837 |
17,581 |
0 |
17,581 |
127.00 |
$2,233 |
$708 |
|||||
|
2023 |
196,000 |
152,226 |
16,744 |
0 |
16,744 |
128.50 |
$2,152 |
$619 |
|||||
|
2022 |
165,000 |
144,978 |
15,947 |
0 |
15,947 |
127.22 |
$2,029 |
$280 |
|||||
|
2021 |
145,000 |
138,075 |
15,188 |
0 |
15,188 |
126.69 |
$1,924 |
$97 |
|||||
| Property Account Status/Adjustments/Exemptions | ||
|---|---|---|
| Account # | Exemption Description | Amount |
|
R121571200 |
5% Capped Account |
0 |
| Property Deed Transaction History (Recorded in the County Clerk's Office) | ||||||||||
|---|---|---|---|---|---|---|---|---|---|---|
| Date | Type | Book | Page | Price | Grantor | Grantee | ||||
|
5/6/2019 |
|
Sheriff's/Ma |
$99,500 |
CARTER ALICIA & ROBERT |
DEEN STACY |
|||||
|
9/26/2008 |
|
Deeds |
$118,000 |
ROGERS MADGE TRS ROGERS MADGE LIVING TRUST |
CARTER ALICIA & ROBERT |
|||||
|
5/21/1997 |
|
Historical |
$0 |
ROGERS MADGE TRS |
ROGERS MADGE TRS |
|||||
|
3/19/1997 |
|
Historical |
$0 |
ROGERS WILLIAM C & MADGE TRS |
ROGERS MADGE TRS |
|||||
|
7/26/1996 |
|
Historical |
$0 |
ROGERS WILLIAM C & MADGE |
ROGERS WILLIAM C & MADGE TRS |
|||||
| Last Mailed Notice of Value (N.O.V.) Information/History | ||||||||
|---|---|---|---|---|---|---|---|---|
| Year | Date | Market Value | Taxable Market Value | Gross Assessed | Exemption | Net Assessed | ||
|
2026 |
02/06/2026 |
220,000 |
176,219 |
19,384 |
0 |
19,384 |
||
|
2025 |
01/31/2025 |
215,500 |
167,828 |
18,461 |
0 |
18,461 |
||
|
2024 |
01/22/2024 |
210,500 |
159,837 |
17,581 |
0 |
17,581 |
||
|
2023 |
01/23/2023 |
196,000 |
152,226 |
16,744 |
0 |
16,744 |
||
|
2022 |
02/22/2022 |
165,000 |
144,978 |
15,947 |
0 |
15,947 |
||
| Property Building Permit History | |||||||||||
|---|---|---|---|---|---|---|---|---|---|---|---|
| Issued | Permit # | Provided by | Bldg # | Description | Est Construction Cost | Status | |||||
| No Building Permit records returned. | |||||||||||
| Click button on building number to access detailed information: | ||||||
|---|---|---|---|---|---|---|
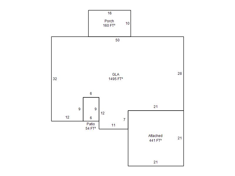
| Bldg # | Vacant/Improved Land | Bldg Description | Year Built | SqFt | # Stories | |
|
1 |
Improved |
Ranch 1 Story |
1985 |
1,495 |
1 Stories |
|