|
|
|
| Larry Stein Oklahoma County Assessor (405) 713-1200 - Public Access System |
|
|
|
|
|
|
| Real Property Display - Screen Produced 4/3/2026 4:07:12 AM | ||||
|---|---|---|---|---|
| Account: R113419360 | Type: Residential | Location: |
2505 SW 54TH PL |
|
| Building Name/Occupant: |
|
OKLAHOMA CITY |
||
| Owner Name 1: | LOPEZ AGUINAGA JOSE DE JESUS |
Parcel PIN#: |
1675-11-341-9360 |
|
| Owner Name 2: | 1/4 section #: |
1675 |
||
| Owner Name 3: | Parent Acct: |
|
||
| Billing Address: | 3229 SW 38TH ST | Tax District: |
|
|
| City, State, Zip | OKLAHOMA CITY, OK 73119-3211 | School System: |
Oklahoma City #89 |
|
|
Country: (If noted) |
Land Size: |
0.1488 Acres |
||
|
Land Value: 21,384 |
|
|||
|
Sect 19-T11N-R3W Qtr SW |
KNOB HILL ADDITION
Block
042
Lot
002
|
|||
| Full Legal Description: KNOB HILL ADDITION 042 002 |
| Photo & Sketch (if available) | Comp Sales (ordered by relevancy) |
|
||||||||||||||||||
|
||||||||||||||||||||
| Value History (*The County Treasurer 405-713-1300 posts & collects actual tax amounts. Contact information HERE) | |||||||||||||
|---|---|---|---|---|---|---|---|---|---|---|---|---|---|
| Year | Market Value | Taxable Mkt Value | Gross Assessed | Exemption | Net Assessed | Millage | Est. Tax | Tax Savings | |||||
| No PropertyValuation records returned. | |||||||||||||
| Property Account Status/Adjustments/Exemptions | ||
|---|---|---|
| Account # | Exemption Description | Amount |
|
R113419360 |
5% Capped Account |
0 |
| Property Deed Transaction History (Recorded in the County Clerk's Office) | ||||||||||
|---|---|---|---|---|---|---|---|---|---|---|
| Date | Type | Book | Page | Price | Grantor | Grantee | ||||
|
9/9/2016 |
|
Deeds |
$72,500 |
MULLINS BETTY LOU |
LOPEZ AGUINAGA JOSE DE JESUS |
|||||
|
5/31/2001 |
|
Deeds |
$58,000 |
BAKER TRAVIS & RAEGAN R |
MULLINS BETTY LOU |
|||||
|
5/21/1996 |
|
Historical |
$44,000 |
BRIGGS CHERYL ANN |
BAKER TRAVIS & RAEGAN R |
|||||
|
10/2/1991 |
|
Historical |
$32,000 |
RICE MATTIE N |
BRIGGS CHERYL ANN |
|||||
|
12/19/1990 |
|
Historical |
$0 |
RICE EARL RAYMOND JR & MATTIE |
RICE MATTIE N |
|||||
| Last Mailed Notice of Value (N.O.V.) Information/History | ||||||||
|---|---|---|---|---|---|---|---|---|
| Year | Date | Market Value | Taxable Market Value | Gross Assessed | Exemption | Net Assessed | ||
| No Notice of Value N.O.V. records returned. | ||||||||
| Property Building Permit History | |||||||||||
|---|---|---|---|---|---|---|---|---|---|---|---|
| Issued | Permit # | Provided by | Bldg # | Description | Est Construction Cost | Status | |||||
| No Building Permit records returned. | |||||||||||
| Click button on building number to access detailed information: | ||||||
|---|---|---|---|---|---|---|
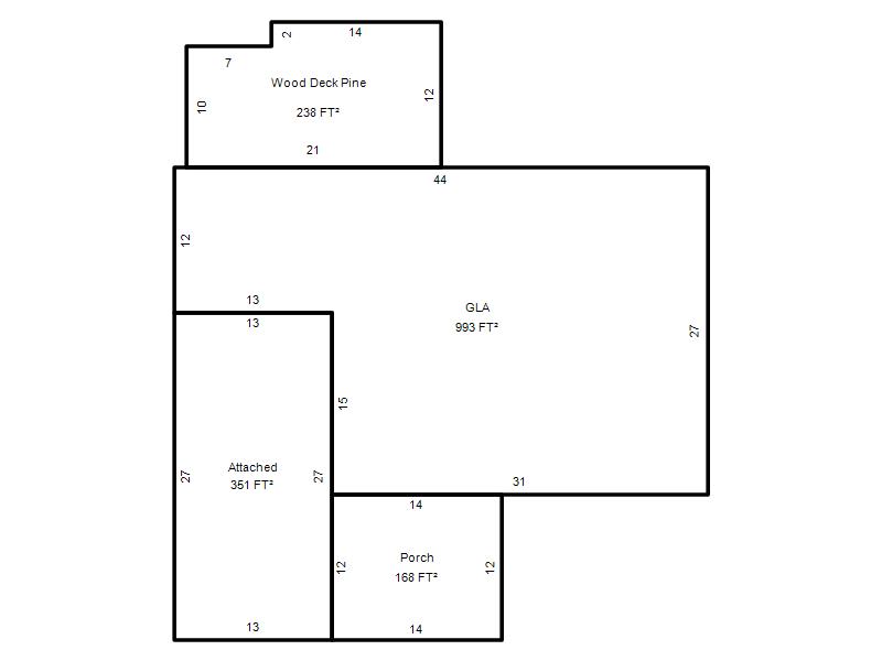
| Bldg # | Vacant/Improved Land | Bldg Description | Year Built | SqFt | # Stories | |
|
1 |
Improved |
Ranch 1 Story |
1958 |
993 |
1 Stories |
|