|
|
|
| Larry Stein Oklahoma County Assessor (405) 713-1200 - Public Access System |
|
|
|
|
|
|
| Real Property Display - Screen Produced 3/14/2026 8:04:10 AM | ||||
|---|---|---|---|---|
| Account: R121571380 | Type: Residential | Location: |
10540 WILLOW RIDGE DR |
|
| Building Name/Occupant: |
|
MIDWEST CITY |
||
| Owner Name 1: | LEBLANC MAURICE |
Parcel PIN#: |
1222-12-157-1380 |
|
| Owner Name 2: | LEBLANC JANETT SUE | 1/4 section #: |
1222 |
|
| Owner Name 3: | Parent Acct: |
|
||
| Billing Address: | 10540 WILLOW RIDGE DR | Tax District: |
|
|
| City, State, Zip | MIDWEST CITY, OK 73130-6034 | School System: |
Choctaw #4 |
|
|
Country: (If noted) |
Land Size: |
0.1515 Acres |
||
|
Land Value: 36,300 |
|
|||
|
Sect 6-T11N-R1W Qtr SE |
WILLOW RIDGE ESTATES TO MWC
Block
002
Lot
011
|
|||
| Full Legal Description: WILLOW RIDGE ESTATES TO MWC 002 011 |
| Photo & Sketch (if available) | Comp Sales (ordered by relevancy) |
|
||||||||||||||||||
|
||||||||||||||||||||
| Value History (*The County Treasurer 405-713-1300 posts & collects actual tax amounts. Contact information HERE) | |||||||||||||
|---|---|---|---|---|---|---|---|---|---|---|---|---|---|
| Year | Market Value | Taxable Mkt Value | Gross Assessed | Exemption | Net Assessed | Millage | Est. Tax | Tax Savings | |||||
|
2025 |
203,500 |
144,907 |
15,939 |
1,000 |
14,939 |
127.03 |
$1,898 |
$946 |
|||||
|
2024 |
198,500 |
140,687 |
15,474 |
1,000 |
14,474 |
127.00 |
$1,838 |
$935 |
|||||
|
2023 |
186,500 |
136,590 |
15,024 |
1,000 |
14,024 |
128.50 |
$1,802 |
$834 |
|||||
|
2022 |
157,000 |
132,612 |
14,586 |
1,000 |
13,586 |
127.22 |
$1,729 |
$469 |
|||||
|
2021 |
138,500 |
128,750 |
14,162 |
1,000 |
13,162 |
126.69 |
$1,668 |
$263 |
|||||
| Property Account Status/Adjustments/Exemptions | ||
|---|---|---|
| Account # | Exemption Description | Amount |
|
R121571380 |
Freeze Senior Valuation |
0 |
|
R121571380 |
Senior Additional Homestead |
1,000 |
|
R121571380 |
Homestead |
1,000 |
|
R121571380 |
3% Cap Homestead |
0 |
| Property Deed Transaction History (Recorded in the County Clerk's Office) | |||||||
|---|---|---|---|---|---|---|---|
| Date | Type | Book | Page | Price | Grantor | Grantee | |
|
10/26/2007 |
|
Deeds |
$0 |
CHASE JANETT SUE |
LEBLANC MAURICE |
||
|
10/26/1987 |
|
Historical |
$69,500 |
ANDERSON PHILIP WAYNE |
CHASE JANETT SUE |
||
|
5/7/1987 |
|
Historical |
$63,500 |
OHAGAN PATRICK B & FRANKIE D |
ANDERSON PHILIP WAYNE |
||
|
12/1/1986 |
|
Historical |
$0 |
WILLOW WIND INC |
OHAGAN PATRICK B & FRANKIE D |
||
|
11/11/1911 |
|
Historical |
$0 |
|
WILLOW WIND INC |
||
| Last Mailed Notice of Value (N.O.V.) Information/History | ||||||||
|---|---|---|---|---|---|---|---|---|
| Year | Date | Market Value | Taxable Market Value | Gross Assessed | Exemption | Net Assessed | ||
|
2026 |
02/06/2026 |
208,500 |
149,254 |
16,417 |
1,000 |
15,417 |
||
|
2025 |
01/31/2025 |
203,500 |
144,907 |
15,939 |
1,000 |
14,939 |
||
|
2024 |
01/22/2024 |
198,500 |
140,687 |
15,474 |
1,000 |
14,474 |
||
|
2023 |
01/23/2023 |
186,500 |
136,590 |
15,024 |
1,000 |
14,024 |
||
|
2022 |
02/22/2022 |
157,000 |
132,612 |
14,586 |
1,000 |
13,586 |
||
| Property Building Permit History | |||||||||||
|---|---|---|---|---|---|---|---|---|---|---|---|
| Issued | Permit # | Provided by | Bldg # | Description | Est Construction Cost | Status | |||||
| No Building Permit records returned. | |||||||||||
| Click button on building number to access detailed information: | ||||||
|---|---|---|---|---|---|---|
| Bldg # | Vacant/Improved Land | Bldg Description | Year Built | SqFt | # Stories | |
|
1 |
Improved |
Ranch 1 Story |
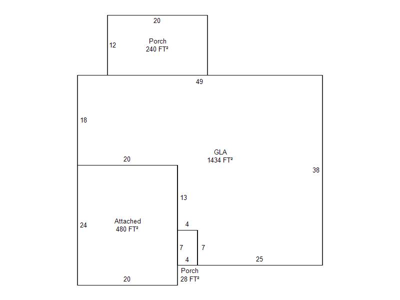
1987 |
1,434 |
1 Stories |
|