|
|
|
| Larry Stein Oklahoma County Assessor (405) 713-1200 - Public Access System |
|
|
|
|
|
|
| Real Property Display - Screen Produced 4/1/2026 10:09:22 AM | ||||
|---|---|---|---|---|
| Account: R113421530 | Type: Residential | Location: |
2545 SW 58TH ST |
|
| Building Name/Occupant: |
|
OKLAHOMA CITY |
||
| Owner Name 1: | URBINA NICHOLE |
Parcel PIN#: |
1675-11-342-1530 |
|
| Owner Name 2: | 1/4 section #: |
1675 |
||
| Owner Name 3: | Parent Acct: |
|
||
| Billing Address: | 2545 SW 58TH ST | Tax District: |
|
|
| City, State, Zip | OKLAHOMA CITY, OK 73119-5828 | School System: |
Oklahoma City #89 |
|
|
Country: (If noted) |
Land Size: |
0.2755 Acres |
||
|
Land Value: 23,950 |
|
|||
|
Sect 19-T11N-R3W Qtr SW |
L L LYON HILLCREST # 1
Block
002
Lot
000
|
|||
| Full Legal Description: L L LYON HILLCREST # 1 002 000 ELY PRT LOT 35 BEING 20.68FT ON SELY LINE & 38.81FT ON NWLYLINE & WLY PRT LOT 36 BEING 84.74FT ON NWLY LINE & 30.75FT ON SELY LINE |
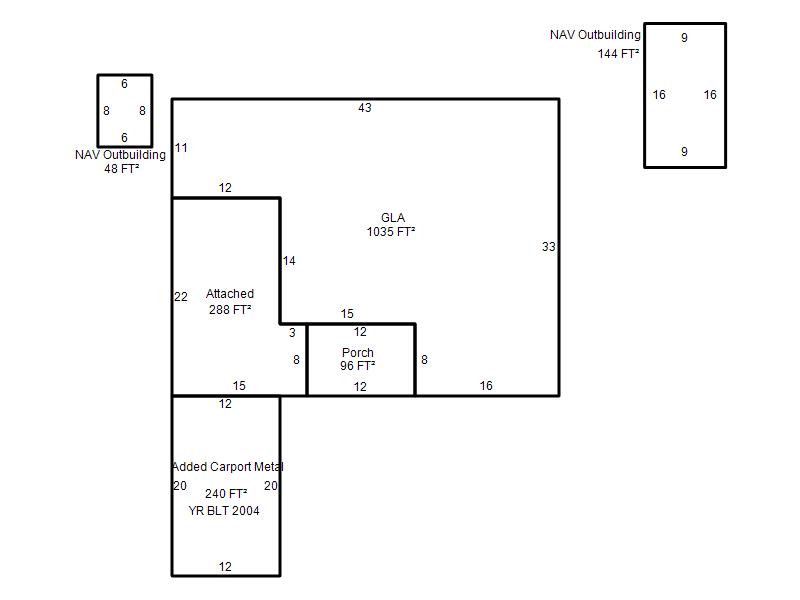
| Photo & Sketch (if available) | Comp Sales (ordered by relevancy) |
|
||||||||||||||||||
|
||||||||||||||||||||
| Value History (*The County Treasurer 405-713-1300 posts & collects actual tax amounts. Contact information HERE) | |||||||||||||
|---|---|---|---|---|---|---|---|---|---|---|---|---|---|
| Year | Market Value | Taxable Mkt Value | Gross Assessed | Exemption | Net Assessed | Millage | Est. Tax | Tax Savings | |||||
|
2026 |
128,500 |
84,775 |
9,324 |
1,000 |
8,324 |
119.02 |
$991 |
$691 |
|||||
|
2025 |
130,500 |
82,306 |
9,052 |
1,000 |
8,052 |
119.02 |
$959 |
$750 |
|||||
|
2024 |
121,500 |
79,909 |
8,789 |
1,000 |
7,789 |
119.70 |
$932 |
$667 |
|||||
|
2023 |
107,000 |
77,582 |
8,533 |
1,000 |
7,533 |
118.33 |
$892 |
$501 |
|||||
|
2022 |
95,500 |
75,323 |
8,285 |
1,000 |
7,285 |
112.69 |
$821 |
$363 |
|||||
| Property Account Status/Adjustments/Exemptions | ||
|---|---|---|
| Account # | Exemption Description | Amount |
|
R113421530 |
Homestead |
1,000 |
|
R113421530 |
3% Cap Homestead |
0 |
| Property Deed Transaction History (Recorded in the County Clerk's Office) | |||||||
|---|---|---|---|---|---|---|---|
| Date | Type | Book | Page | Price | Grantor | Grantee | |
|
4/25/2024 |
|
Deeds |
$0 |
OWENS NICHOLE |
URBINA NICHOLE |
||
|
10/18/2010 |
|
Hmstd Off & |
$0 |
VEITCH ARNOLD J |
OWENS NICHOLE |
||
|
9/10/2009 |
|
Deeds |
$0 |
VEITCH ARNOLD J & MARTHA L |
VEITCH ARNOLD J |
||
|
5/1/1979 |
|
Historical |
$0 |
|
VEITCH ARNOLD J & MARTHA L |
||
| Last Mailed Notice of Value (N.O.V.) Information/History | ||||||||
|---|---|---|---|---|---|---|---|---|
| Year | Date | Market Value | Taxable Market Value | Gross Assessed | Exemption | Net Assessed | ||
|
2026 |
02/06/2026 |
128,500 |
84,775 |
9,324 |
1,000 |
8,324 |
||
|
2025 |
01/31/2025 |
130,500 |
82,306 |
9,052 |
1,000 |
8,052 |
||
|
2024 |
01/22/2024 |
121,500 |
79,909 |
8,789 |
1,000 |
7,789 |
||
|
2023 |
01/23/2023 |
107,000 |
77,582 |
8,533 |
1,000 |
7,533 |
||
|
2022 |
02/22/2022 |
95,500 |
75,323 |
8,285 |
1,000 |
7,285 |
||
| Property Building Permit History | |||||||||||
|---|---|---|---|---|---|---|---|---|---|---|---|
| Issued | Permit # | Provided by | Bldg # | Description | Est Construction Cost | Status | |||||
| No Building Permit records returned. | |||||||||||
| Click button on building number to access detailed information: | ||||||
|---|---|---|---|---|---|---|
| Bldg # | Vacant/Improved Land | Bldg Description | Year Built | SqFt | # Stories | |
|
1 |
Improved |
Ranch 1 Story |
1958 |
1,035 |
1 Stories |
|