|
|
|
| Larry Stein Oklahoma County Assessor (405) 713-1200 - Public Access System |
|
|
|
|
|
|
| Real Property Display - Screen Produced 4/2/2026 10:21:59 AM | ||||
|---|---|---|---|---|
| Account: R113521745 | Type: Residential | Location: |
2517 SW 56TH ST |
|
| Building Name/Occupant: |
|
OKLAHOMA CITY |
||
| Owner Name 1: | CRITES STACY |
Parcel PIN#: |
1675-11-352-1745 |
|
| Owner Name 2: | 1/4 section #: |
1675 |
||
| Owner Name 3: | Parent Acct: |
|
||
| Billing Address: | 2517 SW 56TH ST | Tax District: |
|
|
| City, State, Zip | OKLAHOMA CITY, OK 73119 | School System: |
Oklahoma City #89 |
|
|
Country: (If noted) |
Land Size: |
0.2113 Acres |
||
|
Land Value: 23,930 |
|
|||
|
Sect 19-T11N-R3W Qtr SW |
L L LYON HILLCREST # 2
Block
007
Lot
038
|
|||
| Full Legal Description: L L LYON HILLCREST # 2 007 038 |
| Photo & Sketch (if available) | Comp Sales (ordered by relevancy) |
|
||||||||||||||||||
|
||||||||||||||||||||
| Value History (*The County Treasurer 405-713-1300 posts & collects actual tax amounts. Contact information HERE) | |||||||||||||
|---|---|---|---|---|---|---|---|---|---|---|---|---|---|
| Year | Market Value | Taxable Mkt Value | Gross Assessed | Exemption | Net Assessed | Millage | Est. Tax | Tax Savings | |||||
|
2026 |
124,000 |
111,826 |
12,300 |
0 |
12,300 |
119.02 |
$1,464 |
$159 |
|||||
|
2025 |
126,500 |
106,501 |
11,714 |
0 |
11,714 |
119.02 |
$1,394 |
$262 |
|||||
|
2024 |
118,000 |
101,430 |
11,157 |
0 |
11,157 |
119.70 |
$1,336 |
$218 |
|||||
|
2023 |
103,500 |
96,600 |
10,626 |
0 |
10,626 |
118.33 |
$1,257 |
$90 |
|||||
|
2022 |
92,000 |
92,000 |
10,120 |
0 |
10,120 |
112.69 |
$1,140 |
$0 |
|||||
| Property Account Status/Adjustments/Exemptions | ||
|---|---|---|
| Account # | Exemption Description | Amount |
|
R113521745 |
5% Capped Account |
0 |
| Property Deed Transaction History (Recorded in the County Clerk's Office) | |||||||
|---|---|---|---|---|---|---|---|
| Date | Type | Book | Page | Price | Grantor | Grantee | |
|
10/25/2021 |
|
Other |
$0 |
CONDO DAVID C |
CRITES STACY |
||
|
6/17/2008 |
|
Deeds |
$55,000 |
PERKINS EDWARD L |
CONDO DAVID C |
||
|
3/8/2000 |
|
Deeds |
$41,000 |
HAGUE MILDRED I TRS HAGUE MILDRED I REV TRUST |
PERKINS EDWARD L |
||
|
6/29/1993 |
|
Historical |
$0 |
HAGUE MILDRED I |
HAGUE MILDRED I TRS |
||
|
8/1/1978 |
|
Historical |
$0 |
|
HAGUE MILDRED I |
||
| Last Mailed Notice of Value (N.O.V.) Information/History | ||||||||
|---|---|---|---|---|---|---|---|---|
| Year | Date | Market Value | Taxable Market Value | Gross Assessed | Exemption | Net Assessed | ||
|
2026 |
02/06/2026 |
124,000 |
111,826 |
12,300 |
0 |
12,300 |
||
|
2025 |
01/31/2025 |
126,500 |
106,501 |
11,714 |
0 |
11,714 |
||
|
2024 |
01/22/2024 |
118,000 |
101,430 |
11,157 |
0 |
11,157 |
||
|
2023 |
01/23/2023 |
103,500 |
96,600 |
10,626 |
0 |
10,626 |
||
|
2022 |
02/22/2022 |
92,000 |
92,000 |
10,120 |
0 |
10,120 |
||
| Property Building Permit History | |||||||||||
|---|---|---|---|---|---|---|---|---|---|---|---|
| Issued | Permit # | Provided by | Bldg # | Description | Est Construction Cost | Status | |||||
| No Building Permit records returned. | |||||||||||
| Click button on building number to access detailed information: | ||||||
|---|---|---|---|---|---|---|
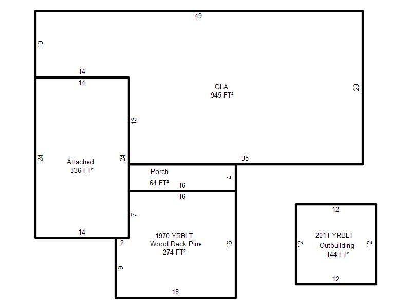
| Bldg # | Vacant/Improved Land | Bldg Description | Year Built | SqFt | # Stories | |
|
1 |
Improved |
Ranch 1 Story |
1959 |
945 |
1 Stories |
|