|
|
|
| Larry Stein Oklahoma County Assessor (405) 713-1200 - Public Access System |
|
|
|
|
|
|
| Real Property Display - Screen Produced 4/3/2026 5:44:22 AM | ||||
|---|---|---|---|---|
| Account: R113411715 | Type: Residential | Location: |
2709 SW 45TH ST |
|
| Building Name/Occupant: |
|
OKLAHOMA CITY |
||
| Owner Name 1: | CABRALES JUAN F & ISABEL O |
Parcel PIN#: |
1676-11-341-1715 |
|
| Owner Name 2: | 1/4 section #: |
1676 |
||
| Owner Name 3: | Parent Acct: |
|
||
| Billing Address: | 2829 SW 46TH TER | Tax District: |
|
|
| City, State, Zip | OKLAHOMA CITY, OK 73119 | School System: |
Oklahoma City #89 |
|
|
Country: (If noted) |
Land Size: |
0.1438 Acres |
||
|
Land Value: 18,792 |
|
|||
|
Sect 19-T11N-R3W Qtr NW |
KNOB HILL ADDITION
Block
002
Lot
024
|
|||
| Full Legal Description: KNOB HILL ADDITION 002 024 |
| Photo & Sketch (if available) | Comp Sales (ordered by relevancy) |
|
||||||||||||||||||
|
||||||||||||||||||||
| Value History (*The County Treasurer 405-713-1300 posts & collects actual tax amounts. Contact information HERE) | |||||||||||||
|---|---|---|---|---|---|---|---|---|---|---|---|---|---|
| Year | Market Value | Taxable Mkt Value | Gross Assessed | Exemption | Net Assessed | Millage | Est. Tax | Tax Savings | |||||
|
2026 |
103,000 |
72,362 |
7,959 |
0 |
7,959 |
119.02 |
$947 |
$401 |
|||||
|
2025 |
103,500 |
68,917 |
7,579 |
0 |
7,579 |
119.02 |
$902 |
$453 |
|||||
|
2024 |
95,000 |
65,636 |
7,219 |
0 |
7,219 |
119.70 |
$864 |
$387 |
|||||
|
2023 |
81,000 |
62,511 |
6,875 |
0 |
6,875 |
118.33 |
$814 |
$241 |
|||||
|
2022 |
73,000 |
59,535 |
6,548 |
0 |
6,548 |
112.69 |
$738 |
$167 |
|||||
| Property Account Status/Adjustments/Exemptions | ||
|---|---|---|
| Account # | Exemption Description | Amount |
|
R113411715 |
5% Capped Account |
0 |
| Property Deed Transaction History (Recorded in the County Clerk's Office) | ||||||||||
|---|---|---|---|---|---|---|---|---|---|---|
| Date | Type | Book | Page | Price | Grantor | Grantee | ||||
|
1/2/2009 |
|
Deeds |
$41,000 |
NICHOLS NATHAN & DIANE TRS NICHOLS NATHAN & DIANE LIVING TRU |
CABRALES JUAN F & ISABEL O |
|||||
|
7/18/2007 |
|
Deeds |
$0 |
NICHOLS NATHAN & MILLER |
NICHOLS NATHAN & DIANE TRS NICHOLS NATHAN & DIANE LIVING TRU |
|||||
|
3/14/2007 |
|
Deeds |
$0 |
NICHOLS DIANE |
NICHOLS NATHAN |
|||||
|
9/5/2003 |
|
Deeds |
$0 |
MCCLENDON JOAN NICHOLS DIANE |
NICHOLS DIANE |
|||||
|
8/31/1994 |
|
Historical |
$0 |
MCCLENDON JOAN |
MCCLENDON JOAN |
|||||
| Last Mailed Notice of Value (N.O.V.) Information/History | ||||||||
|---|---|---|---|---|---|---|---|---|
| Year | Date | Market Value | Taxable Market Value | Gross Assessed | Exemption | Net Assessed | ||
|
2026 |
02/06/2026 |
103,000 |
72,362 |
7,959 |
0 |
7,959 |
||
|
2025 |
01/31/2025 |
103,500 |
68,917 |
7,579 |
0 |
7,579 |
||
|
2024 |
01/22/2024 |
95,000 |
65,636 |
7,219 |
0 |
7,219 |
||
|
2023 |
01/23/2023 |
81,000 |
62,511 |
6,875 |
0 |
6,875 |
||
|
2022 |
02/22/2022 |
73,000 |
59,535 |
6,548 |
0 |
6,548 |
||
| Property Building Permit History | |||||||||||
|---|---|---|---|---|---|---|---|---|---|---|---|
| Issued | Permit # | Provided by | Bldg # | Description | Est Construction Cost | Status | |||||
| No Building Permit records returned. | |||||||||||
| Click button on building number to access detailed information: | ||||||
|---|---|---|---|---|---|---|
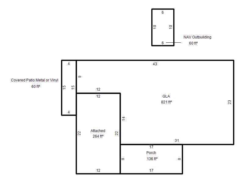
| Bldg # | Vacant/Improved Land | Bldg Description | Year Built | SqFt | # Stories | |
|
1 |
Improved |
Ranch 1 Story |
1952 |
821 |
1 Stories |
|