|
|
|
| Larry Stein Oklahoma County Assessor (405) 713-1200 - Public Access System |
|
|
|
|
|
|
| Real Property Display - Screen Produced 4/5/2026 12:02:39 PM | ||||
|---|---|---|---|---|
| Account: R113412985 | Type: Residential | Location: |
2724 SW 46TH PL |
|
| Building Name/Occupant: |
|
OKLAHOMA CITY |
||
| Owner Name 1: | HOLTZCLAW JASON & LE THI TRAN |
Parcel PIN#: |
1676-11-341-2985 |
|
| Owner Name 2: | 1/4 section #: |
1676 |
||
| Owner Name 3: | Parent Acct: |
|
||
| Billing Address: | 7030 N CHEROKEE XING W | Tax District: |
|
|
| City, State, Zip | WARR ACRES, OK 73132-5927 | School System: |
Oklahoma City #89 |
|
|
Country: (If noted) |
Land Size: |
0.1507 Acres |
||
|
Land Value: 19,695 |
|
|||
|
Sect 19-T11N-R3W Qtr NW |
KNOB HILL ADDITION
Block
009
Lot
005
|
|||
| Full Legal Description: KNOB HILL ADDITION 009 005 |
| Photo & Sketch (if available) | Comp Sales (ordered by relevancy) |
|
||||||||||||||||||
|
||||||||||||||||||||
| Value History (*The County Treasurer 405-713-1300 posts & collects actual tax amounts. Contact information HERE) | |||||||||||||
|---|---|---|---|---|---|---|---|---|---|---|---|---|---|
| Year | Market Value | Taxable Mkt Value | Gross Assessed | Exemption | Net Assessed | Millage | Est. Tax | Tax Savings | |||||
|
2026 |
120,000 |
86,433 |
9,506 |
0 |
9,506 |
119.02 |
$1,132 |
$439 |
|||||
|
2025 |
122,000 |
82,318 |
9,054 |
0 |
9,054 |
119.02 |
$1,078 |
$520 |
|||||
|
2024 |
114,500 |
78,399 |
8,623 |
0 |
8,623 |
119.70 |
$1,032 |
$475 |
|||||
|
2023 |
100,000 |
74,666 |
8,213 |
0 |
8,213 |
118.33 |
$972 |
$330 |
|||||
|
2022 |
88,000 |
71,111 |
7,821 |
0 |
7,821 |
112.69 |
$881 |
$209 |
|||||
| Property Account Status/Adjustments/Exemptions | ||
|---|---|---|
| Account # | Exemption Description | Amount |
|
R113412985 |
5% Capped Account |
0 |
| Property Deed Transaction History (Recorded in the County Clerk's Office) | ||||||||||
|---|---|---|---|---|---|---|---|---|---|---|
| Date | Type | Book | Page | Price | Grantor | Grantee | ||||
|
7/27/2015 |
|
Deeds |
$55,500 |
PAYTON MIRIAM P |
HOLTZCLAW JASON & LE THI TRAN |
|||||
|
2/8/2002 |
|
Deeds |
$50,000 |
BENEFIELD DALE E & TONYA L |
PAYTON MIRIAM P |
|||||
|
9/19/2001 |
|
Deeds |
$25,000 |
BANK OF AMERICA NATIONAL TRUST AND SAVINGS ASSOCIATION |
BENEFIELD DALE E & TONYA L |
|||||
|
7/12/2001 |
|
Hmstd Off & |
$0 |
GUINAN EDWARD G |
BANK OF AMERICA NATIONAL TRUST AND SAVINGS ASSOCIATION |
|||||
|
2/13/1992 |
|
Historical |
$29,500 |
SECRETARY OF VETERANS AFFAIRS |
GUINAN EDWARD G |
|||||
| Last Mailed Notice of Value (N.O.V.) Information/History | ||||||||
|---|---|---|---|---|---|---|---|---|
| Year | Date | Market Value | Taxable Market Value | Gross Assessed | Exemption | Net Assessed | ||
|
2026 |
02/06/2026 |
120,000 |
86,433 |
9,506 |
0 |
9,506 |
||
|
2025 |
01/31/2025 |
122,000 |
82,318 |
9,054 |
0 |
9,054 |
||
|
2024 |
01/22/2024 |
114,500 |
78,399 |
8,623 |
0 |
8,623 |
||
|
2023 |
01/23/2023 |
100,000 |
74,666 |
8,213 |
0 |
8,213 |
||
|
2022 |
02/22/2022 |
88,000 |
71,111 |
7,821 |
0 |
7,821 |
||
| Property Building Permit History | |||||||||||
|---|---|---|---|---|---|---|---|---|---|---|---|
| Issued | Permit # | Provided by | Bldg # | Description | Est Construction Cost | Status | |||||
| No Building Permit records returned. | |||||||||||
| Click button on building number to access detailed information: | ||||||
|---|---|---|---|---|---|---|
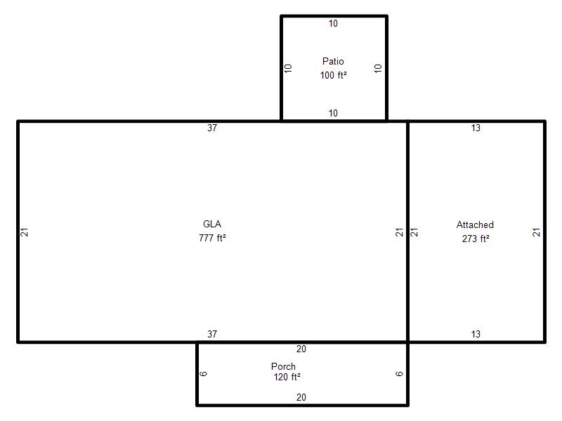
| Bldg # | Vacant/Improved Land | Bldg Description | Year Built | SqFt | # Stories | |
|
1 |
Improved |
Ranch 1 Story |
1953 |
777 |
1 Stories |
|