|
|
|
| Larry Stein Oklahoma County Assessor (405) 713-1200 - Public Access System |
|
|
|
|
|
|
| Real Property Display - Screen Produced 4/5/2026 12:09:10 PM | ||||
|---|---|---|---|---|
| Account: R113418805 | Type: Residential | Location: |
2522 SW 51ST ST |
|
| Building Name/Occupant: |
|
OKLAHOMA CITY |
||
| Owner Name 1: | CRILLY SUSAN R |
Parcel PIN#: |
1676-11-341-8805 |
|
| Owner Name 2: | 1/4 section #: |
1676 |
||
| Owner Name 3: | Parent Acct: |
|
||
| Billing Address: | 2522 SW 51ST ST | Tax District: |
|
|
| City, State, Zip | OKLAHOMA CITY, OK 73119-5231 | School System: |
Oklahoma City #89 |
|
|
Country: (If noted) |
Land Size: |
0.1409 Acres |
||
|
Land Value: 18,408 |
|
|||
|
Sect 19-T11N-R3W Qtr NW |
KNOB HILL ADDITION
Block
030
Lot
005
|
|||
| Full Legal Description: KNOB HILL ADDITION 030 005 |
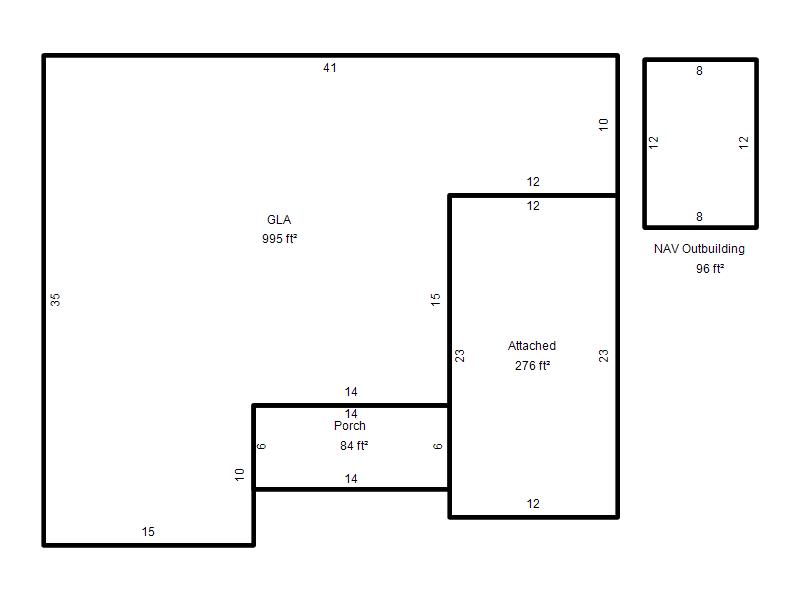
| Photo & Sketch (if available) | Comp Sales (ordered by relevancy) |
|
||||||||||||||||||
|
||||||||||||||||||||
| Value History (*The County Treasurer 405-713-1300 posts & collects actual tax amounts. Contact information HERE) | |||||||||||||
|---|---|---|---|---|---|---|---|---|---|---|---|---|---|
| Year | Market Value | Taxable Mkt Value | Gross Assessed | Exemption | Net Assessed | Millage | Est. Tax | Tax Savings | |||||
|
2026 |
100,500 |
77,724 |
8,549 |
0 |
8,549 |
119.02 |
$1,018 |
$298 |
|||||
|
2025 |
100,000 |
74,023 |
8,141 |
0 |
8,141 |
119.02 |
$969 |
$340 |
|||||
|
2024 |
94,500 |
70,499 |
7,754 |
0 |
7,754 |
119.70 |
$928 |
$316 |
|||||
|
2023 |
85,000 |
67,142 |
7,384 |
0 |
7,384 |
118.33 |
$874 |
$232 |
|||||
|
2022 |
76,000 |
63,945 |
7,033 |
0 |
7,033 |
112.69 |
$793 |
$149 |
|||||
| Property Account Status/Adjustments/Exemptions | ||
|---|---|---|
| Account # | Exemption Description | Amount |
|
R113418805 |
5% Capped Account |
0 |
| Property Deed Transaction History (Recorded in the County Clerk's Office) | |||||||
|---|---|---|---|---|---|---|---|
| Date | Type | Book | Page | Price | Grantor | Grantee | |
|
3/19/2009 |
|
Deeds |
$0 |
HARTSELL SUSAN R |
CRILLY SUSAN R |
||
|
5/2/1991 |
|
Historical |
$36,000 |
HUGHES CLIFTON YOUNG III |
HARTSELL SUSAN R |
||
|
8/1/1982 |
|
Historical |
$0 |
|
HUGHES CLIFTON YOUNG III |
||
| Last Mailed Notice of Value (N.O.V.) Information/History | ||||||||
|---|---|---|---|---|---|---|---|---|
| Year | Date | Market Value | Taxable Market Value | Gross Assessed | Exemption | Net Assessed | ||
|
2026 |
02/06/2026 |
100,500 |
77,724 |
8,549 |
0 |
8,549 |
||
|
2025 |
01/31/2025 |
100,000 |
74,023 |
8,141 |
0 |
8,141 |
||
|
2024 |
01/22/2024 |
94,500 |
70,499 |
7,754 |
0 |
7,754 |
||
|
2023 |
01/23/2023 |
85,000 |
67,142 |
7,384 |
0 |
7,384 |
||
|
2022 |
02/22/2022 |
76,000 |
63,945 |
7,033 |
0 |
7,033 |
||
| Property Building Permit History | |||||||||||
|---|---|---|---|---|---|---|---|---|---|---|---|
| Issued | Permit # | Provided by | Bldg # | Description | Est Construction Cost | Status | |||||
| No Building Permit records returned. | |||||||||||
| Click button on building number to access detailed information: | ||||||
|---|---|---|---|---|---|---|
| Bldg # | Vacant/Improved Land | Bldg Description | Year Built | SqFt | # Stories | |
|
1 |
Improved |
Ranch 1 Story |
1955 |
995 |
1 Stories |
|