|
|
|
| Larry Stein Oklahoma County Assessor (405) 713-1200 - Public Access System |
|
|
|
|
|
|
| Real Property Display - Screen Produced 4/3/2026 1:57:32 PM | ||||
|---|---|---|---|---|
| Account: R074608320 | Type: Commercial | Location: |
901 SW 50TH ST |
|
| Building Name/Occupant: |
JABA BOOKKEEPING (FORMERLY FAMILY DENTISTRY) |
OKLAHOMA CITY |
||
| Owner Name 1: | BADILLO GROUP INC |
Parcel PIN#: |
1677-07-460-8320 |
|
| Owner Name 2: | 1/4 section #: |
1677 |
||
| Owner Name 3: | Parent Acct: |
|
||
| Billing Address: | 901 SW 50TH ST | Tax District: |
|
|
| City, State, Zip | OKLAHOMA CITY, OK 73109 | School System: |
Oklahoma City #89 |
|
|
Country: (If noted) |
Land Size: |
24,000.0000 Square Feet |
||
|
Land Value: 95,629 |
|
|||
|
Sect 20-T11N-R3W Qtr NE |
MCCANN SOUTH HIGHLAND
Block
000
Lot
000
|
|||
| Full Legal Description: MCCANN SOUTH HIGHLAND 000 000 E160FT S 1/2 BLK 24 |
| No comparable sales report available. | ||||||||||||||||||||||
|
||||||||||||||||||||||
| Value History (*The County Treasurer 405-713-1300 posts & collects actual tax amounts. Contact information HERE) | |||||||||||||
|---|---|---|---|---|---|---|---|---|---|---|---|---|---|
| Year | Market Value | Taxable Mkt Value | Gross Assessed | Exemption | Net Assessed | Millage | Est. Tax | Tax Savings | |||||
|
2026 |
341,000 |
330,821 |
36,389 |
0 |
36,389 |
119.02 |
$4,331 |
$133 |
|||||
|
2025 |
388,834 |
315,068 |
34,657 |
0 |
34,657 |
119.02 |
$4,125 |
$966 |
|||||
|
2024 |
300,065 |
300,065 |
33,007 |
0 |
33,007 |
119.70 |
$3,951 |
$0 |
|||||
|
2023 |
300,065 |
300,065 |
33,007 |
0 |
33,007 |
118.33 |
$3,906 |
$0 |
|||||
|
2022 |
300,065 |
300,065 |
33,007 |
0 |
33,007 |
112.69 |
$3,720 |
$0 |
|||||
| Property Account Status/Adjustments/Exemptions | ||
|---|---|---|
| Account # | Exemption Description | Amount |
|
R074608320 |
5% Capped Account |
0 |
| Property Deed Transaction History (Recorded in the County Clerk's Office) | ||||||||||
|---|---|---|---|---|---|---|---|---|---|---|
| Date | Type | Book | Page | Price | Grantor | Grantee | ||||
|
6/8/2021 |
|
Hmstd Off & |
$0 |
MCDANIEL GLENN & TRACY |
GTA INVESTMENTS |
|||||
|
6/8/2021 |
|
Deeds |
$299,000 |
GTA INVESTMENTS |
BADILLO GROUP INC |
|||||
|
12/13/2019 |
|
Hmstd Off & |
$0 |
MCDANIEL GLENN |
GTA INVESTMENTS |
|||||
|
11/4/2019 |
|
Deeds |
$280,000 |
BERRY OFFICE PARK LLC |
MCDANIEL GLENN |
|||||
|
12/31/2008 |
|
Deeds |
$328,000 |
DEASON TERRY D & KATHLEEN S CO TRS DEASON FAMILY TRUST |
BERRY OFFICE PARK LLC |
|||||
| Last Mailed Notice of Value (N.O.V.) Information/History | ||||||||
|---|---|---|---|---|---|---|---|---|
| Year | Date | Market Value | Taxable Market Value | Gross Assessed | Exemption | Net Assessed | ||
|
2026 |
03/23/2026 |
341,000 |
330,821 |
36,389 |
0 |
36,389 |
||
|
2025 |
03/14/2025 |
388,834 |
315,068 |
34,657 |
0 |
34,657 |
||
|
2014 |
03/18/2014 |
329,445 |
329,445 |
36,238 |
0 |
36,238 |
||
|
2013 |
03/08/2013 |
329,445 |
322,601 |
35,485 |
0 |
35,485 |
||
|
2012 |
03/09/2012 |
331,613 |
307,240 |
33,795 |
0 |
33,795 |
||
| Property Building Permit History | |||||||||||
|---|---|---|---|---|---|---|---|---|---|---|---|
| Issued | Permit # | Provided by | Bldg # | Description | Est Construction Cost | Status | |||||
| No Building Permit records returned. | |||||||||||
| Click button on building number to access detailed information: | ||||||
|---|---|---|---|---|---|---|
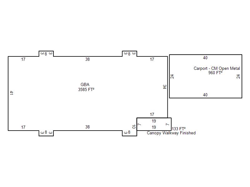
| Bldg # | Vacant/Improved Land | Bldg Description | Year Built | SqFt | # Stories | |
|
1 |
Improved |
Dental Office/ Clinic |
1984 |
3,585 |
1 Stories |
|