|
|
|
| Larry Stein Oklahoma County Assessor (405) 713-1200 - Public Access System |
|
|
|
|
|
|
| Real Property Display - Screen Produced 4/1/2026 5:39:48 AM | ||||
|---|---|---|---|---|
| Account: R074620930 | Type: Residential | Location: |
1029 SW 49TH ST |
|
| Building Name/Occupant: |
|
OKLAHOMA CITY |
||
| Owner Name 1: | AM REAL ESTATE LLC |
Parcel PIN#: |
1677-07-462-0930 |
|
| Owner Name 2: | 1/4 section #: |
1677 |
||
| Owner Name 3: | Parent Acct: |
|
||
| Billing Address: | 1135 SW 44TH ST | Tax District: |
|
|
| City, State, Zip | OKLAHOMA CITY, OK 73109 | School System: |
Oklahoma City #89 |
|
|
Country: (If noted) |
Land Size: |
0.1722 Acres |
||
|
Land Value: 16,500 |
|
|||
|
Sect 20-T11N-R3W Qtr NE |
ZEDNA ANN ADDITION
Block
004
Lot
017
|
|||
| Full Legal Description: ZEDNA ANN ADDITION 004 017 |
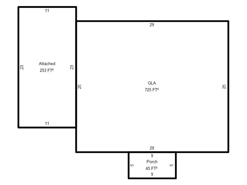
| Photo & Sketch (if available) | Comp Sales (ordered by relevancy) |
|
||||||||||||||||||
|
||||||||||||||||||||
| Value History (*The County Treasurer 405-713-1300 posts & collects actual tax amounts. Contact information HERE) | |||||||||||||
|---|---|---|---|---|---|---|---|---|---|---|---|---|---|
| Year | Market Value | Taxable Mkt Value | Gross Assessed | Exemption | Net Assessed | Millage | Est. Tax | Tax Savings | |||||
|
2026 |
95,000 |
69,556 |
7,650 |
0 |
7,650 |
119.02 |
$911 |
$333 |
|||||
|
2025 |
96,000 |
66,244 |
7,285 |
0 |
7,285 |
119.02 |
$867 |
$390 |
|||||
|
2024 |
89,000 |
63,090 |
6,939 |
0 |
6,939 |
119.70 |
$831 |
$341 |
|||||
|
2023 |
74,500 |
60,086 |
6,608 |
0 |
6,608 |
118.33 |
$782 |
$188 |
|||||
|
2022 |
65,000 |
57,225 |
6,294 |
0 |
6,294 |
112.69 |
$709 |
$96 |
|||||
| Property Account Status/Adjustments/Exemptions | ||
|---|---|---|
| Account # | Exemption Description | Amount |
|
R074620930 |
5% Capped Account |
0 |
| Property Deed Transaction History (Recorded in the County Clerk's Office) | ||||||||||
|---|---|---|---|---|---|---|---|---|---|---|
| Date | Type | Book | Page | Price | Grantor | Grantee | ||||
|
2/26/2020 |
|
Deeds |
$55,500 |
TALT PROPERTIES LLC |
AM REAL ESTATE LLC |
|||||
|
9/20/2016 |
|
Deeds |
$42,000 |
POWERS INVESTMENTS LLC |
TALT PROPERTIES LLC |
|||||
|
5/26/2015 |
|
Deeds |
$30,000 |
STOCKS DOHM DEREK R |
POWERS INVESTMENTS LLC |
|||||
|
9/16/2010 |
|
Deeds |
$35,000 |
ZALOUDIK NEAL & TENA TRS ZALOUDIK FAMILY TRUST |
STOCKS DOHM DEREK R |
|||||
|
5/26/2000 |
|
Deeds |
$0 |
ZALOUDIK NEAL & TENA |
ZALOUDIK NEAL & TENA TRS ZALOUDIK FAMILY TRUST |
|||||
| Last Mailed Notice of Value (N.O.V.) Information/History | ||||||||
|---|---|---|---|---|---|---|---|---|
| Year | Date | Market Value | Taxable Market Value | Gross Assessed | Exemption | Net Assessed | ||
|
2026 |
02/06/2026 |
95,000 |
69,556 |
7,650 |
0 |
7,650 |
||
|
2025 |
01/31/2025 |
96,000 |
66,244 |
7,285 |
0 |
7,285 |
||
|
2024 |
01/22/2024 |
89,000 |
63,090 |
6,939 |
0 |
6,939 |
||
|
2023 |
01/23/2023 |
74,500 |
60,086 |
6,608 |
0 |
6,608 |
||
|
2022 |
02/22/2022 |
65,000 |
57,225 |
6,294 |
0 |
6,294 |
||
| Property Building Permit History | |||||||||||
|---|---|---|---|---|---|---|---|---|---|---|---|
| Issued | Permit # | Provided by | Bldg # | Description | Est Construction Cost | Status | |||||
| No Building Permit records returned. | |||||||||||
| Click button on building number to access detailed information: | ||||||
|---|---|---|---|---|---|---|
| Bldg # | Vacant/Improved Land | Bldg Description | Year Built | SqFt | # Stories | |
|
1 |
Improved |
Ranch 1 Story |
1949 |
725 |
1 Stories |
|