|
|
|
| Larry Stein Oklahoma County Assessor (405) 713-1200 - Public Access System |
|
|
|
|
|
|
| Real Property Display - Screen Produced 4/1/2026 2:06:21 AM | ||||
|---|---|---|---|---|
| Account: R074485925 | Type: Residential | Location: |
1600 SW 56TH ST |
|
| Building Name/Occupant: |
|
OKLAHOMA CITY |
||
| Owner Name 1: | CHAVEZ JUVENTINO |
Parcel PIN#: |
1679-07-448-5925 |
|
| Owner Name 2: | DE CHAVEZ LUCIA LOPEZ | 1/4 section #: |
1679 |
|
| Owner Name 3: | Parent Acct: |
|
||
| Billing Address: | 1600 SW 56TH ST | Tax District: |
|
|
| City, State, Zip | OKLAHOMA CITY, OK 73119 | School System: |
Oklahoma City #89 |
|
|
Country: (If noted) |
Land Size: |
0.8609 Acres |
||
|
Land Value: 39,375 |
|
|||
|
Sect 20-T11N-R3W Qtr SW |
CAMPBELL ACRES ADD
Block
007
Lot
006
|
|||
| Full Legal Description: CAMPBELL ACRES ADD 007 006 EX S25FT |
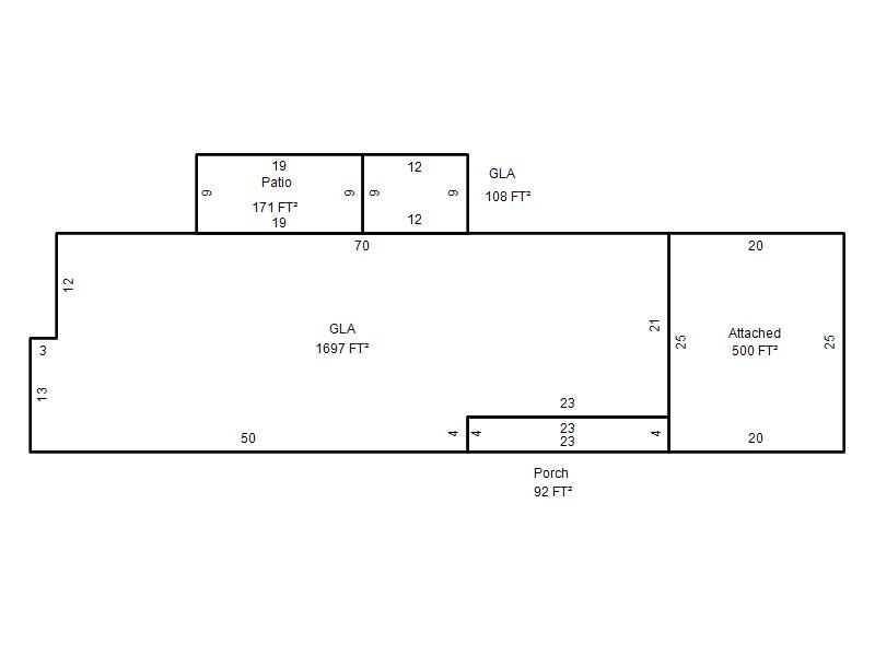
| Photo & Sketch (if available) | Comp Sales (ordered by relevancy) |
|
||||||||||||||||||
|
||||||||||||||||||||
| Value History (*The County Treasurer 405-713-1300 posts & collects actual tax amounts. Contact information HERE) | |||||||||||||
|---|---|---|---|---|---|---|---|---|---|---|---|---|---|
| Year | Market Value | Taxable Mkt Value | Gross Assessed | Exemption | Net Assessed | Millage | Est. Tax | Tax Savings | |||||
|
2026 |
179,000 |
148,747 |
16,362 |
0 |
16,362 |
119.02 |
$1,947 |
$396 |
|||||
|
2025 |
184,500 |
141,664 |
15,583 |
0 |
15,583 |
119.02 |
$1,855 |
$561 |
|||||
|
2024 |
170,000 |
134,919 |
14,840 |
0 |
14,840 |
119.70 |
$1,776 |
$462 |
|||||
|
2023 |
161,500 |
128,495 |
14,134 |
0 |
14,134 |
118.33 |
$1,673 |
$430 |
|||||
|
2022 |
142,000 |
122,377 |
13,461 |
0 |
13,461 |
112.69 |
$1,517 |
$243 |
|||||
| Property Account Status/Adjustments/Exemptions | ||
|---|---|---|
| Account # | Exemption Description | Amount |
|
R074485925 |
5% Capped Account |
0 |
| Property Deed Transaction History (Recorded in the County Clerk's Office) | |||||||
|---|---|---|---|---|---|---|---|
| Date | Type | Book | Page | Price | Grantor | Grantee | |
|
4/1/2022 |
|
Deeds |
$0 |
CHAVEZ JUVENTINO |
CHAVEZ JUVENTINO |
||
|
7/29/2011 |
|
Deeds |
$130,000 |
BOGART RITA KIMBROUGH ALEXANDER JOSEPH DEAN |
CHAVEZ JUVENTINO |
||
|
9/4/2009 |
|
Deeds |
$0 |
BOGART RITA KIMBROUGH ALEXANDER JOSEPH DEAN |
BOGART RITA KIMBROUGH ALEXANDER JOSEPH DEAN |
||
|
3/23/2009 |
|
Hmstd Off & |
$0 |
ALEXANDER MARGARET J ALEXANDER HARRY DEAN |
BOGART RITA KIMBROUGH ALEXANDER JOSEPH DEAN |
||
|
11/11/1911 |
|
Historical |
$0 |
|
ALEXANDER HARRY & M |
||
| Last Mailed Notice of Value (N.O.V.) Information/History | ||||||||
|---|---|---|---|---|---|---|---|---|
| Year | Date | Market Value | Taxable Market Value | Gross Assessed | Exemption | Net Assessed | ||
|
2026 |
02/06/2026 |
179,000 |
148,747 |
16,362 |
0 |
16,362 |
||
|
2025 |
01/31/2025 |
184,500 |
141,664 |
15,583 |
0 |
15,583 |
||
|
2024 |
01/22/2024 |
170,000 |
134,919 |
14,840 |
0 |
14,840 |
||
|
2023 |
01/23/2023 |
161,500 |
128,495 |
14,134 |
0 |
14,134 |
||
|
2022 |
02/22/2022 |
142,000 |
122,377 |
13,461 |
0 |
13,461 |
||
| Property Building Permit History | |||||||||||
|---|---|---|---|---|---|---|---|---|---|---|---|
| Issued | Permit # | Provided by | Bldg # | Description | Est Construction Cost | Status | |||||
| No Building Permit records returned. | |||||||||||
| Click button on building number to access detailed information: | ||||||
|---|---|---|---|---|---|---|
| Bldg # | Vacant/Improved Land | Bldg Description | Year Built | SqFt | # Stories | |
|
1 |
Improved |
Ranch 1 Story |
1955 |
1,805 |
1 Stories |
|