Larry Stein Oklahoma County Assessor (405) 713-1200 - Public Access System
Home Contact Us Guest Book Map Search New Search
Real Property Display - Screen Produced   5/25/2026 1:03:38 PM 
Account: R074485950  Type: Residential

  

Location:

1624 SW 56TH ST

Building Name/Occupant:

 

OKLAHOMA CITY

Owner Name 1:  RODRIGUEZ NAJERA JESUS RAUL

Parcel PIN#:

1679-07-448-5950

Owner Name 2:  RODRIGUEZ MARIA D VERA DE 1/4 section #:

1679

Owner Name 3:    Parent Acct:

 

Billing Address:  1624 SW 56TH ST Tax District:

City, State, Zip  OKLAHOMA CITY, OK  73119 School System:

Oklahoma City #89

Country: (If noted)

  

Land Size:

0.4339  Acres

Personal Property

Land Value: 19,845 

Treasurer:

Sect 20-T11N-R3W Qtr SW

 CAMPBELL ACRES ADD   Block 007  Lot 008   Subdivision Sales
 Full Legal Description:  CAMPBELL ACRES ADD 007 008 EX E62.5FT OF N150FT & EX S25FT

NOTE:  The following sales may or may not be used to determine Fair Market Value

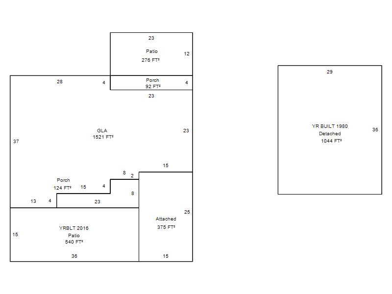
Photo & Sketch (if available) Sales  Sales Report

 5721 S BLACKWELDER AVE OKLAHOMA CITY, OK

11/14/2023

 $167,000 

 1413 SW 54TH ST OKLAHOMA CITY, OK

05/23/2025

 $185,000 

 1536 SW 52ND ST OKLAHOMA CITY, OK

12/27/2024

 $178,000 

 5420 S PENNSYLVANIA AVE OKLAHOMA CITY, OK

06/21/2024

 $120,000 

 1412 SW 54TH ST OKLAHOMA CITY, OK

05/30/2024

 $136,000 

 1536 SW 52ND ST OKLAHOMA CITY, OK

07/31/2023

 $125,000 

Value History  (*The County Treasurer 405-713-1300 posts & collects actual tax amounts.  Contact information  HERE)
Year Market Value Taxable Mkt Value Gross Assessed Exemption Net Assessed Millage Est. Tax Tax Savings

2026

179,500 

132,536 

14,578 

1,000 

13,578 

119.02 

$1,616 

$734 

2025

187,500 

128,676 

14,154 

1,000 

13,154 

119.02 

$1,566 

$889 

2024

177,500 

124,929 

13,742 

1,000 

12,742 

119.70 

$1,525 

$812 

[1/9]
Property Account Status/Adjustments/Exemptions
Account # Exemption Description Amount

R074485950

Homestead

1,000 

R074485950

3% Cap Homestead

Property Deed Transaction History   (Recorded in the County Clerk's Office)
Date Type Book Page Price Grantor Grantee

4/5/2018

Deeds

13709

1593

 $0 

RODRIGUEZ MARIA S VERA DE

RODRIGUEZ NAJERA JESUS RAUL

3/15/2017

Deeds

13384

1324

 $0 

RODRIGUEZ MARIA S VERA DE NAJERA JESUS RAUL RODRIGUEZ

RODRIGUEZ MARIA S VERA DE

3/13/2015

Hmstd Off &

12775

1726

 $0 

GOMEZ ARMIDA GOMEZ ADOLFO

RODRIGUEZ MARIA S VERA DE NAJERA JESUS RAUL RODRIGUEZ

[1/3]
Last Mailed Notice of Value (N.O.V.) Information/History
Year Date Market Value Taxable Market Value Gross Assessed Exemption Net Assessed

2026

02/06/2026

179,500 

132,536 

14,578 

1,000 

13,578 

2025

01/31/2025

187,500 

128,676 

14,154 

1,000 

13,154 

2024

01/22/2024

177,500 

124,929 

13,742 

1,000 

12,742 

[1/5]
Property Building Permit History
Issued Permit # Provided by Bldg # Description Est Construction Cost Status
No Building Permit records returned.
Click button below to access detailed information and additional property photos:
  Bldg # Vacant/Improved Land Bldg Description Year Built SqFt # Stories

Click

1

Improved

Ranch 1 Story

1960

1,521 

1 Stories