|
|
|
| Larry Stein Oklahoma County Assessor (405) 713-1200 - Public Access System |
|
|
|
|
|
|
| Real Property Display - Screen Produced 3/16/2026 12:46:49 PM | ||||
|---|---|---|---|---|
| Account: R093719450 | Type: Residential | Location: |
4521 S HARVEY AVE |
|
| Building Name/Occupant: |
|
OKLAHOMA CITY |
||
| Owner Name 1: | LOPEZ IVAN |
Parcel PIN#: |
1681-09-371-9450 |
|
| Owner Name 2: | TORRES ALY | 1/4 section #: |
1681 |
|
| Owner Name 3: | Parent Acct: |
|
||
| Billing Address: | 4521 S HARVEY AVE | Tax District: |
|
|
| City, State, Zip | OKLAHOMA CITY, OK 73109 | School System: |
Oklahoma City #89 |
|
|
Country: (If noted) |
Land Size: |
0.1641 Acres |
||
|
Land Value: 12,513 |
|
|||
|
Sect 21-T11N-R3W Qtr NE |
MELROSE PARK SECOND
Block
002
Lot
000
|
|||
| Full Legal Description: MELROSE PARK SECOND 002 000 LOTS 21 & 22 |
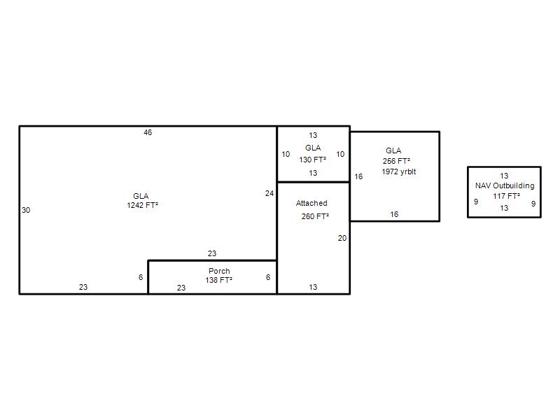
| Photo & Sketch (if available) | Comp Sales (ordered by relevancy) |
|
||||||||||||||||||
|
||||||||||||||||||||
| Value History (*The County Treasurer 405-713-1300 posts & collects actual tax amounts. Contact information HERE) | |||||||||||||
|---|---|---|---|---|---|---|---|---|---|---|---|---|---|
| Year | Market Value | Taxable Mkt Value | Gross Assessed | Exemption | Net Assessed | Millage | Est. Tax | Tax Savings | |||||
|
2025 |
109,000 |
109,000 |
11,990 |
0 |
11,990 |
119.02 |
$1,427 |
$0 |
|||||
|
2024 |
105,000 |
105,000 |
11,550 |
0 |
11,550 |
119.70 |
$1,383 |
$0 |
|||||
|
2023 |
90,000 |
47,467 |
5,220 |
0 |
5,220 |
118.33 |
$618 |
$554 |
|||||
|
2022 |
84,500 |
45,207 |
4,972 |
1,000 |
3,972 |
112.69 |
$448 |
$600 |
|||||
|
2021 |
67,000 |
43,891 |
4,827 |
1,000 |
3,827 |
112.29 |
$430 |
$398 |
|||||
| Property Account Status/Adjustments/Exemptions | ||||||
|---|---|---|---|---|---|---|
| Account # | Exemption Description | Amount | ||||
| No adjustment/exemption records returned. | ||||||
| Property Deed Transaction History (Recorded in the County Clerk's Office) | ||||||||||
|---|---|---|---|---|---|---|---|---|---|---|
| Date | Type | Book | Page | Price | Grantor | Grantee | ||||
|
3/17/2025 |
|
Other |
$0 |
SPARK BRIXTON LLC |
LOPEZ IVAN |
|||||
|
12/19/2024 |
|
Deeds |
$109,000 |
BMJ PROPERTIES LLC |
SPARK BRIXTON LLC |
|||||
|
10/26/2023 |
|
Deeds |
$115,000 |
SOUP TO NUTS LLC |
BMJ PROPERTIES LLC |
|||||
|
10/25/2023 |
|
Deeds |
$100,000 |
GONZALES VANESSA J |
SOUP TO NUTS LLC |
|||||
|
4/25/2023 |
|
Hmstd Off & |
$0 |
GONZALES THOMAS G |
GONZALES VANESSA J |
|||||
| Last Mailed Notice of Value (N.O.V.) Information/History | ||||||||
|---|---|---|---|---|---|---|---|---|
| Year | Date | Market Value | Taxable Market Value | Gross Assessed | Exemption | Net Assessed | ||
|
2025 |
01/31/2025 |
119,500 |
119,500 |
13,145 |
0 |
13,145 |
||
|
2024 |
01/22/2024 |
105,000 |
105,000 |
11,550 |
0 |
11,550 |
||
|
2023 |
01/23/2023 |
90,000 |
46,563 |
5,121 |
1,000 |
4,121 |
||
|
2022 |
02/22/2022 |
84,500 |
45,207 |
4,971 |
1,000 |
3,971 |
||
|
2021 |
02/24/2021 |
67,000 |
43,891 |
4,828 |
1,000 |
3,828 |
||
| Property Building Permit History | |||||||||||
|---|---|---|---|---|---|---|---|---|---|---|---|
| Issued | Permit # | Provided by | Bldg # | Description | Est Construction Cost | Status | |||||
| No Building Permit records returned. | |||||||||||
| Click button on building number to access detailed information: | ||||||
|---|---|---|---|---|---|---|
| Bldg # | Vacant/Improved Land | Bldg Description | Year Built | SqFt | # Stories | |
|
1 |
Improved |
Ranch 1 Story |
1941 |
1,628 |
1 Stories |
|