|
|
|
| Larry Stein Oklahoma County Assessor (405) 713-1200 - Public Access System |
|
|
|
|
|
|
| Real Property Display - Screen Produced 4/2/2026 1:48:27 PM | ||||
|---|---|---|---|---|
| Account: R073561145 | Type: Residential | Location: |
509 SW 57TH ST |
|
| Building Name/Occupant: |
|
OKLAHOMA CITY |
||
| Owner Name 1: | PEEPLES LAWRENCE C TRS |
Parcel PIN#: |
1683-07-356-1145 |
|
| Owner Name 2: | PEEPLES LAWRENCE C LIV TRUST | 1/4 section #: |
1683 |
|
| Owner Name 3: | Parent Acct: |
|
||
| Billing Address: | 509 SW 57TH ST | Tax District: |
|
|
| City, State, Zip | OKLAHOMA CITY, OK 73109 | School System: |
Oklahoma City #89 |
|
|
Country: (If noted) |
Land Size: |
0.2645 Acres |
||
|
Land Value: 21,888 |
|
|||
|
Sect 21-T11N-R3W Qtr SW |
ELMVALE
Block
000
Lot
015
|
|||
| Full Legal Description: ELMVALE 000 015 |
| Photo & Sketch (if available) | Comp Sales (ordered by relevancy) |
|
||||||||||||||||||
|
||||||||||||||||||||
| Value History (*The County Treasurer 405-713-1300 posts & collects actual tax amounts. Contact information HERE) | |||||||||||||
|---|---|---|---|---|---|---|---|---|---|---|---|---|---|
| Year | Market Value | Taxable Mkt Value | Gross Assessed | Exemption | Net Assessed | Millage | Est. Tax | Tax Savings | |||||
|
2026 |
136,500 |
95,457 |
10,499 |
10,499 |
0 |
119.02 |
$0 |
$1,787 |
|||||
|
2025 |
137,000 |
92,677 |
10,193 |
10,193 |
0 |
119.02 |
$0 |
$1,793 |
|||||
|
2024 |
130,500 |
89,978 |
9,897 |
9,897 |
0 |
119.70 |
$0 |
$1,718 |
|||||
|
2023 |
126,000 |
87,358 |
9,608 |
9,608 |
0 |
118.33 |
$0 |
$1,640 |
|||||
|
2022 |
122,000 |
84,814 |
9,328 |
9,328 |
0 |
112.69 |
$0 |
$1,512 |
|||||
| Property Account Status/Adjustments/Exemptions | ||
|---|---|---|
| Account # | Exemption Description | Amount |
|
R073561145 |
100% DAV Exemption |
100 |
|
R073561145 |
DAV Homestead |
0 |
|
R073561145 |
3% Cap Homestead |
0 |
| Property Deed Transaction History (Recorded in the County Clerk's Office) | |||||||
|---|---|---|---|---|---|---|---|
| Date | Type | Book | Page | Price | Grantor | Grantee | |
|
9/10/2019 |
|
Deeds |
$0 |
PEEPLES LAWRENCE |
PEEPLES LAWRENCE C TRS |
||
|
10/30/2013 |
|
Deeds |
$0 |
PEEPLES LAWRENCE PEEPLES CALVIN |
PEEPLES LAWRENCE |
||
|
3/26/2013 |
|
Hmstd Off & |
$0 |
PEEPLES LOVIE |
PEEPLES LAWRENCE PEEPLES CALVIN |
||
|
4/26/2005 |
|
Deeds |
$0 |
PEEPLES LAWRENCE C & LOVIE |
PEEPLES LOVIE |
||
|
7/1/1974 |
|
Historical |
$0 |
|
PEEPLES LAWRENCE C & LOVIE |
||
| Last Mailed Notice of Value (N.O.V.) Information/History | ||||||||
|---|---|---|---|---|---|---|---|---|
| Year | Date | Market Value | Taxable Market Value | Gross Assessed | Exemption | Net Assessed | ||
|
2026 |
02/06/2026 |
136,500 |
95,457 |
10,499 |
10,499 |
0 |
||
|
2025 |
01/31/2025 |
137,000 |
92,677 |
10,193 |
10,193 |
0 |
||
|
2024 |
01/22/2024 |
130,500 |
89,978 |
9,897 |
9,897 |
0 |
||
|
2023 |
01/23/2023 |
126,000 |
87,358 |
9,608 |
9,608 |
0 |
||
|
2022 |
02/22/2022 |
122,000 |
84,814 |
9,328 |
9,328 |
0 |
||
| Property Building Permit History | |||||||||||
|---|---|---|---|---|---|---|---|---|---|---|---|
| Issued | Permit # | Provided by | Bldg # | Description | Est Construction Cost | Status | |||||
| No Building Permit records returned. | |||||||||||
| Click button on building number to access detailed information: | ||||||
|---|---|---|---|---|---|---|
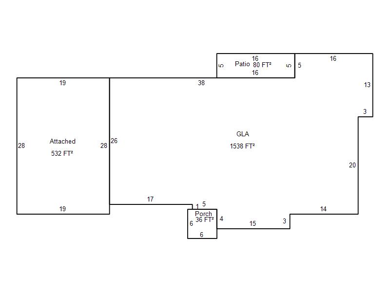
| Bldg # | Vacant/Improved Land | Bldg Description | Year Built | SqFt | # Stories | |
|
1 |
Improved |
Ranch 1 Story |
1955 |
1,538 |
1 Stories |
|