|
|
|
| Larry Stein Oklahoma County Assessor (405) 713-1200 - Public Access System |
|
|
|
|
|
|
| Real Property Display - Screen Produced 3/18/2026 10:13:29 AM | ||||
|---|---|---|---|---|
| Account: R086230150 | Type: Residential | Location: |
508 SE 44TH ST |
|
| Building Name/Occupant: |
|
OKLAHOMA CITY |
||
| Owner Name 1: | PANDO JESUS A |
Parcel PIN#: |
1685-08-623-0150 |
|
| Owner Name 2: | PANDO ROSA M | 1/4 section #: |
1685 |
|
| Owner Name 3: | Parent Acct: |
|
||
| Billing Address: | 305 SW 103RD ST | Tax District: |
|
|
| City, State, Zip | OKLAHOMA CITY, OK 73139-9016 | School System: |
Oklahoma City #89 |
|
|
Country: (If noted) |
Land Size: |
0.1607 Acres |
||
|
Land Value: 8,400 |
|
|||
|
Sect 22-T11N-R3W Qtr NE |
CARNEY HEIGHTS ADDITION
Block
001
Lot
000
|
|||
| Full Legal Description: CARNEY HEIGHTS ADDITION 001 000 LOTS 10 & 11 |
| No comparable sales report available. | ||||||||||||||||||||||
|
||||||||||||||||||||||
| Value History (*The County Treasurer 405-713-1300 posts & collects actual tax amounts. Contact information HERE) | |||||||||||||
|---|---|---|---|---|---|---|---|---|---|---|---|---|---|
| Year | Market Value | Taxable Mkt Value | Gross Assessed | Exemption | Net Assessed | Millage | Est. Tax | Tax Savings | |||||
|
2025 |
105,411 |
87,955 |
9,674 |
0 |
9,674 |
119.02 |
$1,152 |
$229 |
|||||
|
2024 |
102,169 |
83,767 |
9,213 |
0 |
9,213 |
119.70 |
$1,103 |
$242 |
|||||
|
2023 |
102,091 |
79,779 |
8,774 |
0 |
8,774 |
118.33 |
$1,038 |
$290 |
|||||
|
2022 |
94,749 |
75,980 |
8,356 |
0 |
8,356 |
112.69 |
$942 |
$233 |
|||||
|
2021 |
72,362 |
72,362 |
7,959 |
0 |
7,959 |
112.29 |
$894 |
$0 |
|||||
| Property Account Status/Adjustments/Exemptions | ||
|---|---|---|
| Account # | Exemption Description | Amount |
|
R086230150 |
5% Capped Account |
0 |
| Property Deed Transaction History (Recorded in the County Clerk's Office) | |||||||
|---|---|---|---|---|---|---|---|
| Date | Type | Book | Page | Price | Grantor | Grantee | |
|
3/15/2001 |
|
Deeds |
$0 |
MORRIS MICHAEL K & SUZANNE J CO TRS MORRIS FAMILY TRUST |
MORRIS MICHAEL K & SUZANNE J CO TRS MORRIS FAMILY TRUST |
||
|
3/15/2001 |
|
Deeds |
$48,000 |
MORRIS MICHAEL K & SUZANNE J CO TRS MORRIS FAMILY TRUST |
PANDO JESUS A |
||
|
1/17/2001 |
|
Deeds |
$0 |
MORRIS MICHAEL K & SUZANNE J |
MORRIS MICHAEL K & SUZANNE J CO TRS MORRIS FAMILY TRUST |
||
|
1/19/1996 |
|
Historical |
$0 |
DAVIDSON WILLIAM R & MARRIETTA |
MORRIS MICHAEL K & SUZANNE J |
||
|
4/1/1982 |
|
Historical |
$0 |
|
DAVIDSON WILLIAM R & MARRIETTA |
||
| Last Mailed Notice of Value (N.O.V.) Information/History | ||||||||
|---|---|---|---|---|---|---|---|---|
| Year | Date | Market Value | Taxable Market Value | Gross Assessed | Exemption | Net Assessed | ||
|
2026 |
02/06/2026 |
114,451 |
92,352 |
10,158 |
0 |
10,158 |
||
|
2025 |
01/31/2025 |
105,411 |
87,955 |
9,674 |
0 |
9,674 |
||
|
2024 |
01/22/2024 |
102,169 |
83,767 |
9,213 |
0 |
9,213 |
||
|
2023 |
01/23/2023 |
102,091 |
79,779 |
8,774 |
0 |
8,774 |
||
|
2022 |
02/22/2022 |
94,749 |
75,980 |
8,356 |
0 |
8,356 |
||
| Property Building Permit History | |||||||||||
|---|---|---|---|---|---|---|---|---|---|---|---|
| Issued | Permit # | Provided by | Bldg # | Description | Est Construction Cost | Status | |||||
| No Building Permit records returned. | |||||||||||
| Click button on building number to access detailed information: | ||||||
|---|---|---|---|---|---|---|
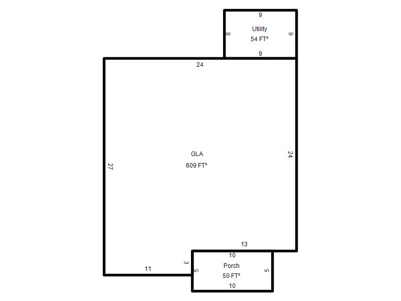
| Bldg # | Vacant/Improved Land | Bldg Description | Year Built | SqFt | # Stories | |
|
1 |
Improved |
Ranch 1 Story |
1921 |
609 |
1 Stories |
|
|
2 |
Improved |
Duplex One half Story |
1921 |
1,403 |
1.5 Stories |
|